← Test Valley Borough Council

Status

Current New housing
Received
28 Apr 2025
New homes
2

Full proposal

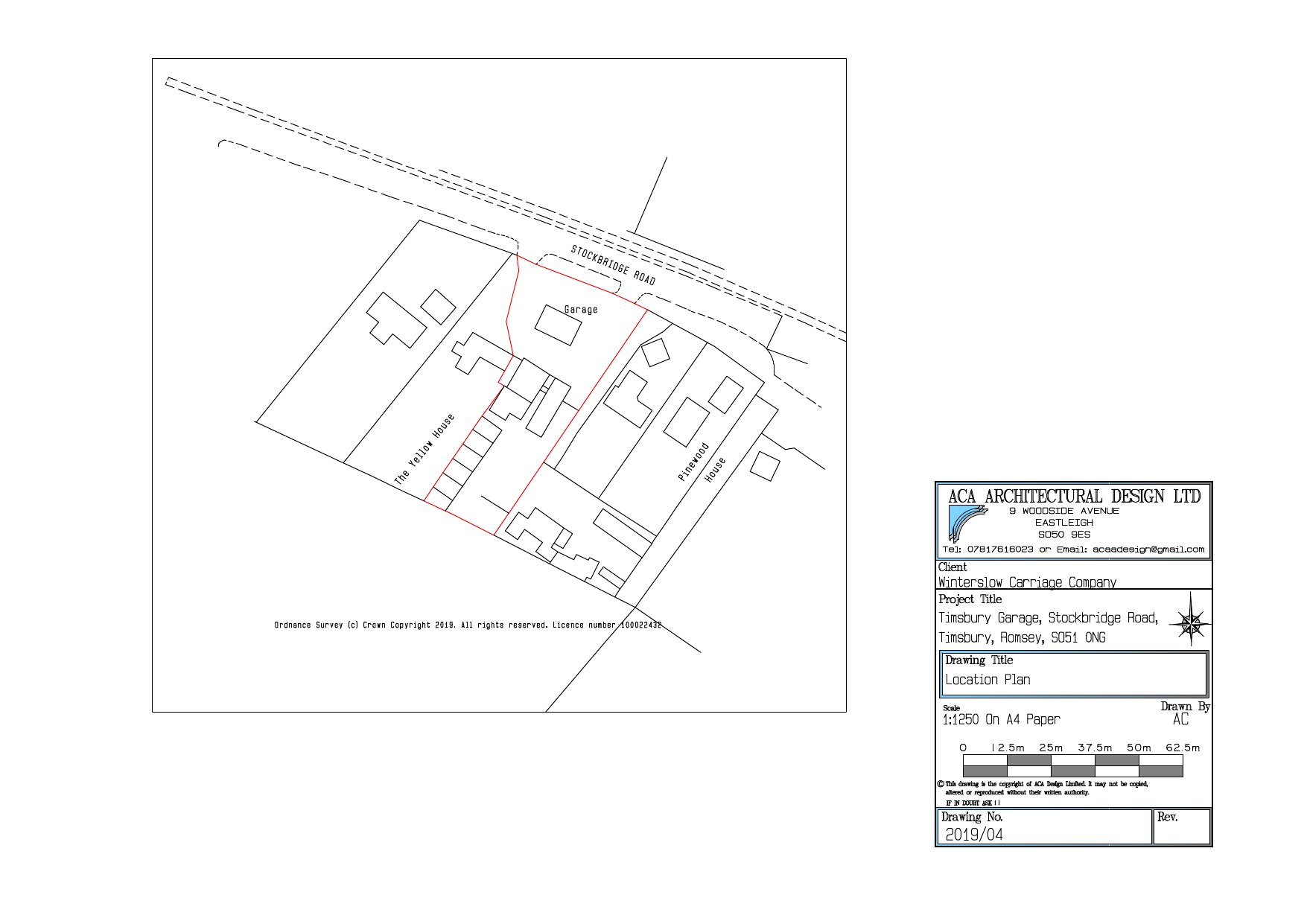
Redevelopment of site to provide two houses

Documents

AMENDED NOISE IMPACT ASSESSMENT
Supporting Information
Not yet archived · Original link
APPLICATION FORM
Supporting Information
Not yet archived · Original link
ECOLOGICAL ASSESSMENT
Supporting Information
Not yet archived · Original link
ECOLOGY (TVBC)
Consultation Responses
Not yet archived · Original link
ENVIRONMENTAL PROTECTION TEAM (TVBC)
Consultation Responses
Not yet archived · Original link
ENVIRONMENTAL PROTECTION TEAM (TVBC)
Consultation Responses
Not yet archived · Original link
ENVIRONMENTAL PROTECTION TEAM (TVBC)
Consultation Responses
Not yet archived · Original link
ENVIRONMENTAL PROTECTION TEAM (TVBC)
Consultation Responses
Not yet archived · Original link
EXISTING AND PROPOSED STREET SCENE AND SECTIONS
Drawing
Not yet archived · Original link
HIGHWAYS (HCC)
Consultation Responses
Not yet archived · Original link
LAND CONTAMINATION ASSESSMENT
Supporting Information
Not yet archived · Original link
MARKETING REPORT
Supporting Information
Not yet archived · Original link
MICHELMERSH AND TIMSBURY PARISH COUNCIL
Consultation Responses
Not yet archived · Original link
MR JOHN GLASSPOOL(FULL)
Public Comments
Not yet archived · Original link
PLANNING STATEMENT
Supporting Information
Not yet archived · Original link
PRELIMINARY INVESTIGATION REPORT (SOILS LIMITED) PART 1 OF 2
Supporting Information
Not yet archived · Original link
PRELIMINARY INVESTIGATION REPORT (SOILS LIMITED) PART 2 OF 2
Supporting Information
Not yet archived · Original link
PROPOSED SECTION
Drawing
Not yet archived · Original link
Drawing
Archived · Original link
SHADOW DIAGRAM
Drawing
Not yet archived · Original link
Drawing
Archived · Original link
TREES (TVBC)
Consultation Responses
Not yet archived · Original link

Have your say

Your comment matters. Councils must consider every representation that raises material planning considerations.

Write a comment