← Test Valley Borough Council

Status

Current New housing
Received
15 Jul 2025
New homes
1

Full proposal

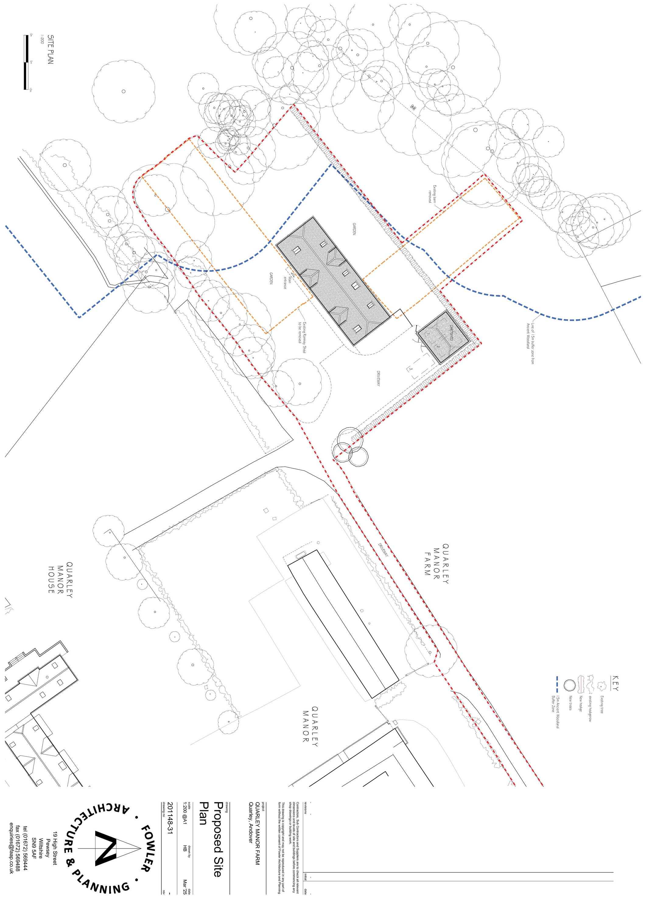
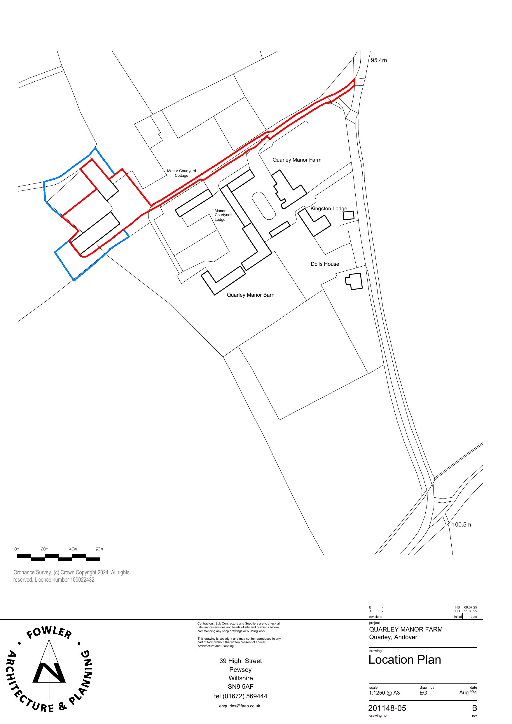
Removal of existing barns and erection of single detached dwelling; with associated garaging, parking, turning, landscaping, private amenity space and access.

Documents

A SUMMARY OF THE ATTACHMENTS IN THE PROPOSAL
Supporting Information
Not yet archived · Original link
ANNEX A - NATURAL ENGLAND
Consultation Responses
Not yet archived · Original link
APPLICATION FORM
Supporting Information
Not yet archived · Original link
ARBORICULTURAL IMPACT ASSESSMENT
Supporting Information
Not yet archived · Original link
BIODIVERSITY ASSESSMENT METRIC
Supporting Information
Not yet archived · Original link
BIODIVERSITY METRIC
Supporting Information
Not yet archived · Original link
BIODIVERSITY NET GAIN DESIGN STAGE REPORT
Supporting Information
Not yet archived · Original link
BIODIVERSITY NET GAIN DESIGN STAGE REPORT
Supporting Information
Not yet archived · Original link
COVERING LETTER
Supporting Information
Not yet archived · Original link
ECOLOGY (TVBC)
Consultation Responses
Not yet archived · Original link
ECOLOGY (TVBC)
Consultation Responses
Not yet archived · Original link
ECOLOGY (TVBC)
Consultation Responses
Not yet archived · Original link
ENVIRONMENTAL HEALTH (TVBC)
Consultation Responses
Not yet archived · Original link
EXISTING ELEVATIONS - NISSEN HUT
Drawing
Not yet archived · Original link
EXISTING FLOOR PLAN - NISSEN HUT
Drawing
Not yet archived · Original link
HABITAT PLAN - POST DEVELOPMENT
Drawing
Not yet archived · Original link
HABITAT PLAN -BASELINE
Drawing
Not yet archived · Original link
NATURAL ENGLAND
Consultation Responses
Not yet archived · Original link
NATURAL ENGLAND
Consultation Responses
Not yet archived · Original link
NUTRIENT ASSESSMENT & BUDGET
Supporting Information
Not yet archived · Original link
OFF SITE HABITAT PLAN - POST DEVELOPMENT
Drawing
Not yet archived · Original link
OFF SITE HABITAT PLAN -BASELINE
Drawing
Not yet archived · Original link
PRELIMINARY ECOLOGICAL APPRAISAL
Supporting Information
Not yet archived · Original link
Drawing
Archived · Original link
QUARLEY PARISH COUNCIL(FULL)
Consultation Responses
Not yet archived · Original link
REQUIREMENTS CHECKLIST
Supporting Information
Not yet archived · Original link
Drawing
Archived · Original link
TOPOGRAPHIC SURVEY - NISSEN HUT
Drawing
Not yet archived · Original link
TREES (TVBC)
Consultation Responses
Not yet archived · Original link
TREES (TVBC)
Consultation Responses
Not yet archived · Original link
UPDATED HABITATS REGULATION ASSESSMENT
Supporting Information
Not yet archived · Original link

Have your say

Your comment matters. Councils must consider every representation that raises material planning considerations.

Write a comment