← Test Valley Borough Council

Status

Current New housing
Received
15 Jul 2025
New homes
12

Full proposal

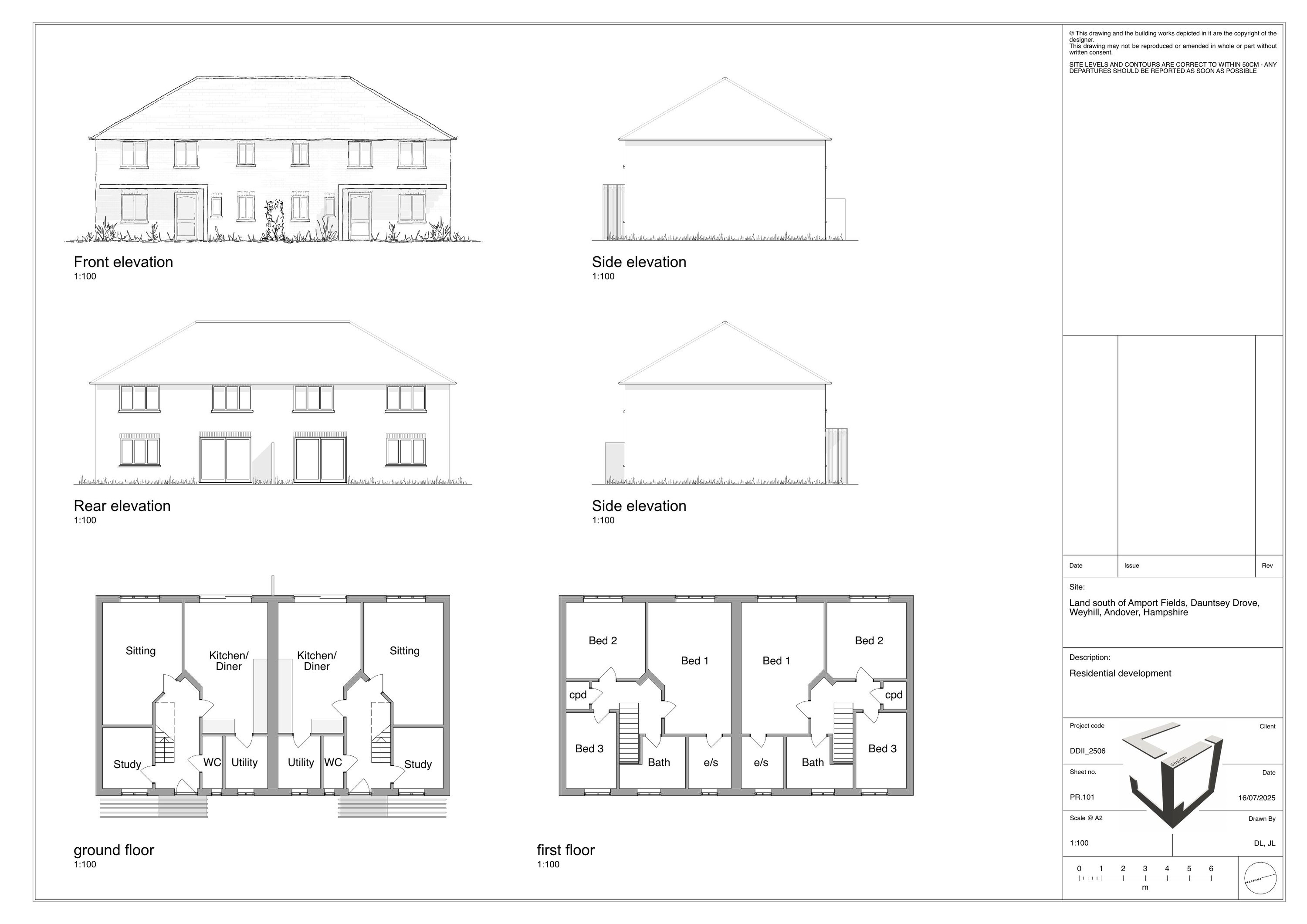
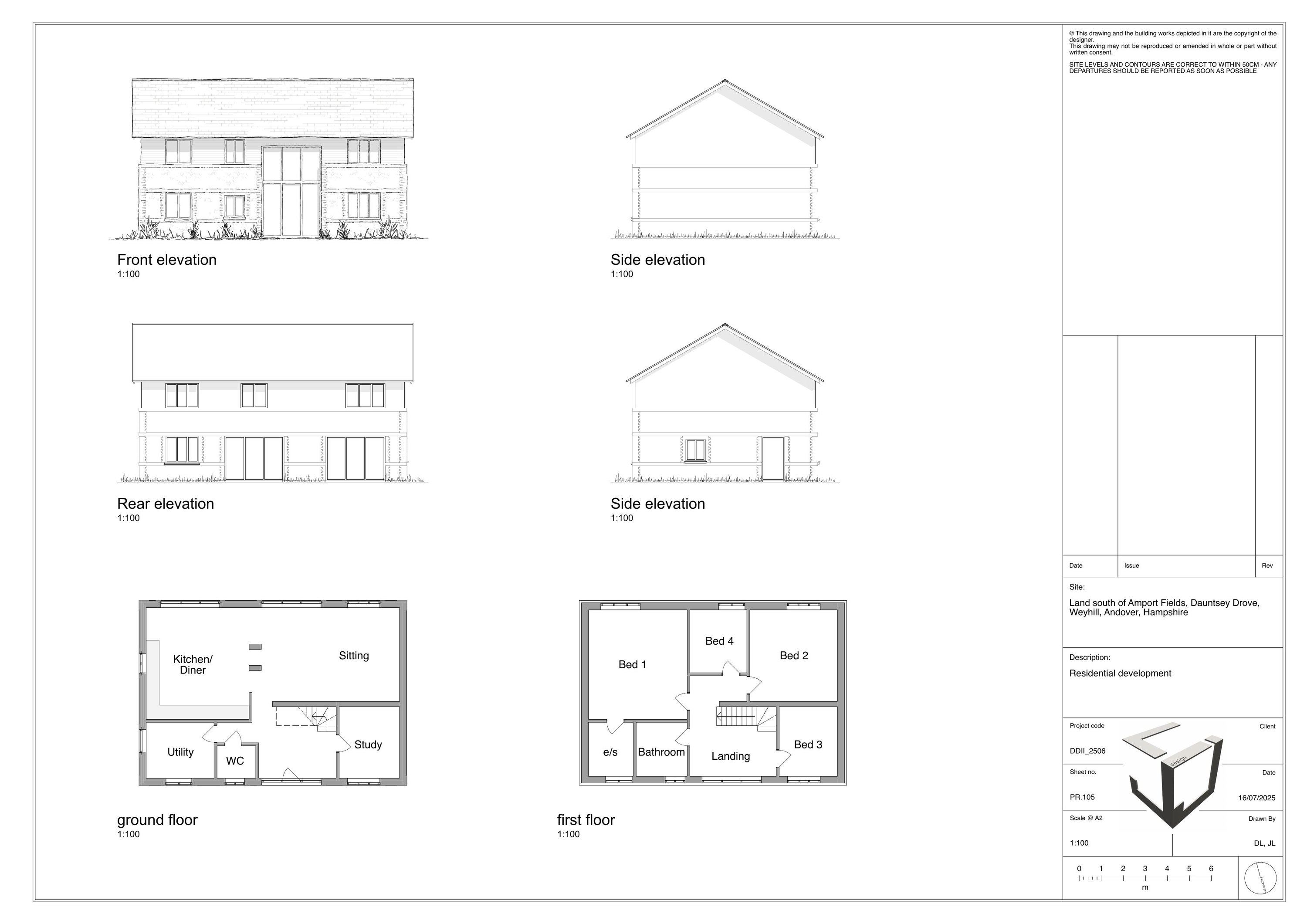
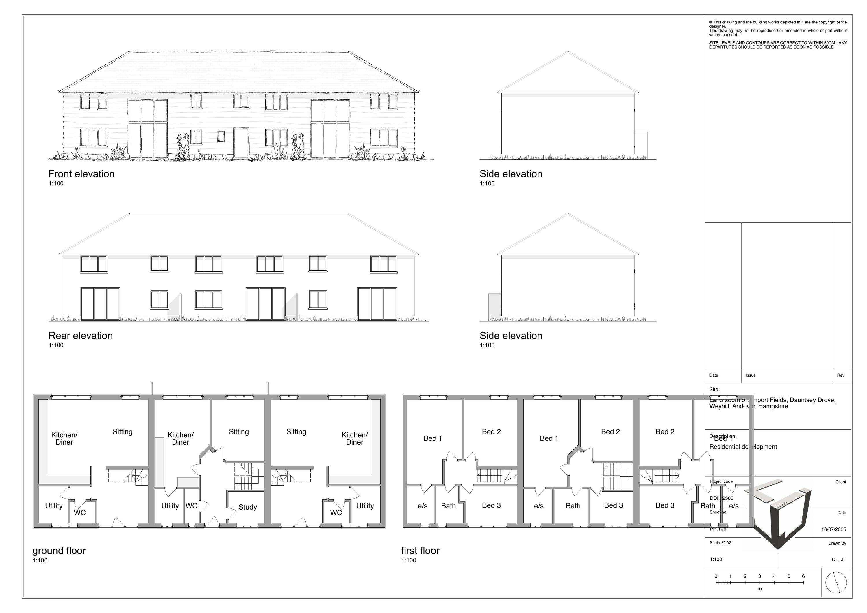
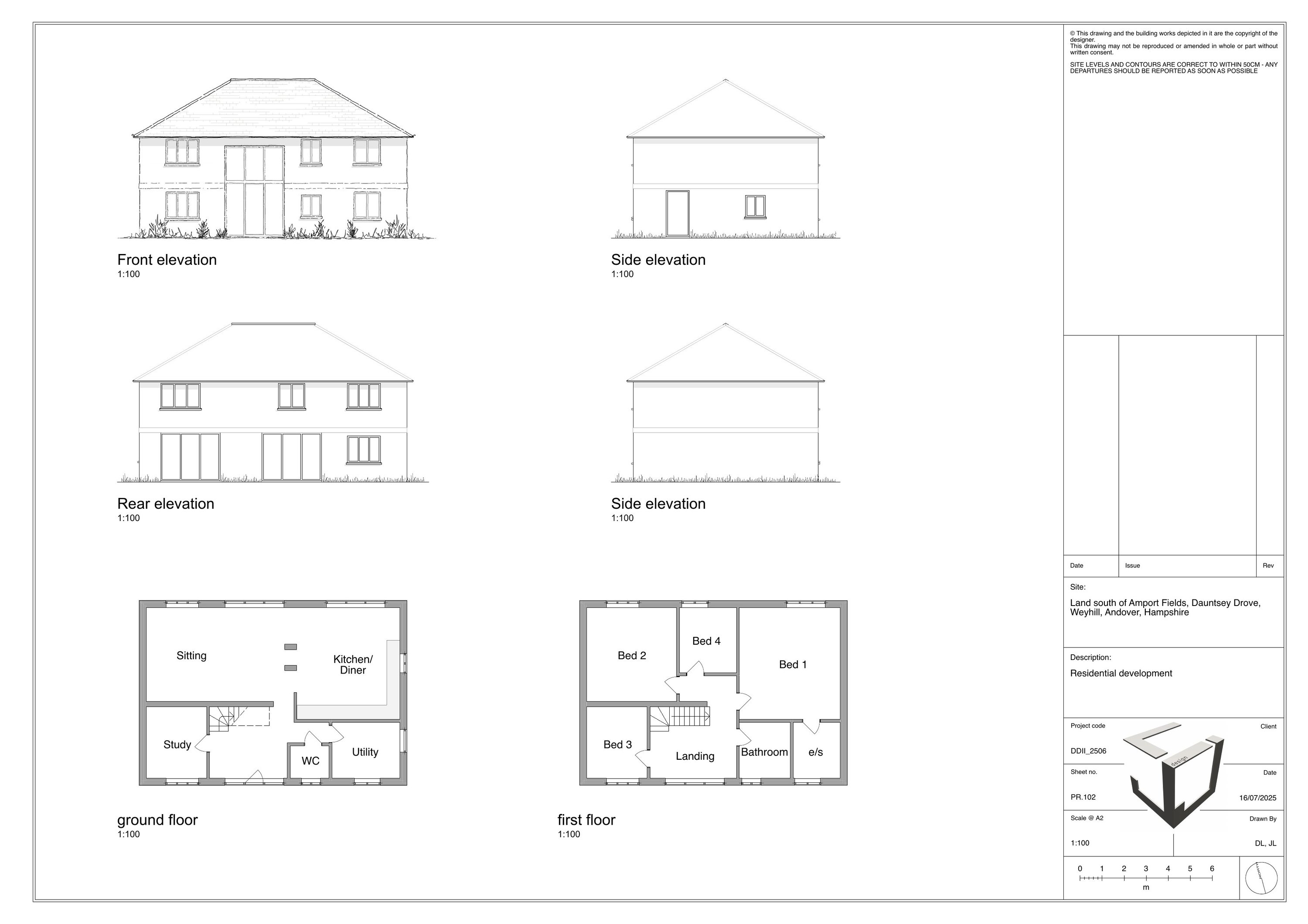
Erection of 12 dwellings (3 affordable) together with associated parking and landscaping

Documents

ADDITIONAL - NITRATE NEUTRALITY
Supporting Information
Not yet archived · Original link
ALISON CAMPBELL(FULL)
Public Comments
Not yet archived · Original link
AMENDED - DRAINAGE DESIGN REPORT
Supporting Information
Not yet archived · Original link
AMPORT FIELDS MANAGEMENT COMPANY LTD
Public Comments
Not yet archived · Original link
AMPORT PARISH COUNCIL
Consultation Responses
Not yet archived · Original link
APPLICATION FORM
Supporting Information
Not yet archived · Original link
ARBORICULTURAL IMPACT ASSESSMENT
Supporting Information
Not yet archived · Original link
ARCHAEOLOGY (HCC)
Consultation Responses
Not yet archived · Original link
BNG METRIC
Supporting Information
Not yet archived · Original link
BNG REPORT
Supporting Information
Not yet archived · Original link
BOURNE VALLEY ASSOCIATES LTD (ON BEHALF OF AMPORT FIELDS MANAGEMENT COMPANY)
Public Comments
Not yet archived · Original link
BOURNE VALLEY ASSOCIATES LTD (ON BEHALF OF AMPORT FIELDS MANAGEMENT COMPANY)
Public Comments
Not yet archived · Original link
CHILDREN SERVICES (HCC)
Consultation Responses
Not yet archived · Original link
DESIGN AND ACCESS STATEMENT
Supporting Information
Not yet archived · Original link
ECOLOGICAL IMPACT ASSESSMENT
Supporting Information
Not yet archived · Original link
ECOLOGY (TVBC)
Consultation Responses
Not yet archived · Original link
ENVIRONMENTAL PROTECTION
Consultation Responses
Not yet archived · Original link
EXISTING BLOCK PLAN
Drawing
Not yet archived · Original link
FLOOD WATER MANAGEMENT (HCC)
Consultation Responses
Not yet archived · Original link
HAMPSHIRE SWIFTS
Public Comments
Not yet archived · Original link
HIGHWAYS (HCC)
Consultation Responses
Not yet archived · Original link
HOUSING (TVBC)
Consultation Responses
Not yet archived · Original link
LANDSCAPE (TVBC)
Consultation Responses
Not yet archived · Original link
LANDSCAPE AND VISUAL APPRAISAL
Supporting Information
Not yet archived · Original link
LANDSCAPING STRATEGY
Drawing
Not yet archived · Original link
LEAD FLOOD AUTHORITY
Consultation Responses
Not yet archived · Original link
LEAD FLOOD AUTHORITY
Consultation Responses
Not yet archived · Original link
LEAD FLOOD AUTHORITY (HCC)
Consultation Responses
Not yet archived · Original link
MCGINN - AFMC LTD
Public Comments
Not yet archived · Original link
MR DEREK WARDLE(FULL)
Public Comments
Not yet archived · Original link
MR HOWARD DIX(FULL)
Public Comments
Not yet archived · Original link
MR HUGH NORTHAM(FULL)
Public Comments
Not yet archived · Original link
MR LOUIS KIRCHELL(FULL)
Public Comments
Not yet archived · Original link
MR RST GUNTER(FULL)
Public Comments
Not yet archived · Original link
MR STEFAN SLATTER(FULL)
Public Comments
Not yet archived · Original link
MR STEFAN SLATTER(FULL)
Public Comments
Not yet archived · Original link
MR STEVEN COUNSELL(FULL)
Public Comments
Not yet archived · Original link
MRS ALEXIS KIRCHELL(FULL)
Public Comments
Not yet archived · Original link
MRS ANNE CLARE WHITESIDE(FULL)
Public Comments
Not yet archived · Original link
MRS MARGARETHA NORTHAM(FULL)
Public Comments
Not yet archived · Original link
MRS SALLY MCGINN(FULL)
Public Comments
Not yet archived · Original link
MRS SARAH ELLIS(FULL)
Public Comments
Not yet archived · Original link
NUTRIENT NEUTRALITY ASSESSMENT
Supporting Information
Not yet archived · Original link
PHASE I GEO-ENVIRONMENTAL DESK STUDY
Supporting Information
Not yet archived · Original link
PLANNING STATEMENT
Supporting Information
Not yet archived · Original link
PLOT INFORMATION SCHEDULE
Supporting Information
Not yet archived · Original link
POLICY (TVBC)
Consultation Responses
Not yet archived · Original link
PROPOSED BLOCK PLAN
Drawing
Not yet archived · Original link
PROPOSED ELEVATIONS - GARDEN SHED
Drawing
Not yet archived · Original link
Drawing
Archived · Original link
Drawing
Archived · Original link
SOUTHERN WATER
Consultation Responses
Not yet archived · Original link
SOUTHERN WATER (GIS)
Consultation Responses
Not yet archived · Original link
SOUTHERN WATER HOLDING LETTER
Consultation Responses
Not yet archived · Original link
STREET SCENE
Drawing
Not yet archived · Original link
SUSTAINABILITY APPRAISAL
Supporting Information
Not yet archived · Original link
SWIFT
Public Comments
Not yet archived · Original link
THOROGOOD
Public Comments
Not yet archived · Original link
TRANSPORT NOTE
Supporting Information
Not yet archived · Original link
UK HABITATS PLAN
Drawing
Not yet archived · Original link
WARD
Public Comments
Not yet archived · Original link
WARD
Public Comments
Not yet archived · Original link
WOOD
Public Comments
Not yet archived · Original link

Have your say

Your comment matters. Councils must consider every representation that raises material planning considerations.

Write a comment