← Test Valley Borough Council

Status

Current New housing
Received
09 Oct 2025
New homes
4

Full proposal

Erection of 4 dwellings and garages, creation of access, landscaping, parking and public open space

Documents

ADDITIONAL - LETTER RESPONSE TO ECOLOGY
Supporting Information
Not yet archived · Original link
ADDITIONAL - RESPONSE TO ECOLOGY COMMENTS
Supporting Information
Not yet archived · Original link
AMENDED - ARBORICULTURAL IMPACT ASSESSMENT
Supporting Information
Not yet archived · Original link
AMENDED - BNG METRIC
Supporting Information
Not yet archived · Original link
AMENDED - DRAINAGE STRATEGY
Drawing
Not yet archived · Original link
AMENDED - ECOLOGICAL ASSESSMENT AND BNG REPORT
Supporting Information
Not yet archived · Original link
APPLICATION FORM
Supporting Information
Not yet archived · Original link
BARTON STACEY PARISH COUNCIL
Consultation Responses
Not yet archived · Original link
BIERLING
Public Comments
Not yet archived · Original link
COMBINED HARD AND SOFT LANDSCAPE LAYOUT
Drawing
Not yet archived · Original link
COVERING LETTER
Supporting Information
Not yet archived · Original link
DESIGN AND ACCESS STATEMENT
Supporting Information
Not yet archived · Original link
DRAINAGE STATEMENT
Supporting Information
Not yet archived · Original link
DUCKWORTH
Public Comments
Not yet archived · Original link
ECOLOGICAL ASSESSMENT & BNG REPORT
Supporting Information
Not yet archived · Original link
ECOLOGY (TVBC)
Consultation Responses
Not yet archived · Original link
ECOLOGY (TVBC)
Consultation Responses
Not yet archived · Original link
ECOLOGY (TVBC)
Consultation Responses
Not yet archived · Original link
ECOLOGY (TVBC)
Consultation Responses
Not yet archived · Original link
EIA NOT REQUIRED (INTERIM)
Decision Notice
Not yet archived · Original link
ENVIRONMENTAL PROTECTION TEAM (TVBC)
Consultation Responses
Not yet archived · Original link
EXISTING SITE SURVEY
Drawing
Not yet archived · Original link
FROST
Public Comments
Not yet archived · Original link
GINGELL
Public Comments
Not yet archived · Original link
GLEESON
Public Comments
Not yet archived · Original link
GURUNG
Public Comments
Not yet archived · Original link
HAMPSHIRE SWIFTS
Public Comments
Not yet archived · Original link
HIGHWAYS (HCC)
Consultation Responses
Not yet archived · Original link
HISTORIC ENVIRONMENT DESK-BASED ASSESSMENT
Supporting Information
Not yet archived · Original link
ILLUSTRATIVE MASTERPLAN
Drawing
Not yet archived · Original link
INFORMATION TO INFORM A HABITAT REGULATIONS ASSESSMENT
Supporting Information
Not yet archived · Original link
JONES
Public Comments
Not yet archived · Original link
KREIBICH
Public Comments
Not yet archived · Original link
LAND CONTAMINATION ASSESSMENT
Supporting Information
Not yet archived · Original link
LANDSCAPE & VISUAL IMPACT ASSESSMENT
Supporting Information
Not yet archived · Original link
LANDSCAPE (TVBC)
Consultation Responses
Not yet archived · Original link
LANDSCAPE STATEMENT (1/2)
Supporting Information
Not yet archived · Original link
LANDSCAPE STATEMENT (2/2)
Supporting Information
Not yet archived · Original link
LOCATION PLAN
Drawing
Not yet archived · Original link
MCCLUTCHIE
Public Comments
Not yet archived · Original link
MR & MRS STRICKLAND
Public Comments
Not yet archived · Original link
MR AND MRS ALEXANDER(FULL)
Public Comments
Not yet archived · Original link
MR CSONGOR SZIJ(FULL)
Public Comments
Not yet archived · Original link
MR S AMBROSE & MRS B AMBROSE
Public Comments
Not yet archived · Original link
MRS ANNE HEATH(FULL)
Public Comments
Not yet archived · Original link
MRS B, MR AE, MR GWR & MS EA YOUNG
Public Comments
Not yet archived · Original link
MRS ELSPETH BAWTREE(FULL)
Public Comments
Not yet archived · Original link
MRS KAREN WASS(FULL)
Public Comments
Not yet archived · Original link
O'NEILL
Public Comments
Not yet archived · Original link
PLANNING ACCOMMODATION SCHEDULE
Supporting Information
Not yet archived · Original link
PLANNING STATEMENT (1/2)
Supporting Information
Not yet archived · Original link
PLANNING STATEMENT (2/2)
Supporting Information
Not yet archived · Original link
POLICY (TVBC)
Consultation Responses
Not yet archived · Original link
PROPOSED COLOURED SITE LAYOUT
Drawing
Not yet archived · Original link
PROPOSED ELEVATIONS ? PLOTS 1 & 2
Drawing
Not yet archived · Original link
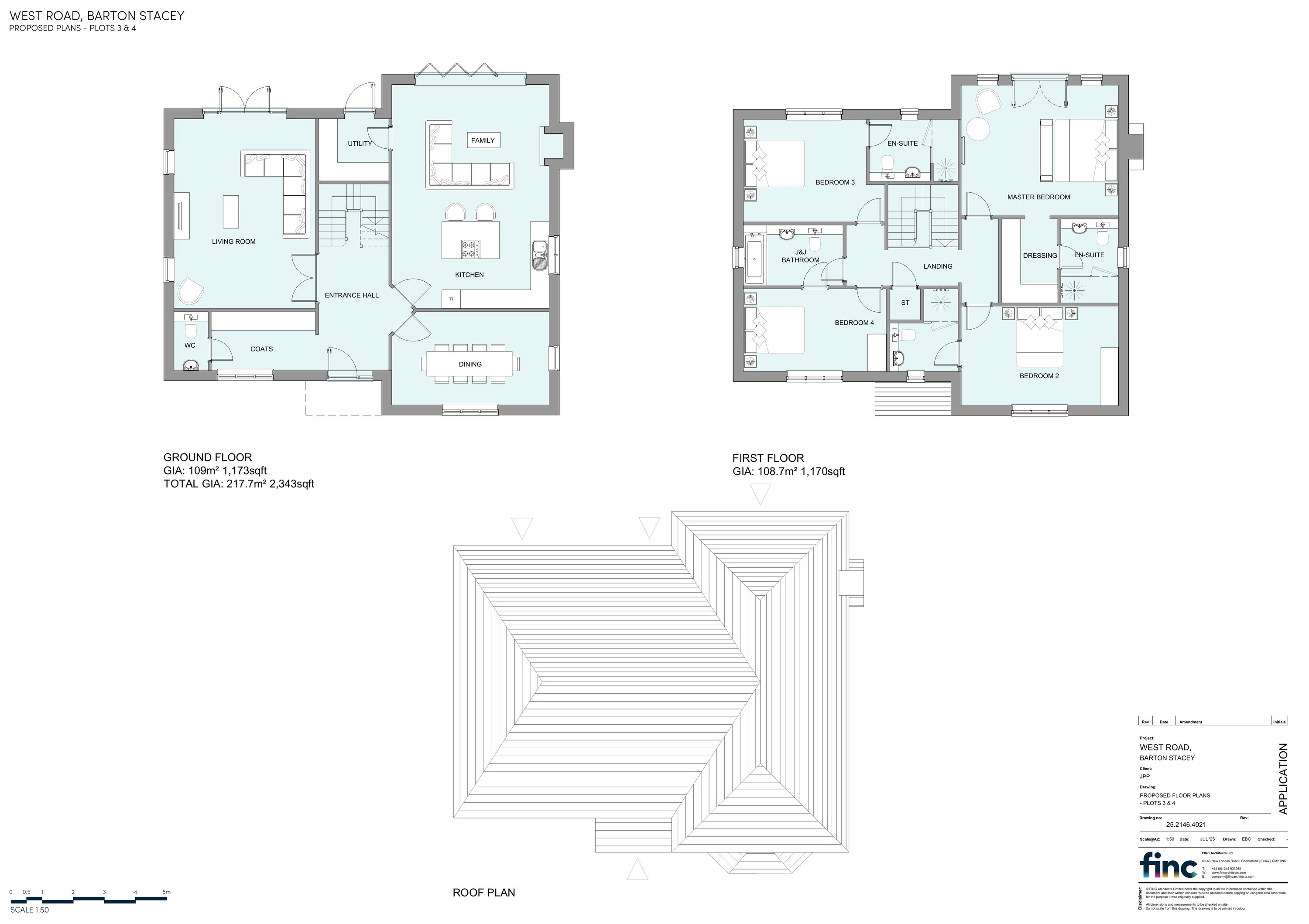
PROPOSED ELEVATIONS ? PLOTS 3 & 4
Drawing
Not yet archived · Original link
PROPOSED SECTION
Drawing
Not yet archived · Original link
PROPOSED SITE LAYOUT
Drawing
Not yet archived · Original link
PROPOSED STREET SCENE
Drawing
Not yet archived · Original link
RICHARD BUXTON SOLICITORS
Public Comments
Not yet archived · Original link
SCREENING OPINION REPORT
Officer Report
Not yet archived · Original link
SMITH
Public Comments
Not yet archived · Original link
SOUTHERN WATER (GIS)
Consultation Responses
Not yet archived · Original link
SOUTHERN WATER (RESPONSE LETTER)
Consultation Responses
Not yet archived · Original link
STACEY
Public Comments
Not yet archived · Original link
TICKNER
Public Comments
Not yet archived · Original link
TRANSPORT ASSESSMENT
Supporting Information
Not yet archived · Original link
TREE PROTECTION PLAN
Drawing
Not yet archived · Original link
TREE SURVEY
Supporting Information
Not yet archived · Original link
TREES (TVBC)
Consultation Responses
Not yet archived · Original link
TREES (TVBC)
Consultation Responses
Not yet archived · Original link
TREES (TVBC)
Consultation Responses
Not yet archived · Original link
UTILITIES STATEMENT
Supporting Information
Not yet archived · Original link
WATER NEUTRALITY STATEMENT
Supporting Information
Not yet archived · Original link
WEBBER
Public Comments
Not yet archived · Original link
ZORAB
Public Comments
Not yet archived · Original link

Have your say

Your comment matters. Councils must consider every representation that raises material planning considerations.

Write a comment