← Test Valley Borough Council

Status

Current Change of use
Received
09 Dec 2025
New homes
0

Full proposal

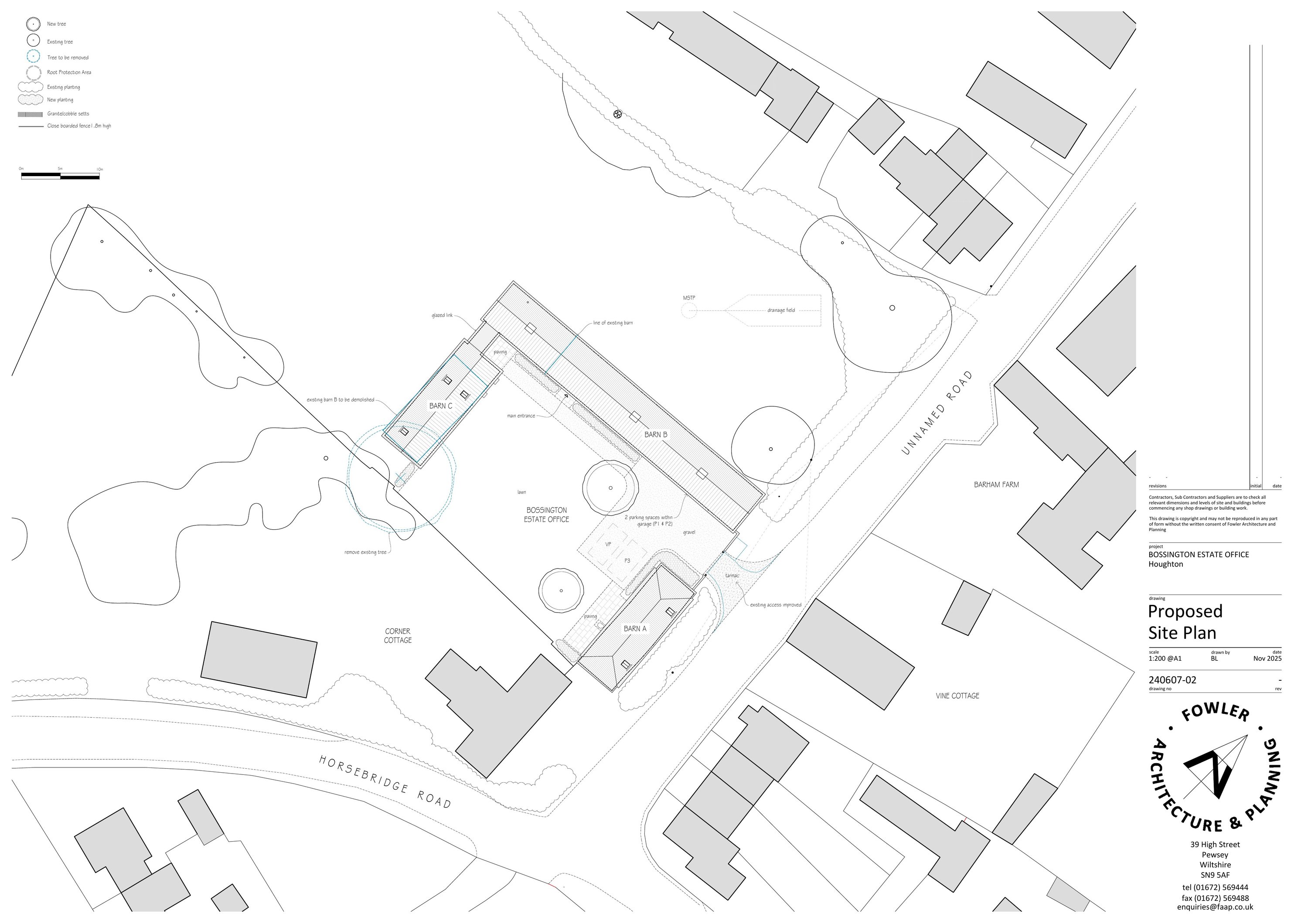
Change of use and conversion of Building B from estate office and agricultural storage to C3 dwellinghouse, and erection of single and two storey extensions following demolition of redundant storage barn (Building C), Conversion of threshing barn (Building A) to provide additional living accommodation. Site clearance and other associated works including hard and soft landscaping

Documents

ADDITIONAL - HABITAT REGULATIONS ASSESSMENT
Supporting Information
Not yet archived · Original link
ADDITIONAL - MARKETING UPDATE REPORT
Supporting Information
Not yet archived · Original link
ADDITIONAL - NITRATE CALCULATIONS
Supporting Information
Not yet archived · Original link
AMENDED PROPOSAL
Supporting Information
Not yet archived · Original link
APPLICATION FORM
Supporting Information
Not yet archived · Original link
BIODIVERSITY CHECKLIST
Supporting Information
Not yet archived · Original link
CONSERVATION (TVBC)
Consultation Responses
Not yet archived · Original link
ECOLOGICAL ASSESSMENT REPORT
Supporting Information
Not yet archived · Original link
ECOLOGY (TVBC)
Consultation Responses
Not yet archived · Original link
EXISTING ELEVATIONS & SECTION - OFFICE
Drawing
Not yet archived · Original link
EXISTING ELEVATIONS - BARN
Drawing
Not yet archived · Original link
EXISTING ELEVATIONS - OUTBUILDING
Drawing
Not yet archived · Original link
EXISTING FLOOR PLAN - BARN
Drawing
Not yet archived · Original link
EXISTING FLOOR PLAN - OFFICE
Drawing
Not yet archived · Original link
EXISTING FLOOR PLAN - OUTBUILDING
Drawing
Not yet archived · Original link
EXISTING ROOF PLAN - BARN
Drawing
Not yet archived · Original link
EXISTING ROOF PLAN - OFFICE
Drawing
Not yet archived · Original link
EXISTING SECTION - BARN
Drawing
Not yet archived · Original link
FURTHER ECOLOGY COMMENTS (TVBC)
Consultation Responses
Not yet archived · Original link
HERITAGE, DESIGN, ACCESS & PLANNING STATEMENT
Supporting Information
Not yet archived · Original link
HOUGHTON PARISH COUNCIL
Consultation Responses
Not yet archived · Original link
JOHN MORGAN
Public Comments
Not yet archived · Original link
JUSTIFICATION REPORT
Supporting Information
Not yet archived · Original link
LANDSCAPE
Consultation Responses
Not yet archived · Original link
LOCATION & BLOCK PLANS
Drawing
Not yet archived · Original link
MARKETING ADDENDUM
Supporting Information
Not yet archived · Original link
MORGAN
Public Comments
Not yet archived · Original link
MORGAN
Public Comments
Not yet archived · Original link
MORGAN
Public Comments
Not yet archived · Original link
MORGAN
Public Comments
Not yet archived · Original link
MR DAVID LIVERMORE(FULL)
Public Comments
Not yet archived · Original link
MR MIKE SMART(FULL)
Public Comments
Not yet archived · Original link
MR PETER TRUSCOTT(FULL)
Public Comments
Not yet archived · Original link
NATURAL ENGLAND
Consultation Responses
Not yet archived · Original link
NITROGEN BUDGET
Supporting Information
Not yet archived · Original link
NUTRIENT CALCULATION
Supporting Information
Not yet archived · Original link
PRA, NESTING BIRDS AND BAT ACTIVITY SURVEY REPORT
Supporting Information
Not yet archived · Original link
PROPOSED ELEVATIONS - BARN A
Drawing
Not yet archived · Original link
PROPOSED ELEVATIONS - BARN C
Drawing
Not yet archived · Original link
Drawing
Archived · Original link
Drawing
Archived · Original link
STRUCTURAL INSPECTION REPORT
Supporting Information
Not yet archived · Original link
TOPOGRAPHICAL SURVEY
Drawing
Not yet archived · Original link

Have your say

Your comment matters. Councils must consider every representation that raises material planning considerations.

Write a comment