← Test Valley Borough Council

Status

Current House extension
Received
19 Jan 2026
New homes
0

Full proposal

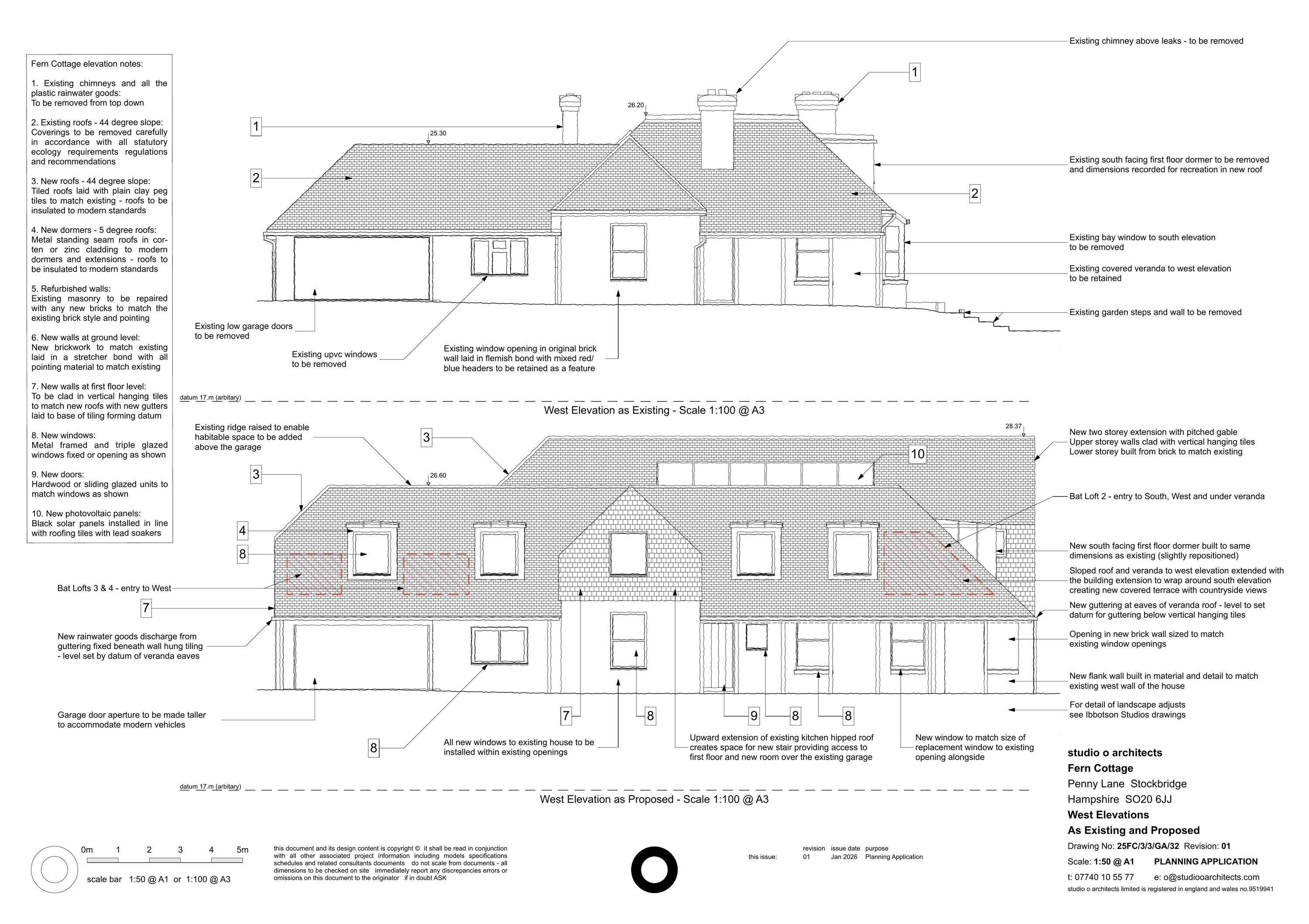
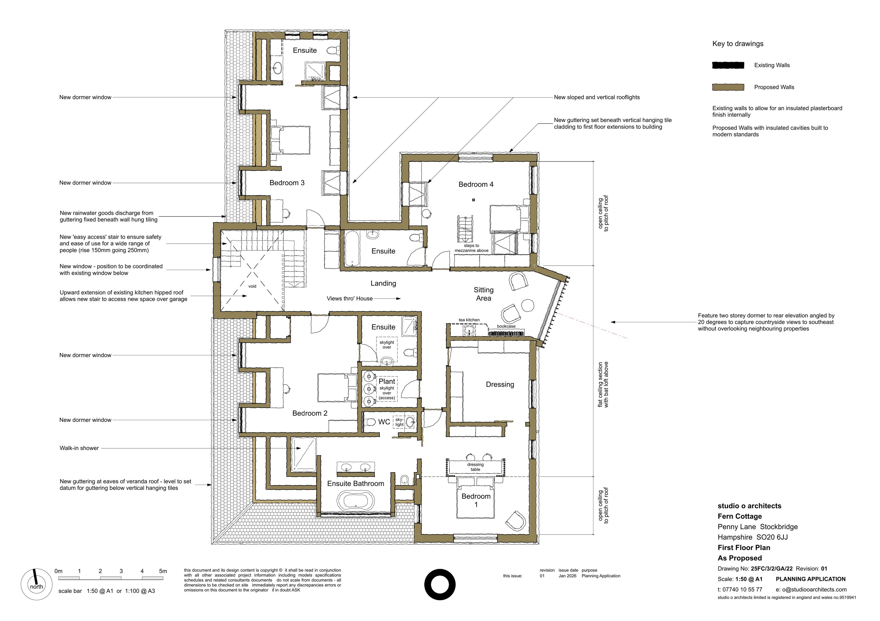
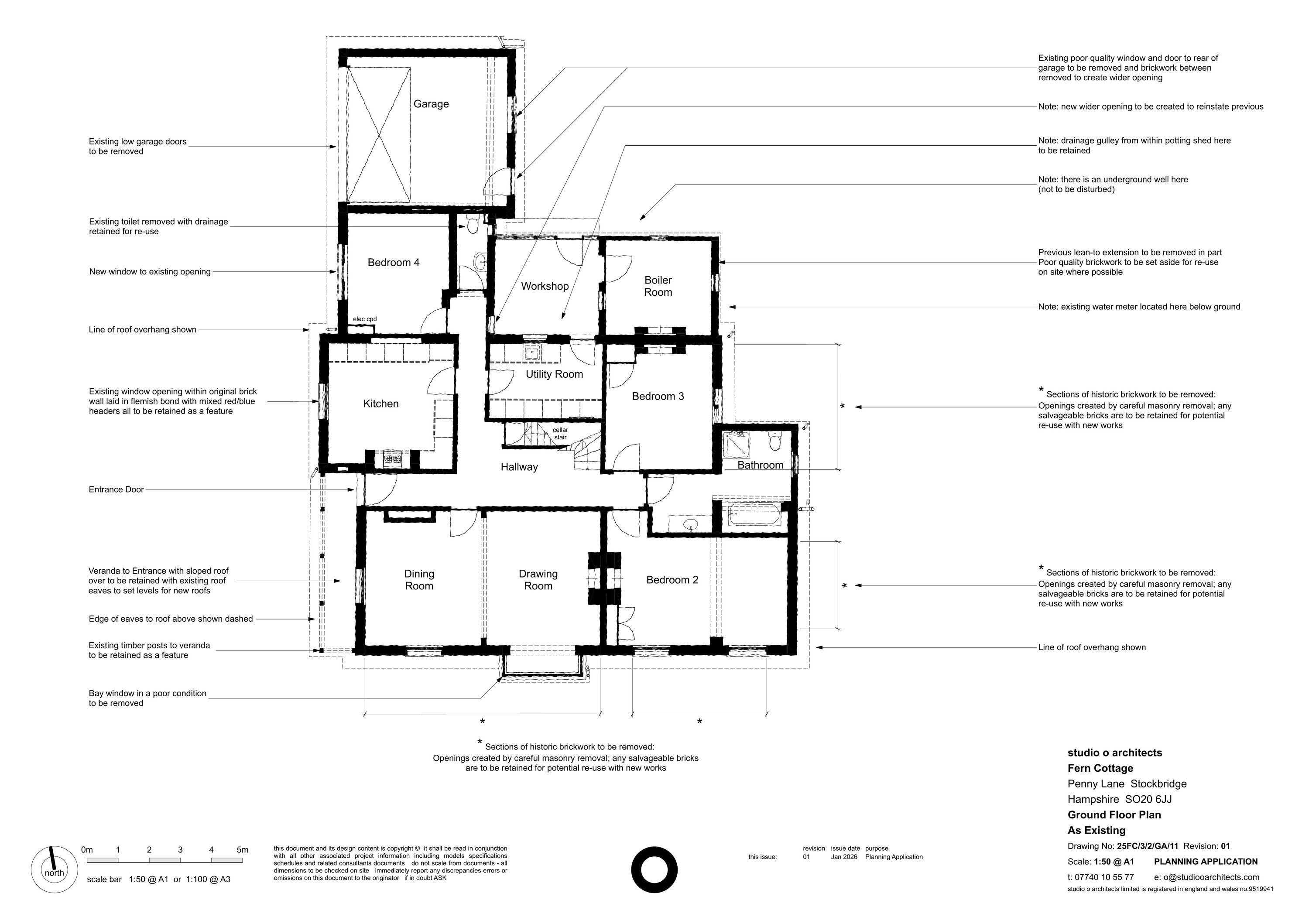
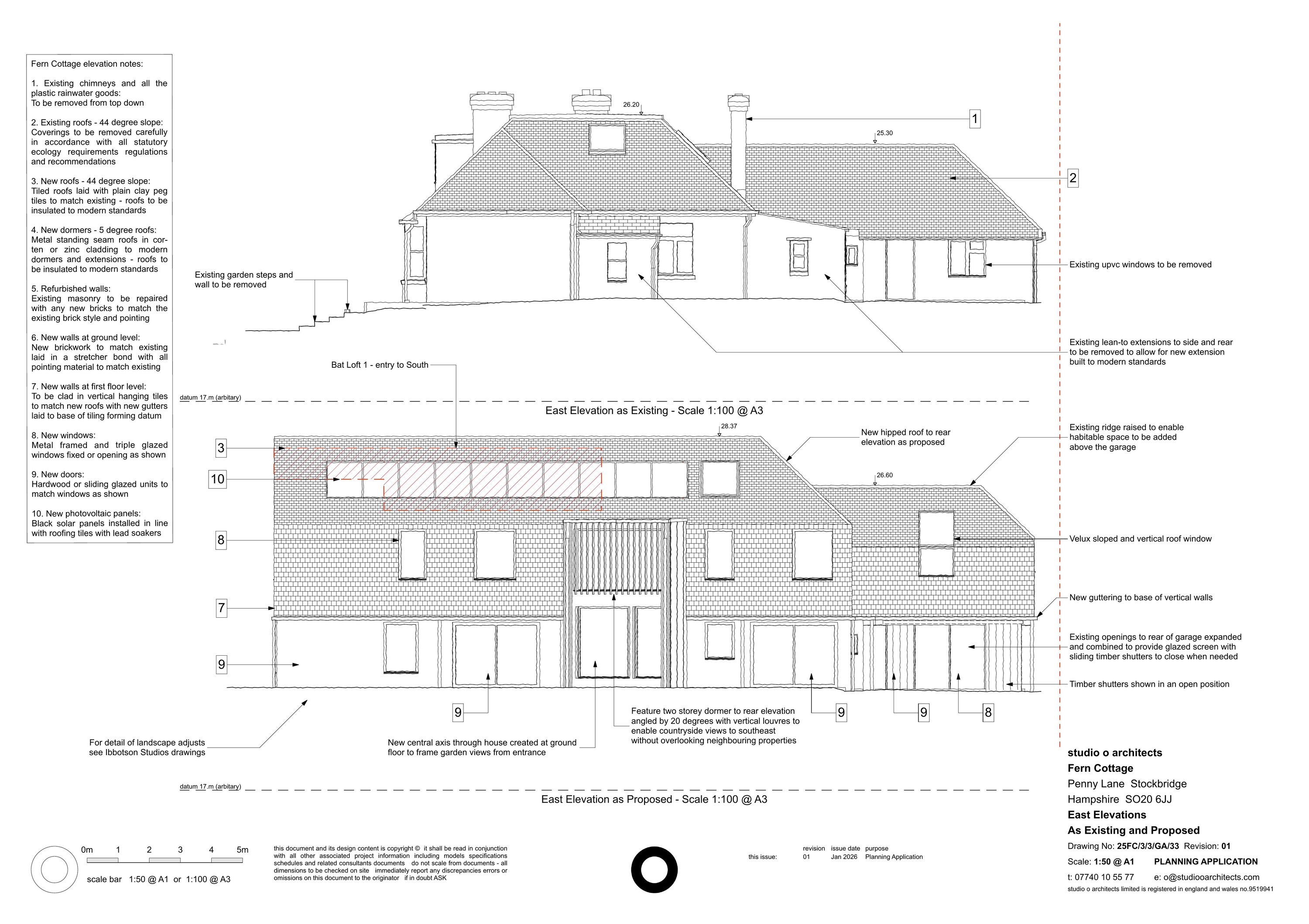
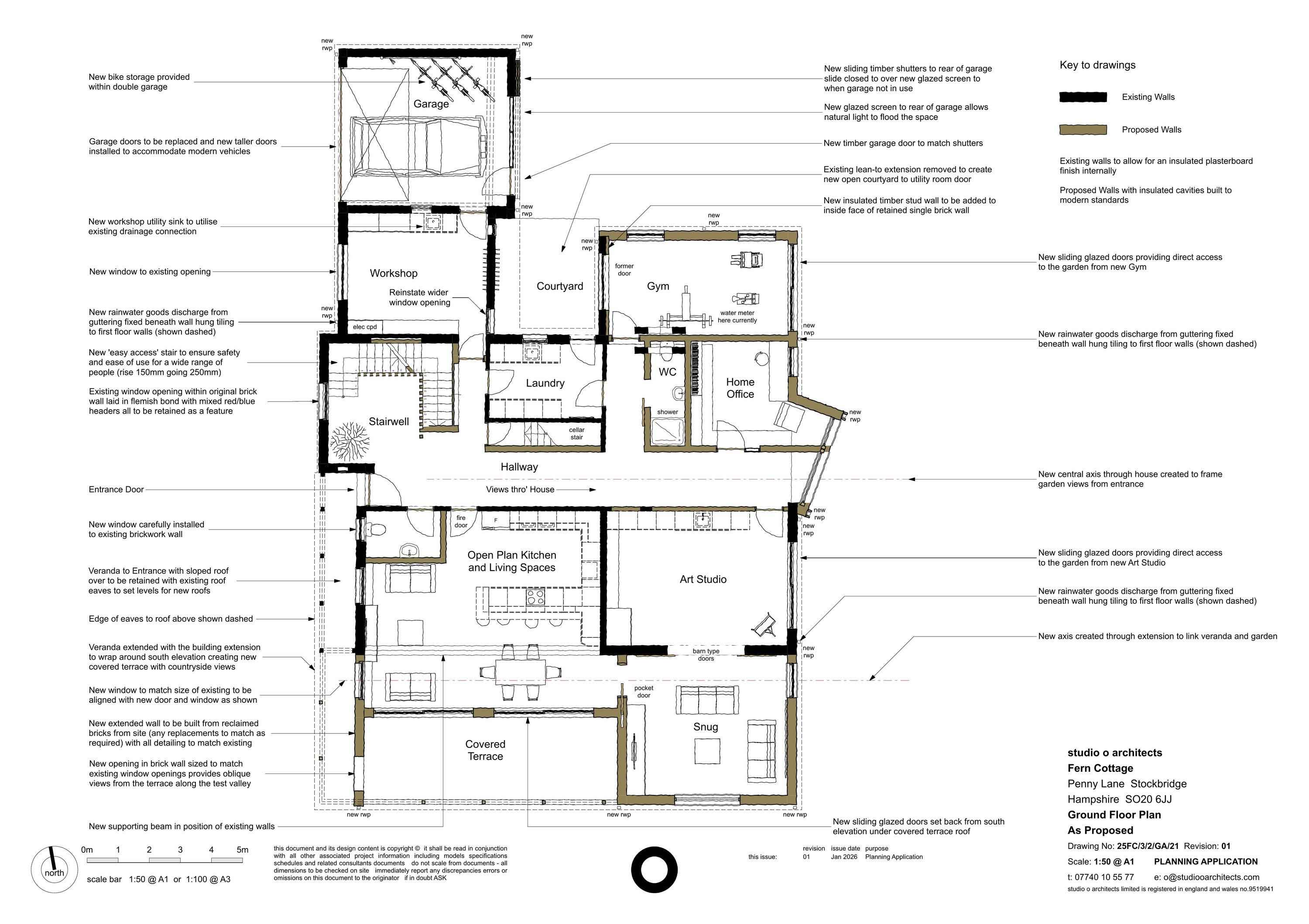
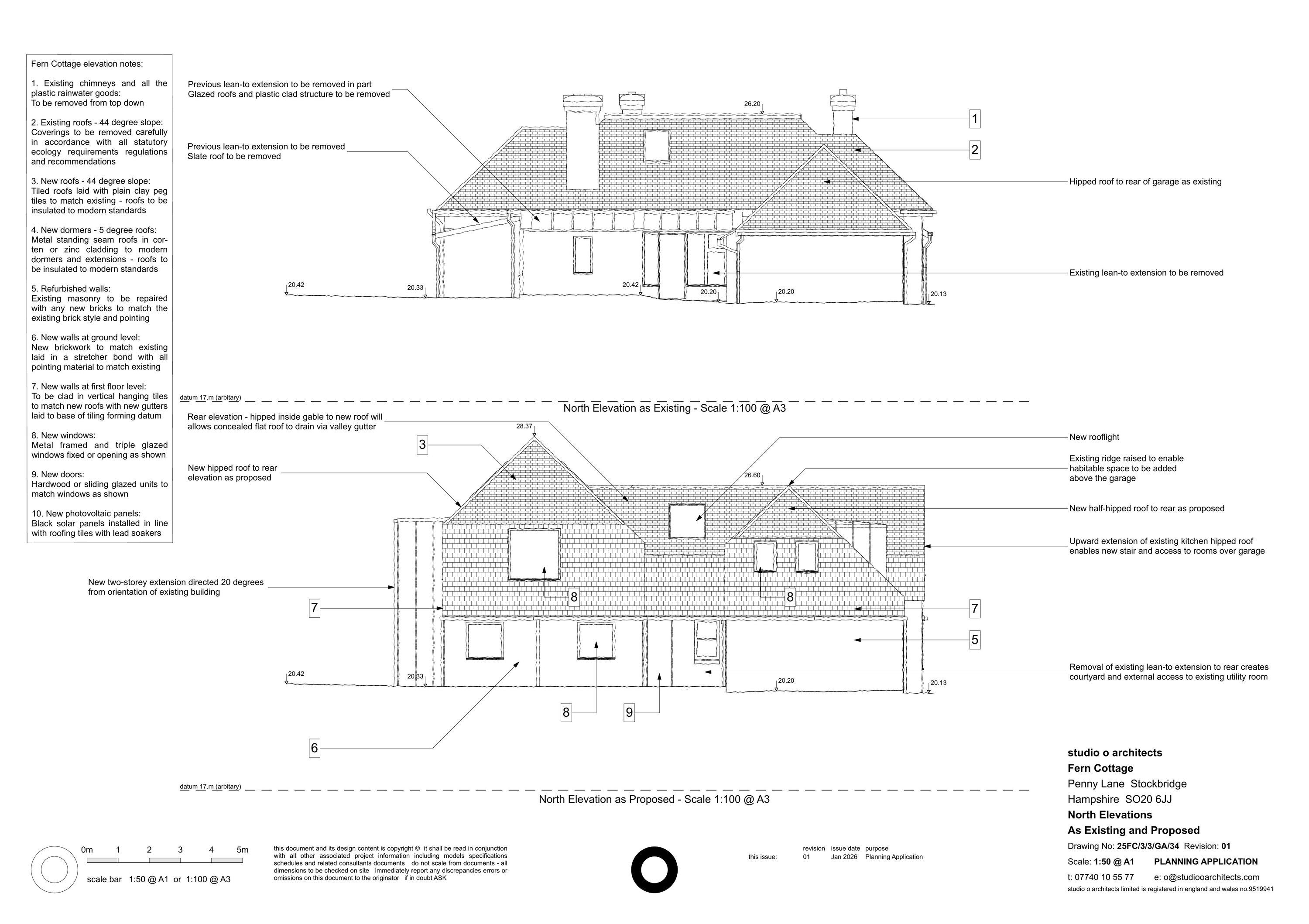
Demolition of lean to and remove chimneys, ground floor northeast and southern extensions, replace roof and increase roof levels to allow for first floor extensions including insulation, extend veranda, replace existing dormer and add new dormers, rooflights, alterations to fenestration

Have your say

Your comment matters. Councils must consider every representation that raises material planning considerations.

Write a comment