← Test Valley Borough Council

Status

Current House extension
Received
Last month
New homes
0

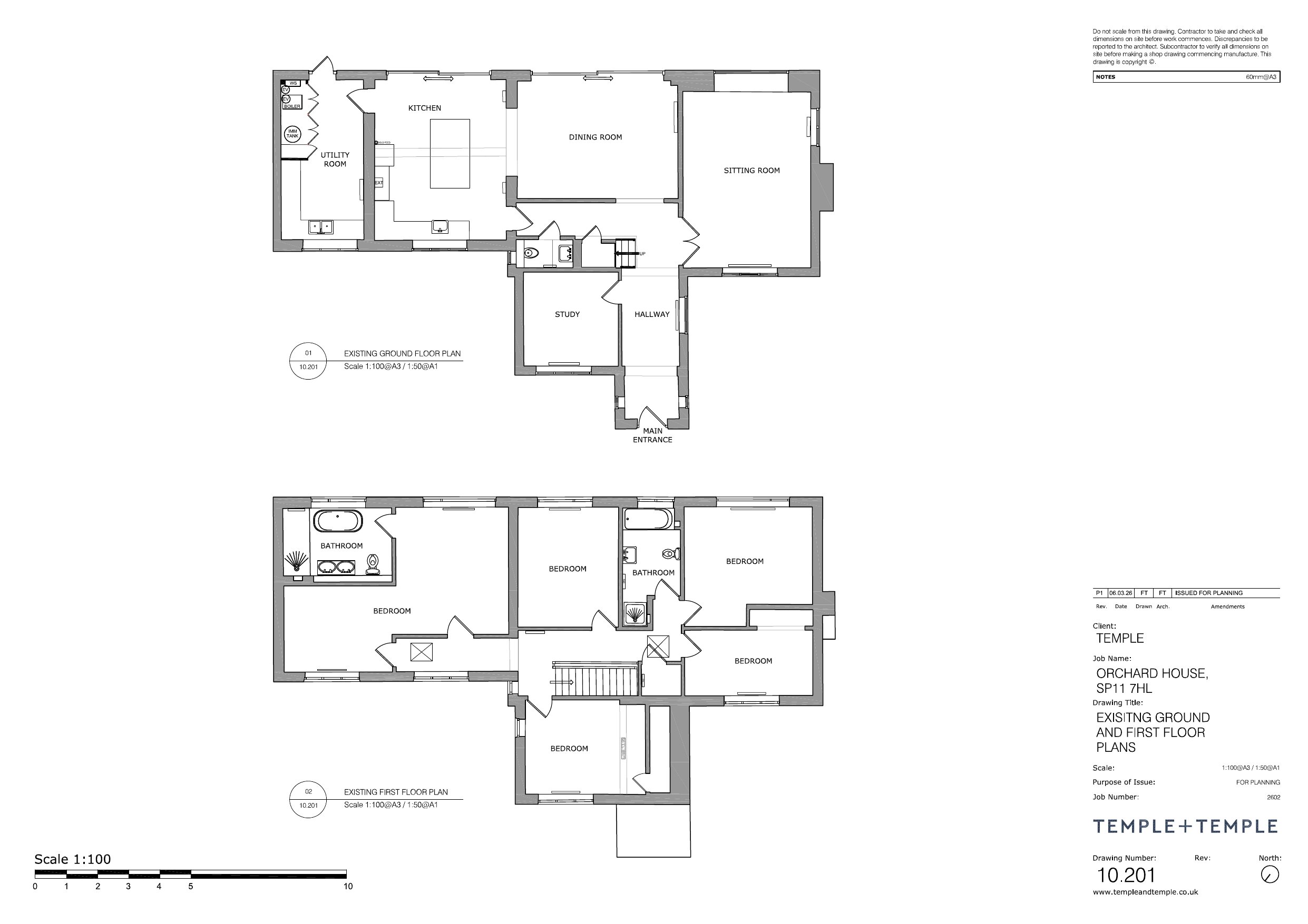
Full proposal

Construction of an open-sided single storey front porch canopy extension, alongside a new render finish to the existing painted brickwork on the ground floor elevations.

Documents

Supporting Information
Archived · Original link
Supporting Information
Archived · Original link
Supporting Information
Archived · Original link
Supporting Information
Archived · Original link
Drawing
Archived · Original link
Drawing
Archived · Original link
Drawing
Archived · Original link
Drawing
Archived · Original link

Have your say

Your comment matters. Councils must consider every representation that raises material planning considerations.

Write a comment