← Tewkesbury Borough Council

Status

Unknown New housing
Received
18 Mar 2025
New homes
4

Full proposal

Full planning application for the erection of 4no. semi-detached dwellings, including associated access, parking and landscaping.

Documents

Application form
Application Form
Not yet archived · Original link
Approximate extent of site
Other Reports
Not yet archived · Original link
Archaeology
Consultee Comment
Not yet archived · Original link
Bng assessment - supplementary report
Other Reports
Not yet archived · Original link
Calculation tool
Other Reports
Not yet archived · Original link
Consultee comment submitted online
Consultee Comment
Not yet archived · Original link
Detailed planting strategy
Drawing
Not yet archived · Original link
Drainage engineer
Consultee Comment
Not yet archived · Original link
Drainage strategy statement
Other Reports
Not yet archived · Original link
Ecological planning advisor
Consultee Comment
Not yet archived · Original link
Ecology
Consultee Comment
Not yet archived · Original link
Environmental designations plan
Drawing
Not yet archived · Original link
Environmental health officer
Consultee Comment
Not yet archived · Original link
Existing site/block plan
Drawing
Not yet archived · Original link
Gloucestershire county assistant archaeologist
Consultee Comment
Not yet archived · Original link
Heritage assessment
Other Reports
Not yet archived · Original link
Highways
Consultee Comment
Not yet archived · Original link
Highways consultee comment
Consultee Comment
Not yet archived · Original link
Highways officer
Consultee Comment
Not yet archived · Original link
Historic england
Consultee Comment
Not yet archived · Original link
Historic environment desk-based assessment
Other Reports
Not yet archived · Original link
Land drainage advice
Consultee Comment
Not yet archived · Original link
Landscape and visual appraisal
Other Reports
Not yet archived · Original link
Letter of representation no. 1
Objection Comment
Not yet archived · Original link
Letter of representation no. 1a
Objection Comment
Not yet archived · Original link
Letter of representation no. 2
Objection Comment
Not yet archived · Original link
Letter of representation no. 3
Objection Comment
Not yet archived · Original link
Letter of representation no. 4
Objection Comment
Not yet archived · Original link
Letter of representation no. 5
Objection Comment
Not yet archived · Original link
Letter of representation no. 6
Objection Comment
Not yet archived · Original link
Lidar zone of theoretical visibility plan
Drawing
Not yet archived · Original link
Materials
Drawing
Not yet archived · Original link
Planning, design & access statement
Other Reports
Not yet archived · Original link
Preliminary ecological appraisal
Other Reports
Not yet archived · Original link
Proposed block plan
Drawing
Not yet archived · Original link
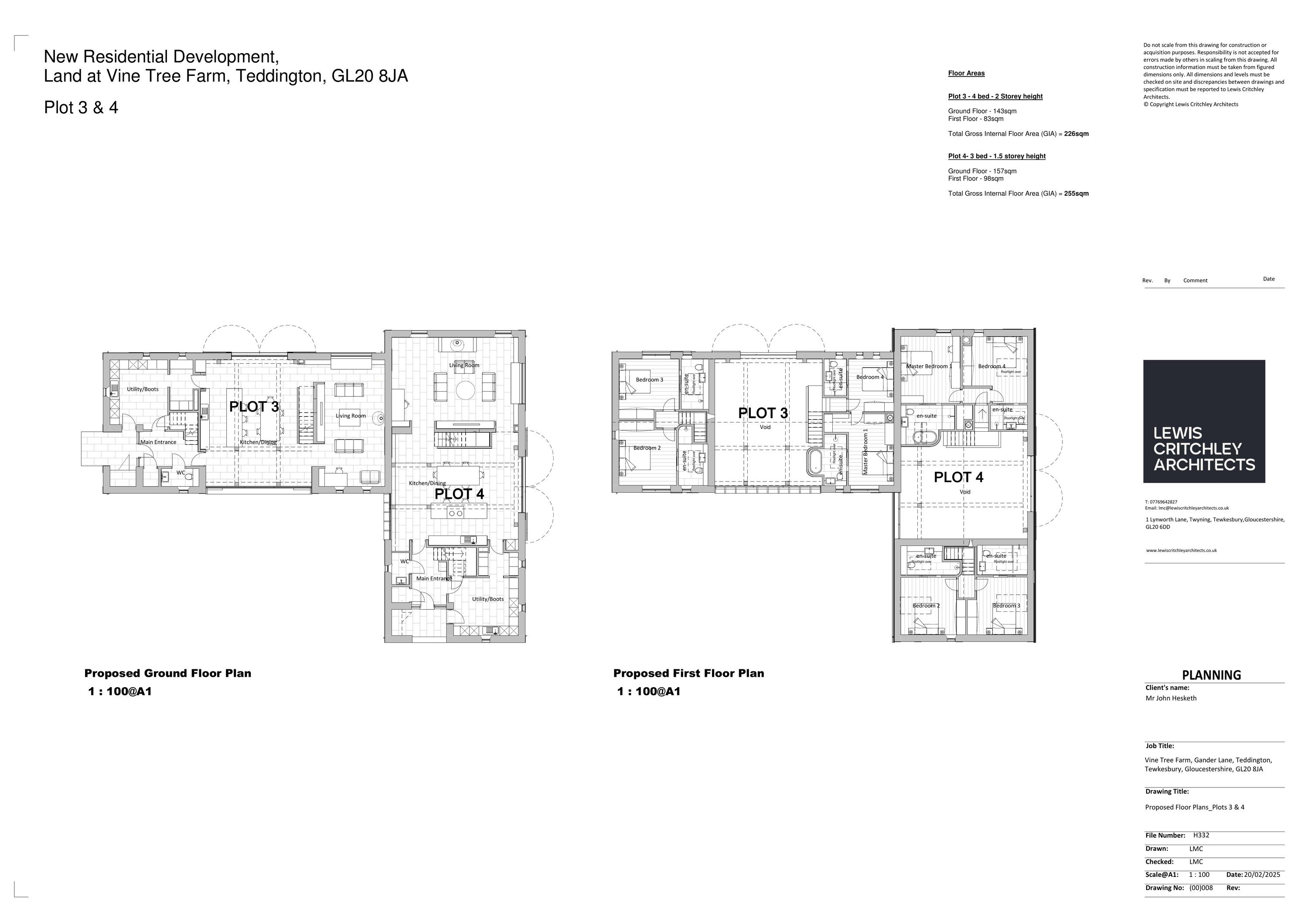
Proposed elevations_plots 3 & 4
Drawing
Not yet archived · Original link
Proposed hard and soft landscape plan
Drawing
Not yet archived · Original link
Proposed perspective view 01
Drawing
Not yet archived · Original link
Proposed perspective view 02
Drawing
Not yet archived · Original link
Proposed perspective view 03
Drawing
Not yet archived · Original link
Proposed perspective view 04
Drawing
Not yet archived · Original link
Proposed perspective view 05
Drawing
Not yet archived · Original link
Proposed perspective view 06
Drawing
Not yet archived · Original link
Proposed perspective view 07
Drawing
Not yet archived · Original link
Proposed perspective view 08
Drawing
Not yet archived · Original link
Proposed perspective view 09
Drawing
Not yet archived · Original link
Proposed perspective view 10
Drawing
Not yet archived · Original link
Proposed perspective view 11
Drawing
Not yet archived · Original link
Proposed perspective view 12
Drawing
Not yet archived · Original link
Proposed perspective view 13
Drawing
Not yet archived · Original link
Proposed site elevations
Drawing
Not yet archived · Original link
Prow
Consultee Comment
Not yet archived · Original link
Prow officer
Consultee Comment
Not yet archived · Original link
Site context plan
Drawing
Not yet archived · Original link
Drawing
Archived · Original link
Drawing
Archived · Original link
Teddington and alstone parish council
General Comment
Not yet archived · Original link
Topographic site survey
Drawing
Not yet archived · Original link
Topography plan
Drawing
Not yet archived · Original link
Viewpoint location plan
Drawing
Not yet archived · Original link
Waste officer
Consultee Comment
Not yet archived · Original link
Waste services officer
Consultee Comment
Not yet archived · Original link

Have your say

Your comment matters. Councils must consider every representation that raises material planning considerations.

Write a comment