← Tewkesbury Borough Council

Status

Unknown House extension
Received
30 May 2025
New homes
0

Full proposal

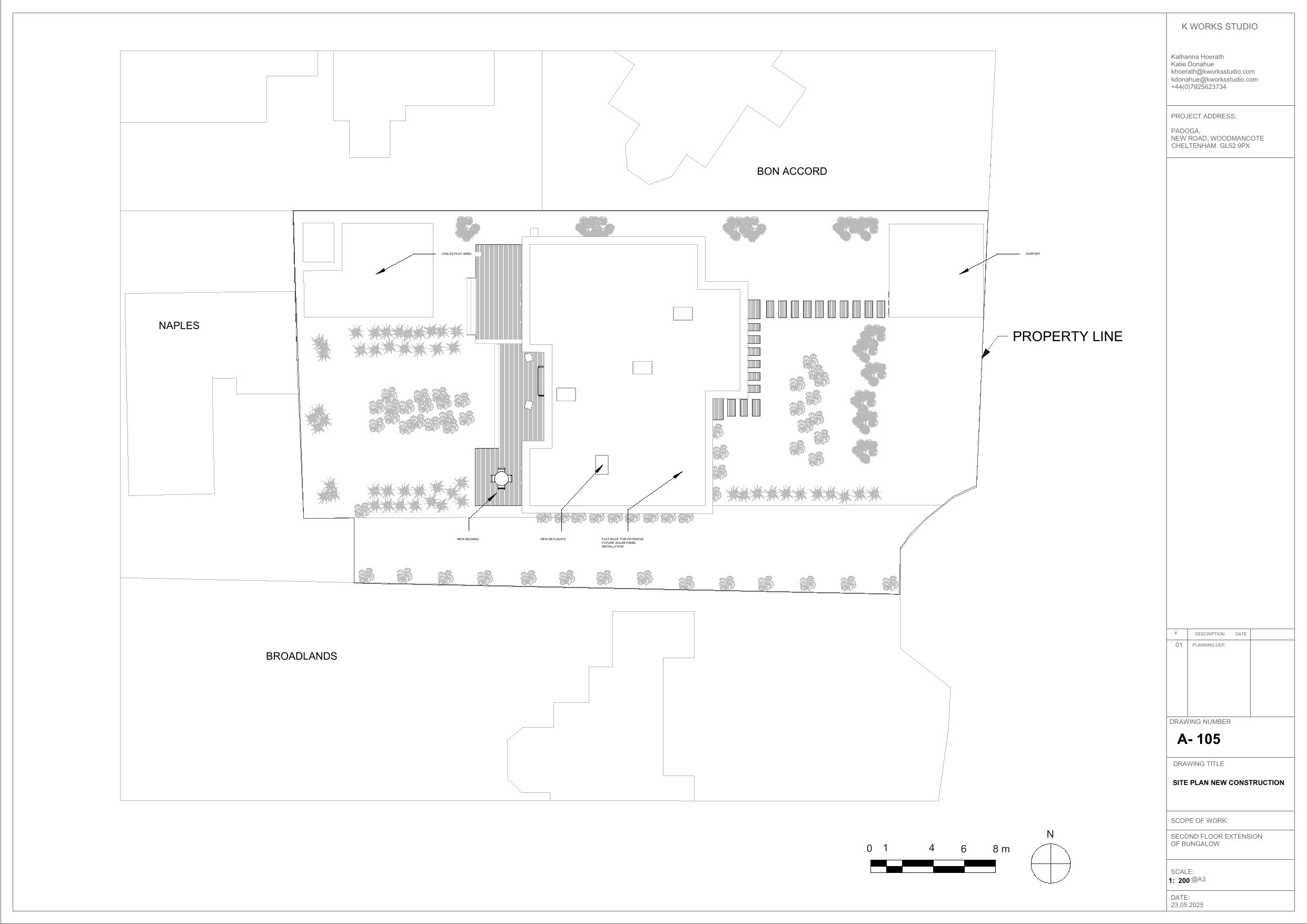
Erection of a first floor extension on to the existing single-storey bungalow to create a two-storey dwelling. Single storey rear extension and erection of car port to the front.

Documents

Application form
Application Form
Not yet archived · Original link
Design proposal report
Other Reports
Not yet archived · Original link
Existing elevations
Drawing
Not yet archived · Original link
Existing elevations @a3
Drawing
Not yet archived · Original link
Existing floor plan
Drawing
Not yet archived · Original link
Existing floor plan @a3
Drawing
Not yet archived · Original link
Front render details
Drawing
Not yet archived · Original link
Letter of representation no. 1
Objection Comment
Not yet archived · Original link
Letter of representation no. 2
Objection Comment
Not yet archived · Original link
Letter of representation no. 3
Objection Comment
Not yet archived · Original link
Letter of representation no. 4
Objection Comment
Not yet archived · Original link
Letter of representation no. 5
Objection Comment
Not yet archived · Original link
Letter of representation no. 6
Objection Comment
Not yet archived · Original link
Letter of representation no. 7
Objection Comment
Not yet archived · Original link
New construction elevation
Drawing
Not yet archived · Original link
New construction floor plan
Drawing
Not yet archived · Original link
New construction second floor
Drawing
Not yet archived · Original link
Proposed elevations - carport @a3
Drawing
Not yet archived · Original link
Proposed elevations - carport @a3
Drawing
Not yet archived · Original link
Proposed first floor plan @a3
Drawing
Not yet archived · Original link
Proposed second floor plan @a3
Drawing
Not yet archived · Original link
Rear render details
Drawing
Not yet archived · Original link
Drawing
Archived · Original link
Woodmancote parish council
Consultee Comment
Not yet archived · Original link

Have your say

Your comment matters. Councils must consider every representation that raises material planning considerations.

Write a comment