← Three Rivers District Council

Status

Pending Consideration House extension
Received
04 Feb 2026
New homes
0

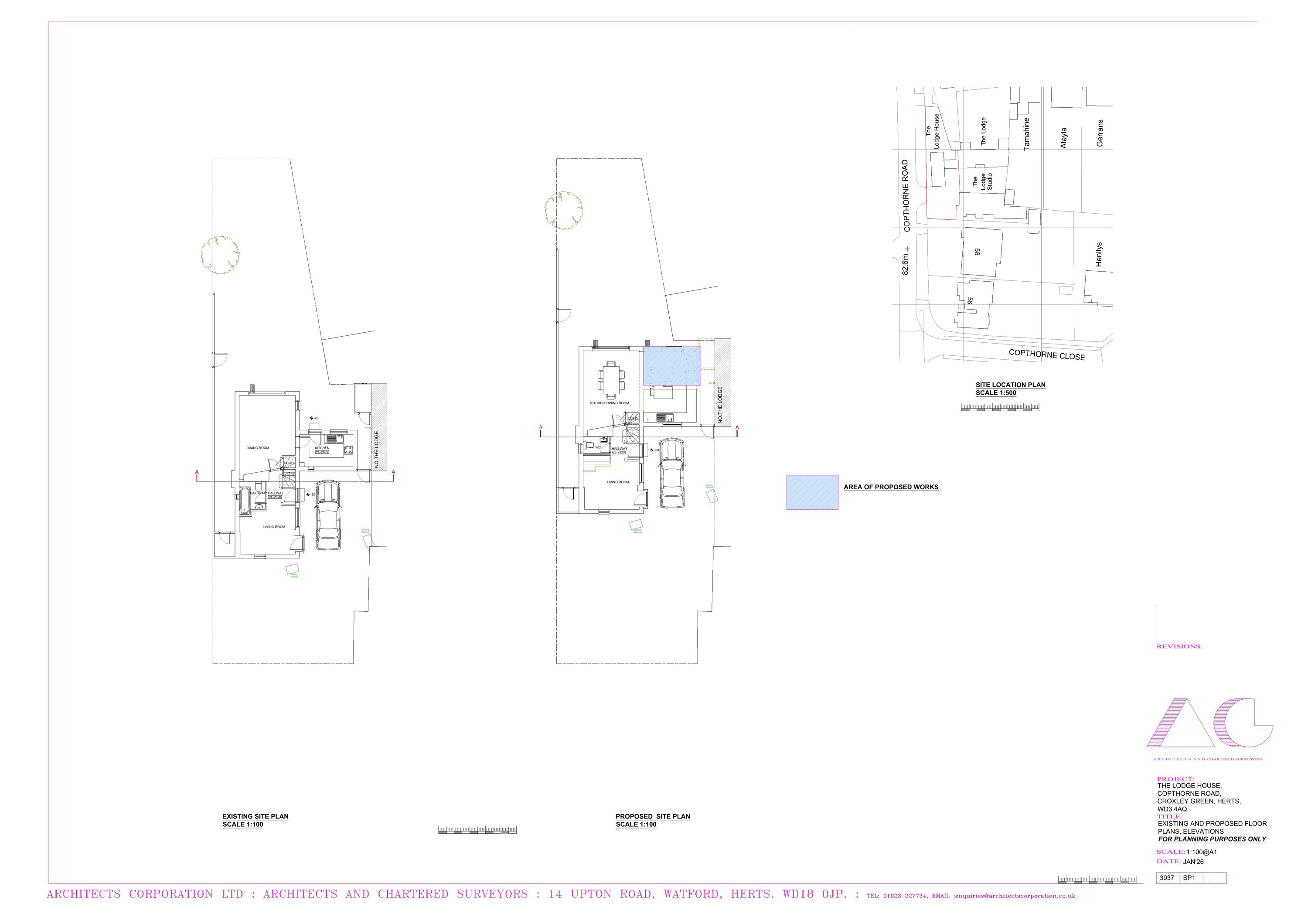
Full proposal

Demolition of existing store and construction of single storey rear extension and first floor side extension with front, side and rear dormer windows.

Documents

Supporting documents
Archived · Original link
Supporting documents
Archived · Original link
Neighbour Notification List
Archived · Original link
Consultation Documents
Archived · Original link

Have your say

Your comment matters. Councils must consider every representation that raises material planning considerations.

Write a comment