← Three Rivers District Council

Status

Pending Consideration Demolition
Received
Last month
New homes
0

Full proposal

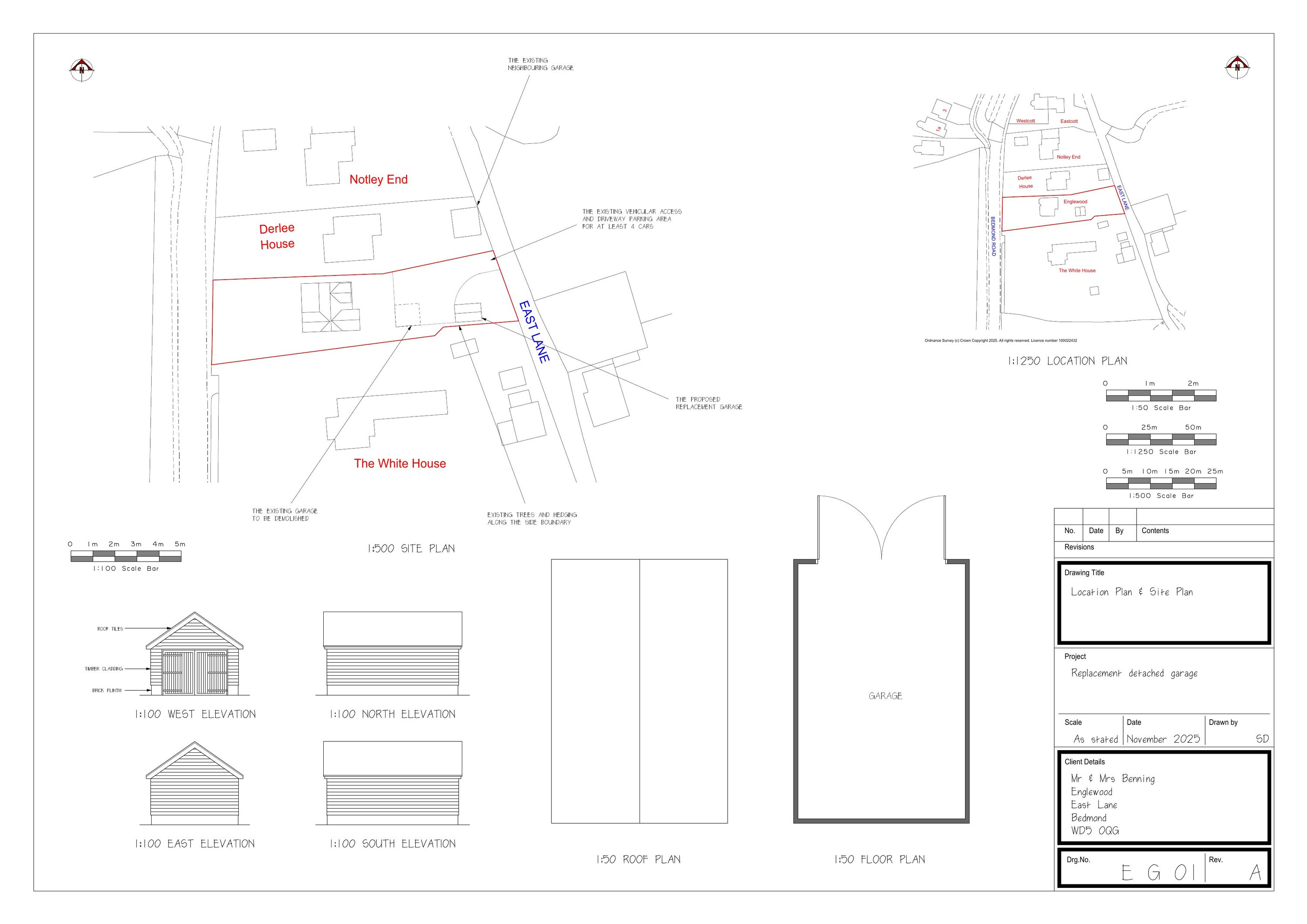
Demolition of existing garage and construction of replacement detached garage.

Documents

APPLICATION FORM - WITHOUT PERSONAL DATA
Application Form
Not yet archived · Original link
BIODIVERSITY CHECKLIST
Supporting documents
Not yet archived · Original link
LIST OF NEIGHBOURS FOR PA
Neighbour Notification List
Not yet archived · Original link
NEIGHBOUR LETTER SENT FOR PA
Consultation Documents
Not yet archived · Original link

Have your say

Your comment matters. Councils must consider every representation that raises material planning considerations.

Write a comment