← Three Rivers District Council

Status

Pending Consideration House extension
Received
Last month
New homes
0

Full proposal

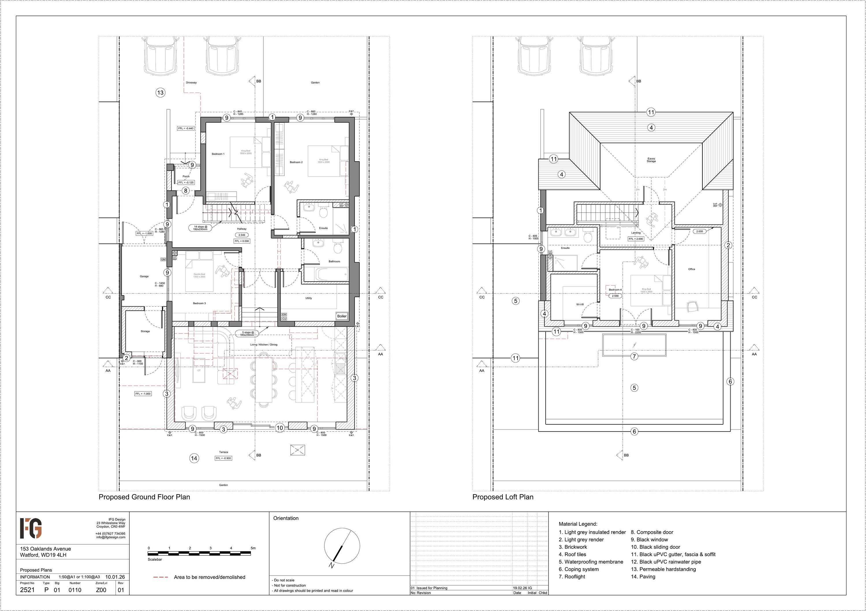
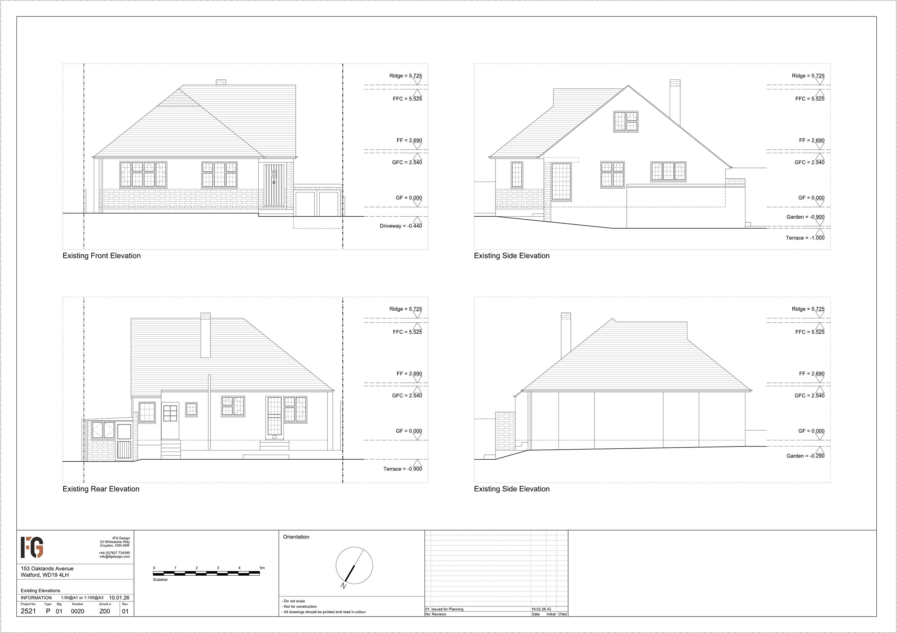
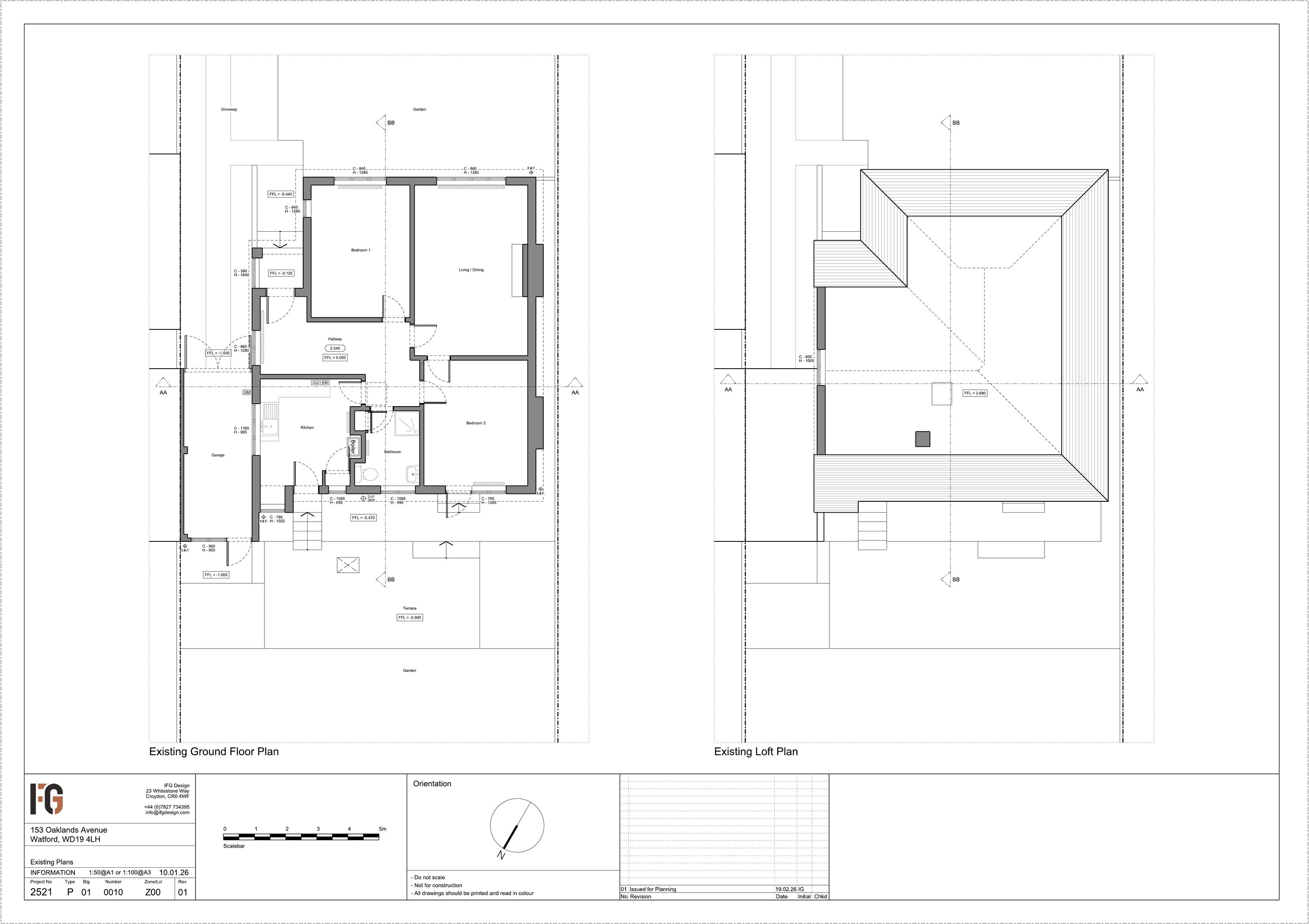
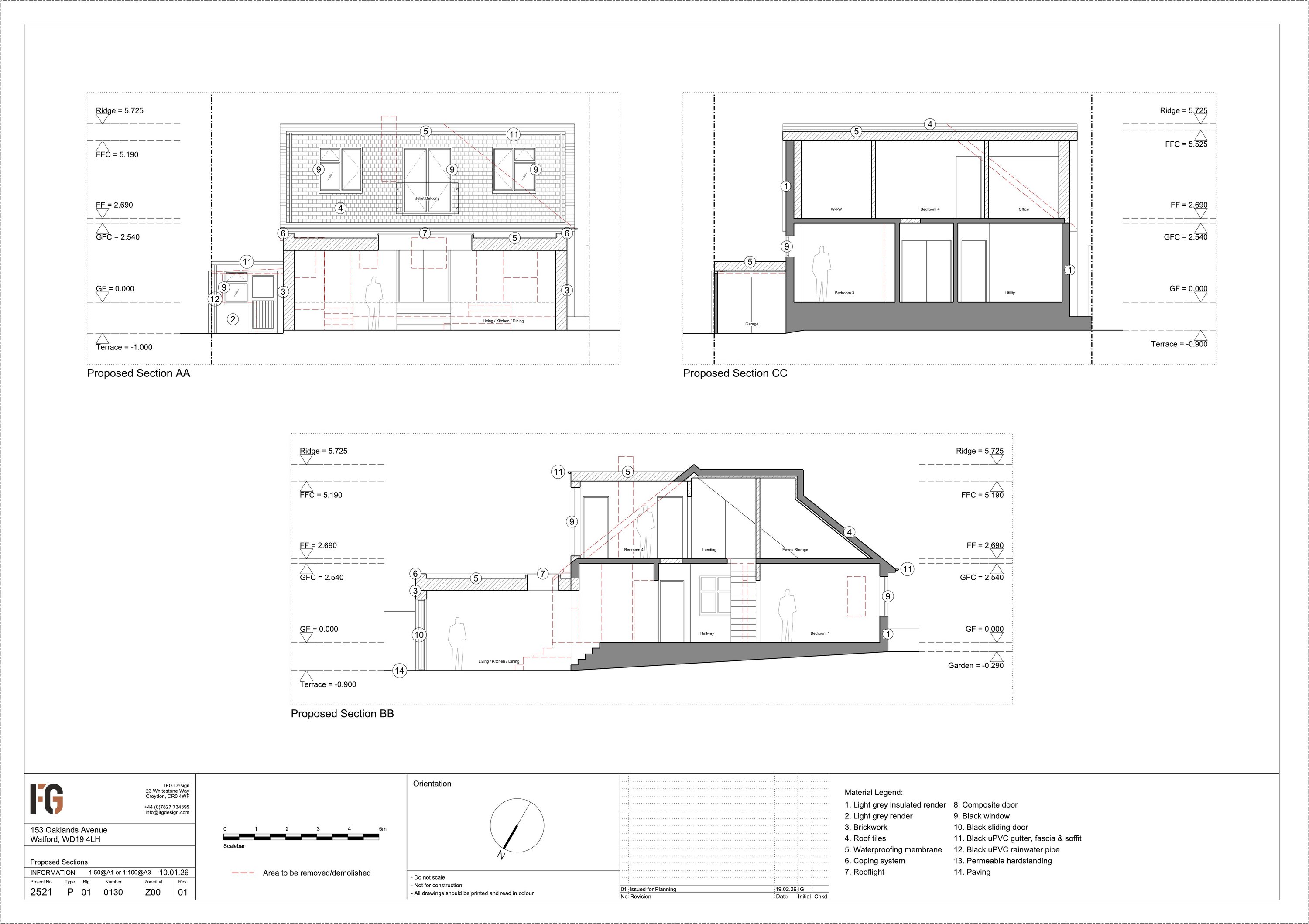
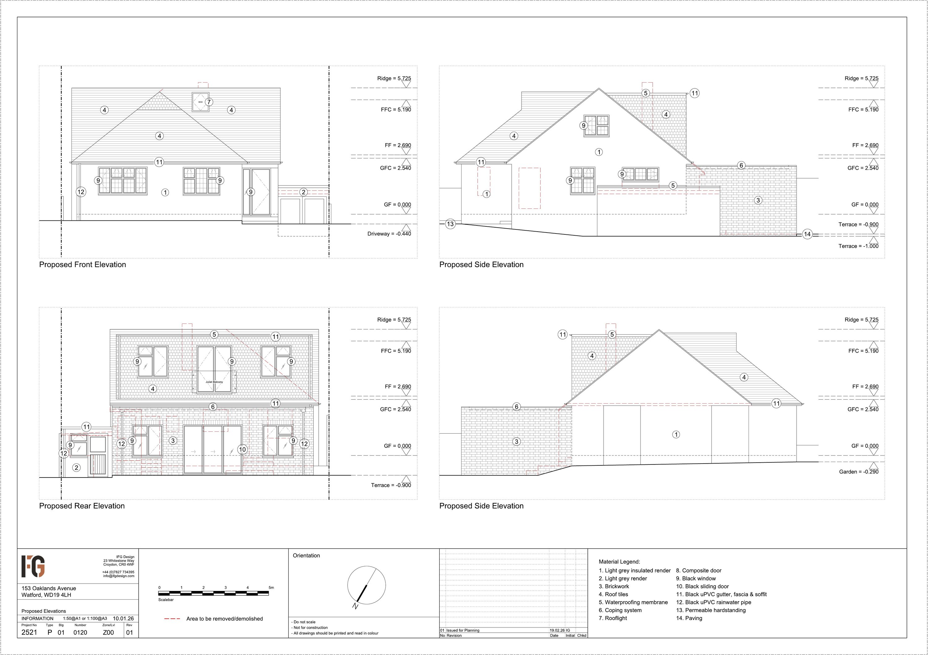
Erection of a single storey rear extension and increase of head height of existing side extension, partial garage conversion and loft conversion and extension including hip to gable roof extension with rear juliet dormer, re-roofing and provision of external insulation, replacement of windows and front door, alterations to side fenestration, rooflight, permeable paving to front garden.

Documents

Supporting documents
Archived · Original link
Supporting documents
Archived · Original link
Supporting documents
Archived · Original link
Drawing
Archived · Original link
Drawing
Archived · Original link
Drawing
Archived · Original link
Drawing
Archived · Original link
Supporting documents
Archived · Original link
Neighbour Notification List
Archived · Original link
Consultation Documents
Archived · Original link
Drawing
Archived · Original link
Drawing
Archived · Original link
Drawing
Archived · Original link
Drawing
Archived · Original link
Drawing
Archived · Original link

Have your say

Your comment matters. Councils must consider every representation that raises material planning considerations.

Write a comment