← Three Rivers District Council

Status

Pending Consideration House extension
Received
Last month
New homes
0

Full proposal

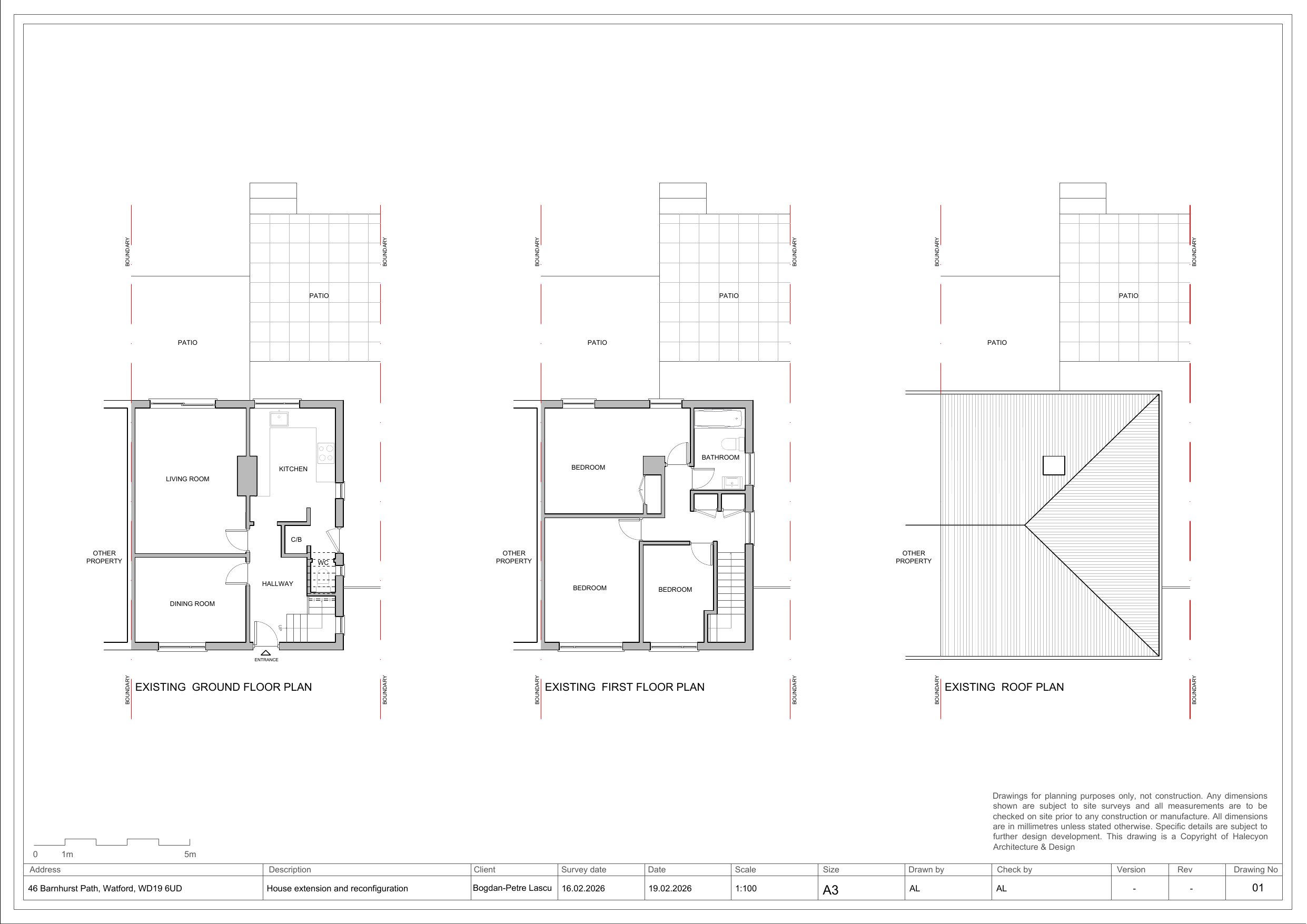
Construction of single storey side and rear extension and front porch; internal alterations and alterations to fenestration

Documents

Supporting documents
Archived · Original link
Drawing
Archived · Original link
Drawing
Archived · Original link
Drawing
Archived · Original link
Neighbour Notification List
Archived · Original link
OS Extract
Archived · Original link
Consultation Documents
Archived · Original link
Drawing
Archived · Original link
Drawing
Archived · Original link
Drawing
Archived · Original link

Have your say

Your comment matters. Councils must consider every representation that raises material planning considerations.

Write a comment