← Thurrock Council

Status

Permitted House extension
Received
18 Dec 2024
New homes
0

Full proposal

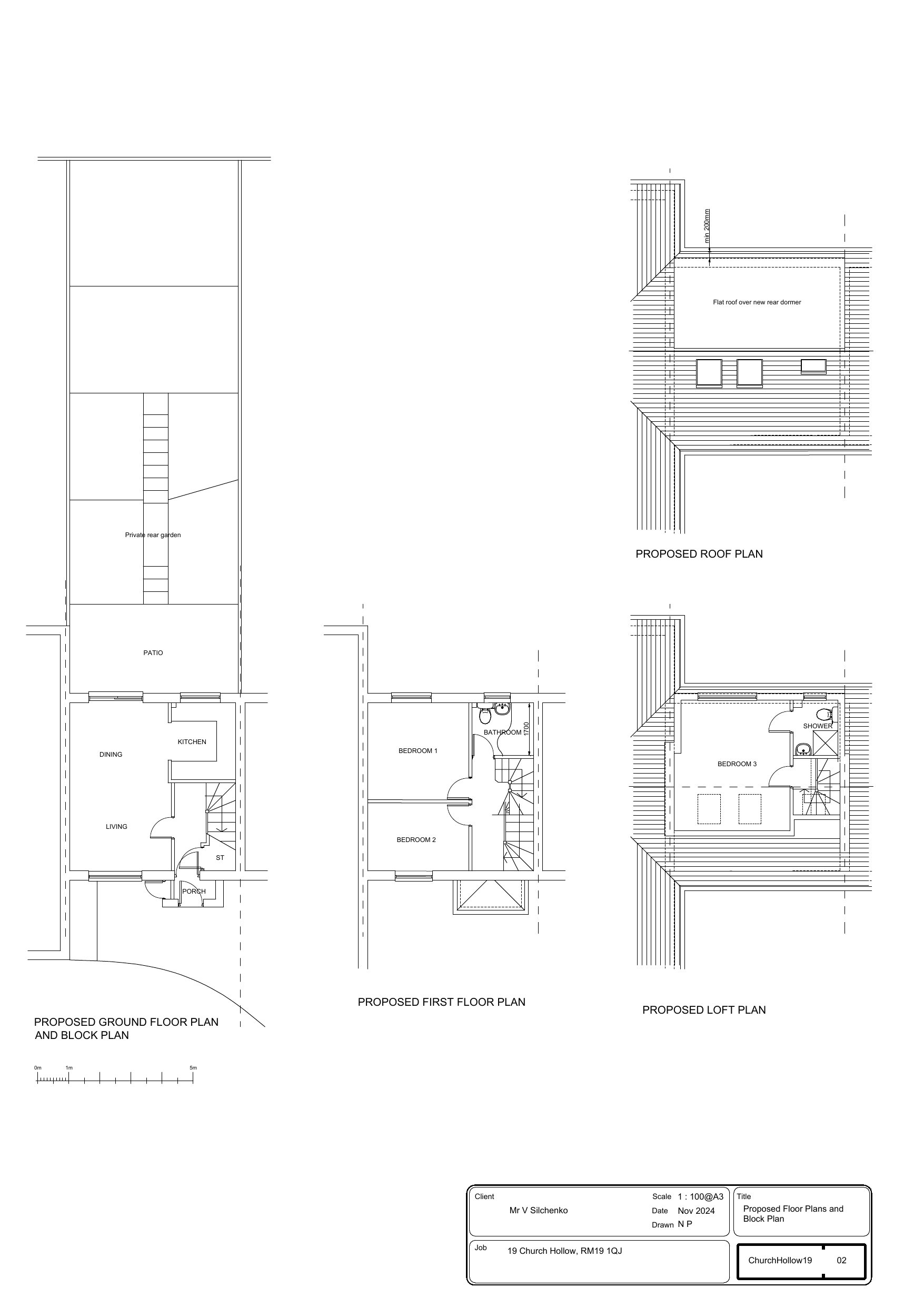
Loft conversion with rear dormer extension and front roof windows

Documents

Application Form
Archived · Original link
Decision Notice
Archived · Original link
Delegated Report
Archived · Original link
Studies and Reports
Archived · Original link
Studies and Reports
Archived · Original link
Studies and Reports
Archived · Original link
Consultee Comment
Archived · Original link
Current Plan
Archived · Original link

Have your say

Your comment matters. Councils must consider every representation that raises material planning considerations.

Write a comment