← Thurrock Council

Status

Permitted Change of use
Received
08 Jan 2025
New homes
0

Full proposal

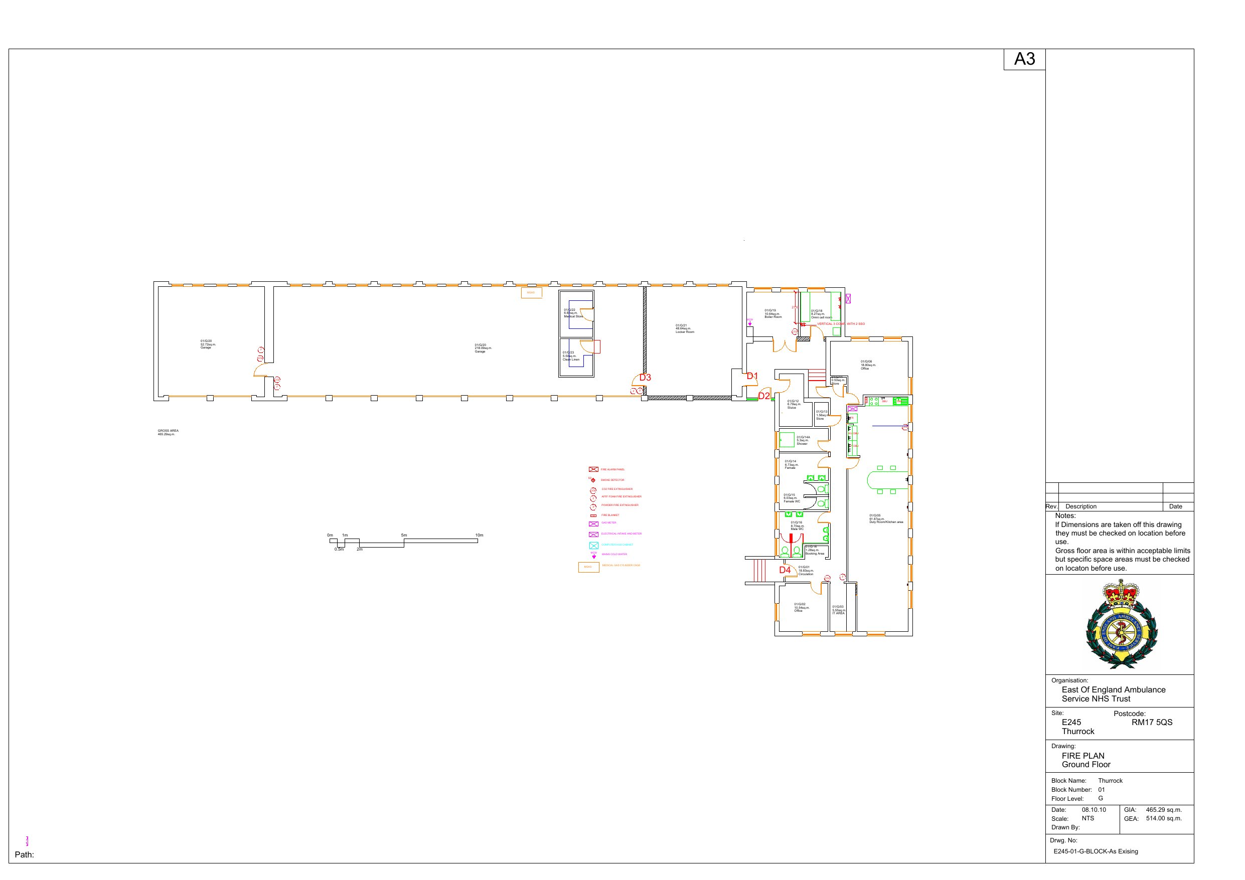
Part conversion of an existing substandard ambulance vehicular garage to a Training/Meeting Room facility associated with the Thurrock Ambulance Station. Proposed works also include internal and external alterations including the erection of steps and ramps and removal of roller shutter doors and replacement with a door and fenestrations

Documents

Application Form
Archived · Original link
Decision Notice
Archived · Original link
Delegated Report
Archived · Original link
Current Plan
Archived · Original link
Current Plan
Archived · Original link
Consultee Comment
Archived · Original link
Consultee Comment
Archived · Original link
Current Plan
Archived · Original link
Current Plan
Archived · Original link
Current Plan
Archived · Original link

Have your say

Your comment matters. Councils must consider every representation that raises material planning considerations.

Write a comment