← Thurrock Council

Status

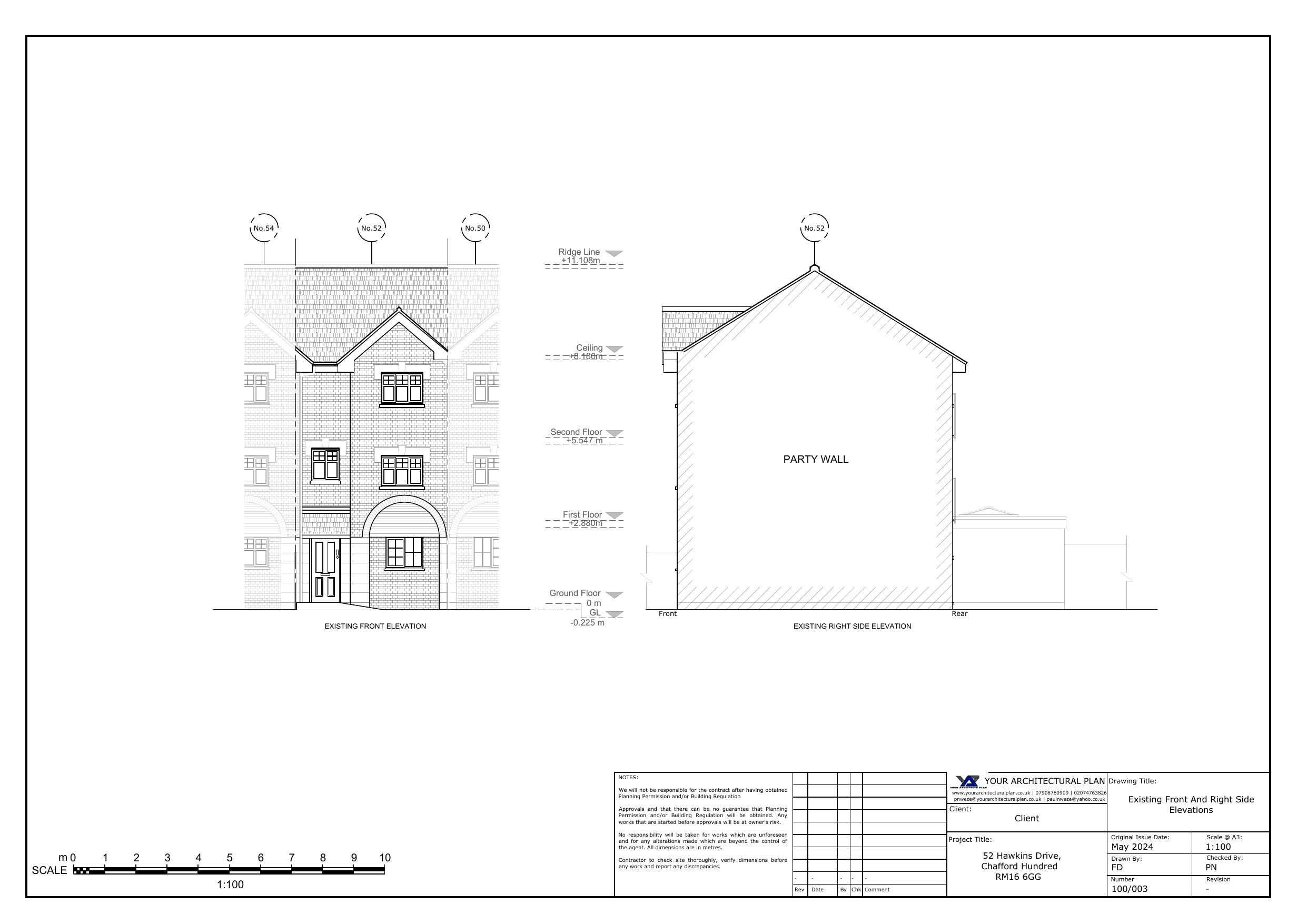
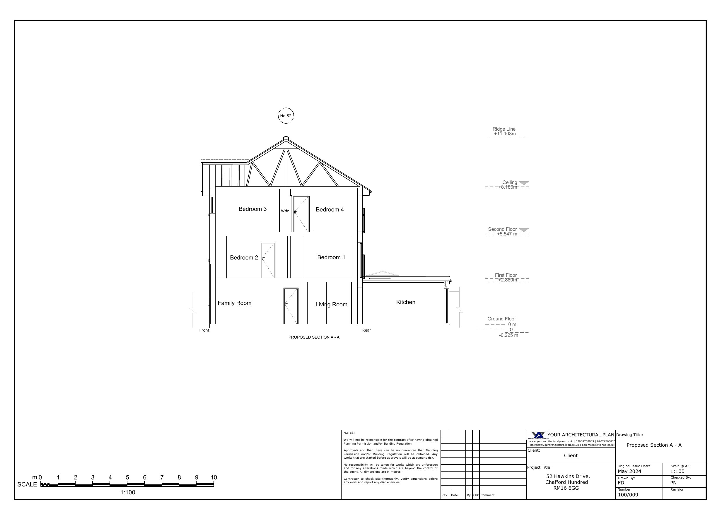
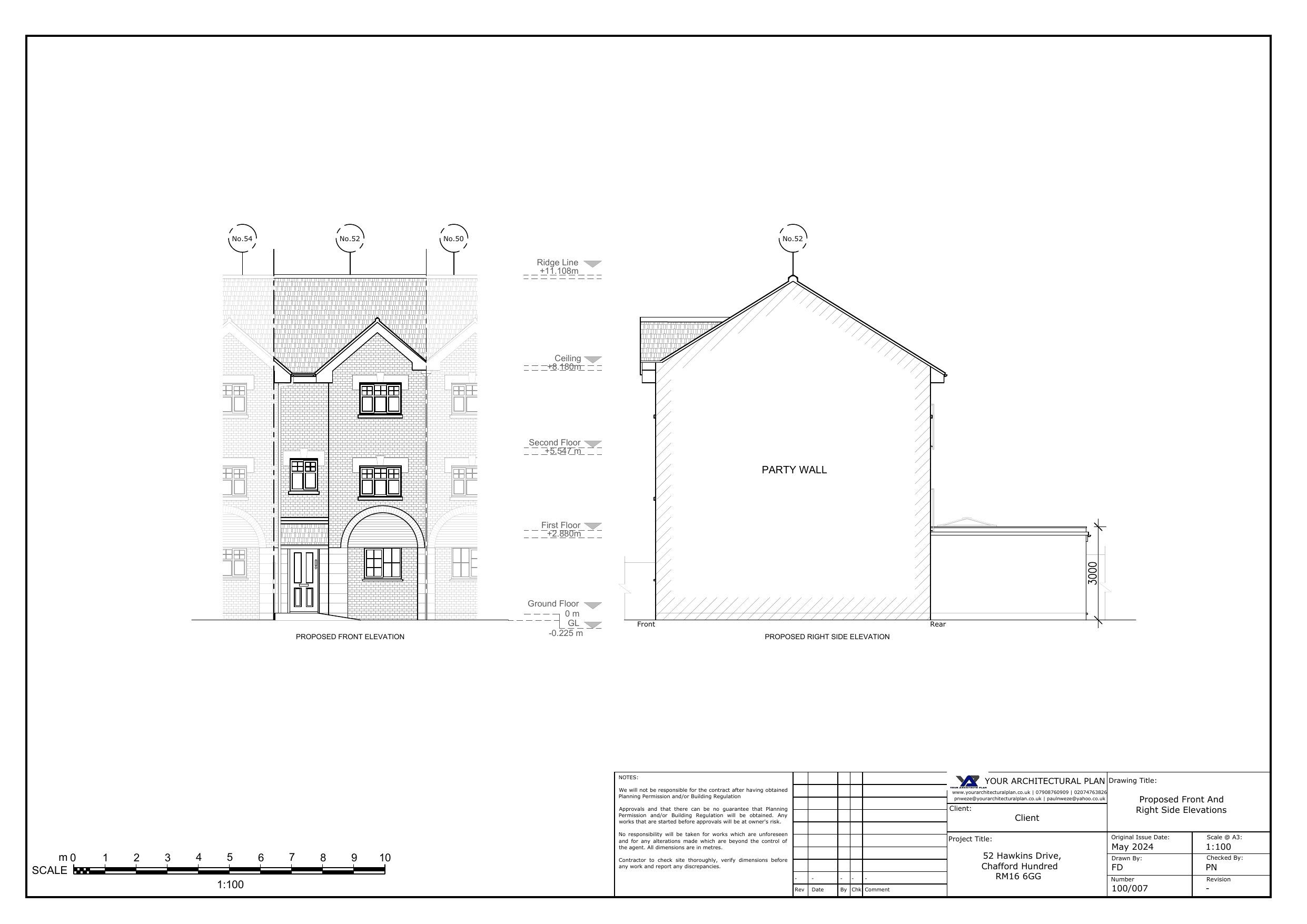
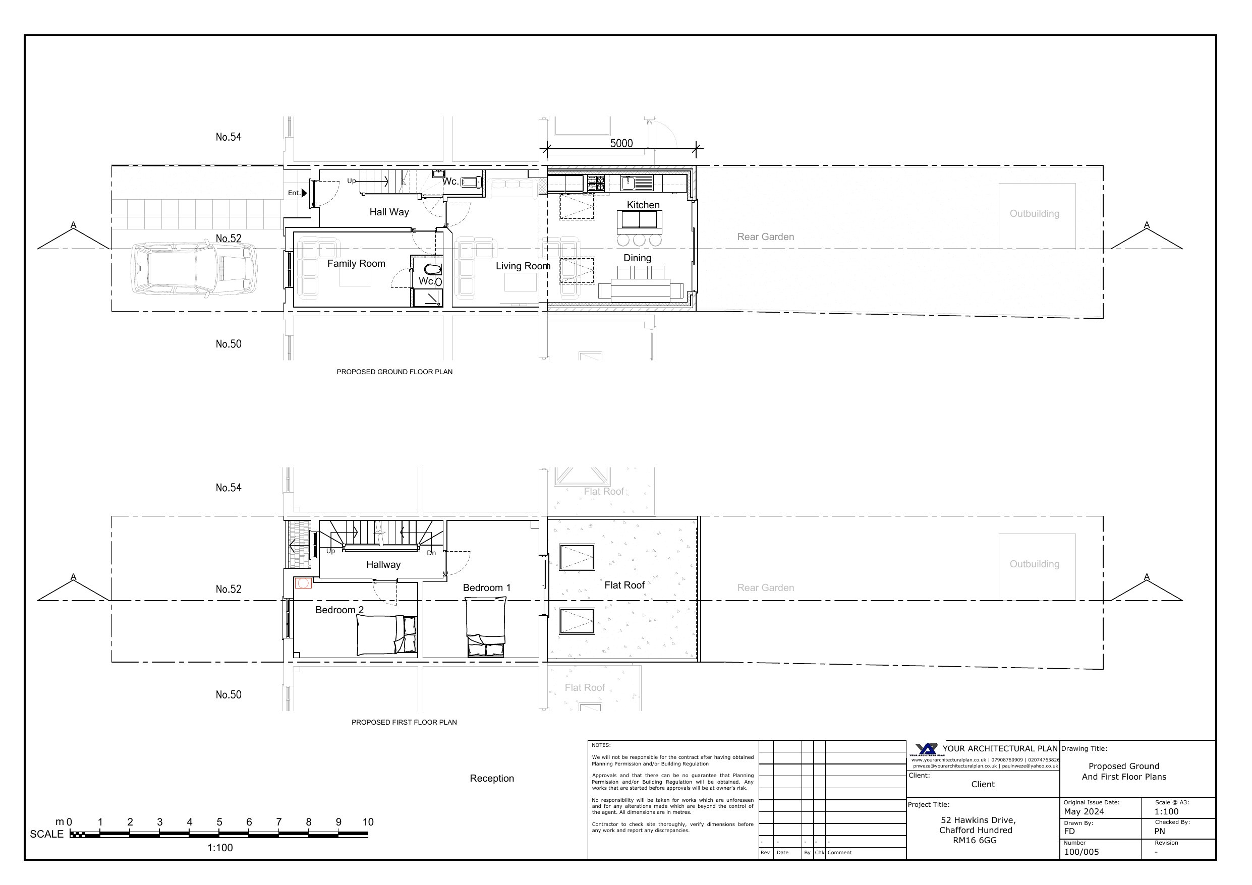
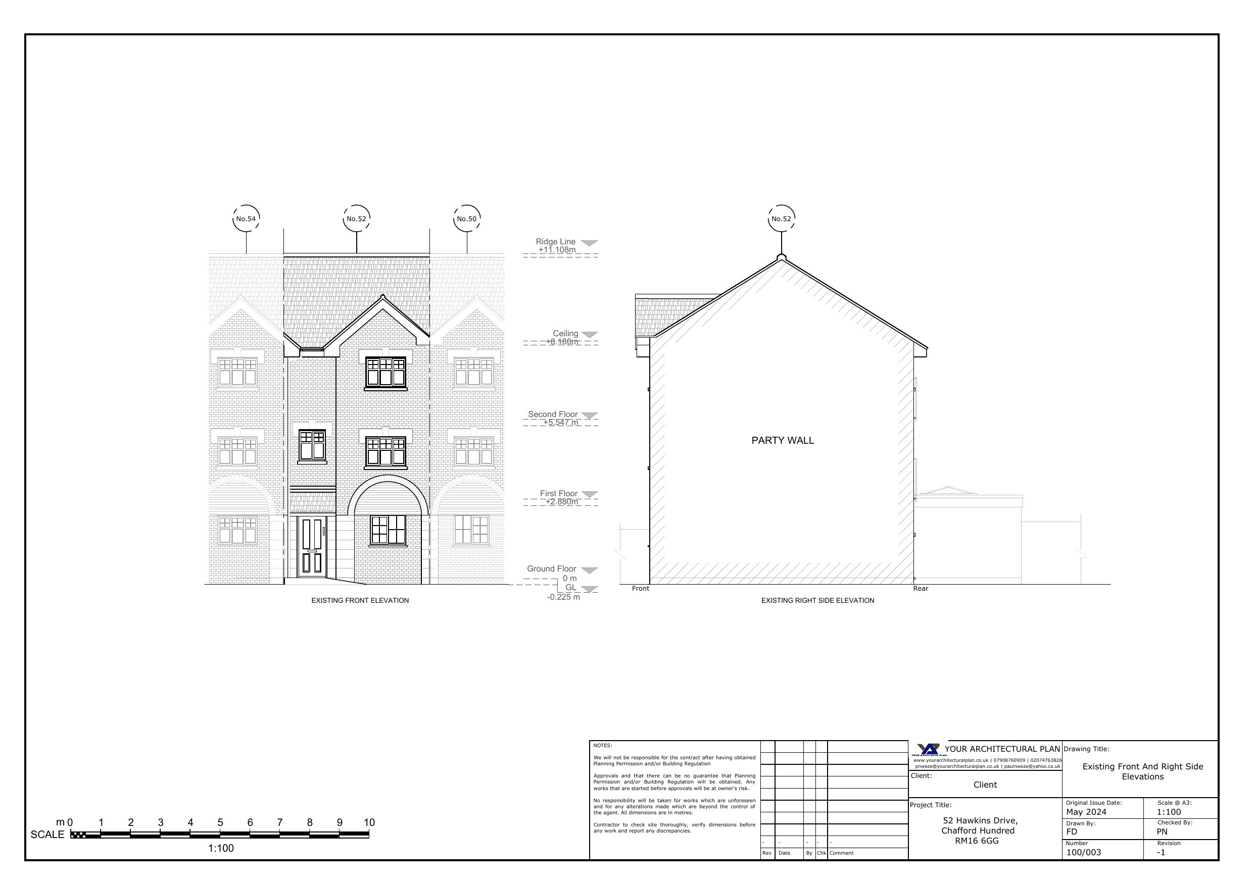
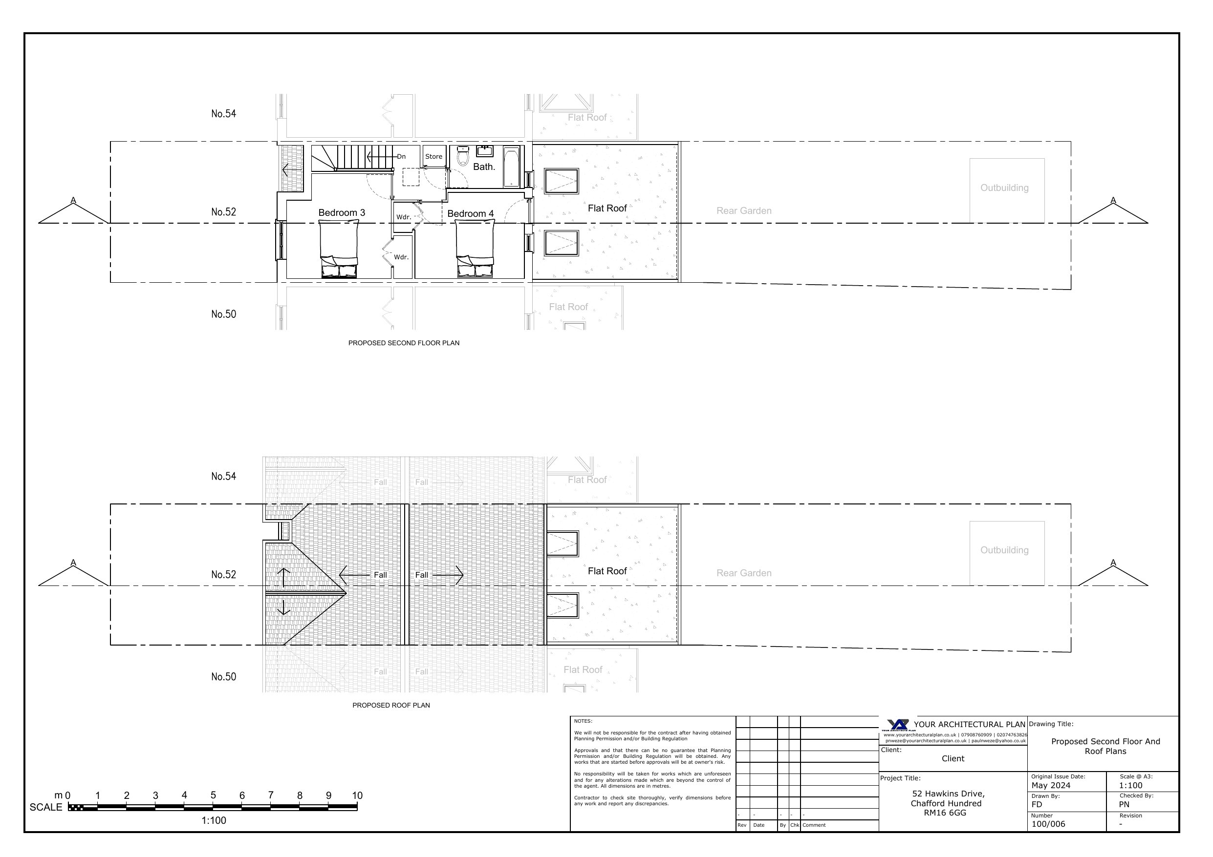
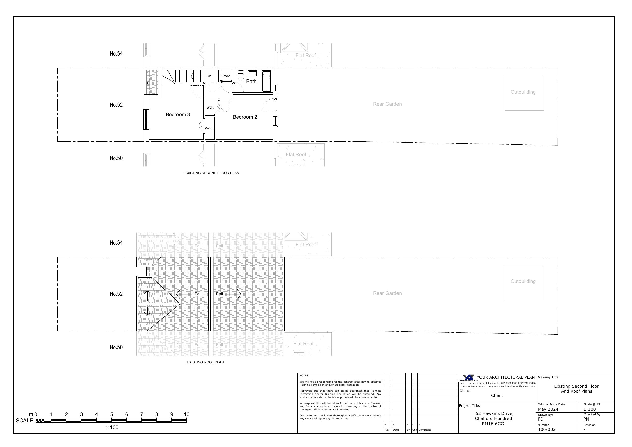
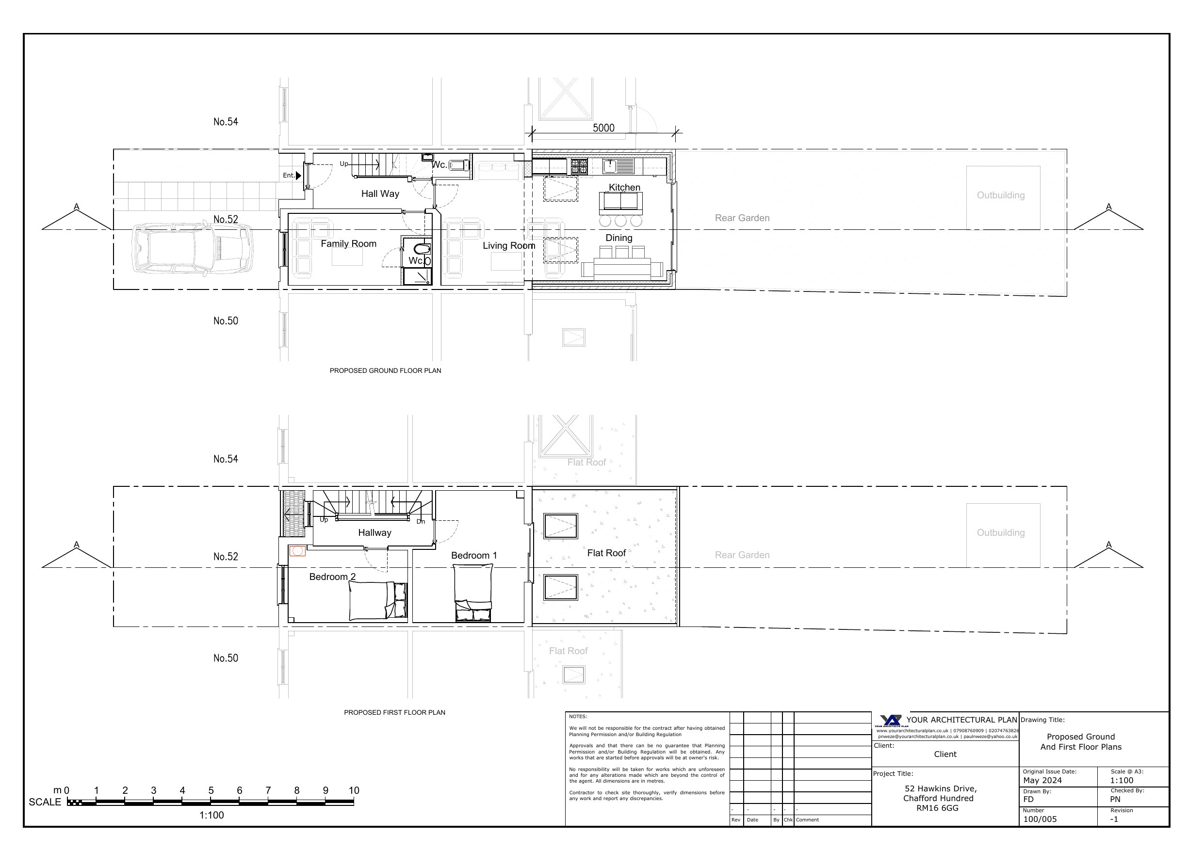
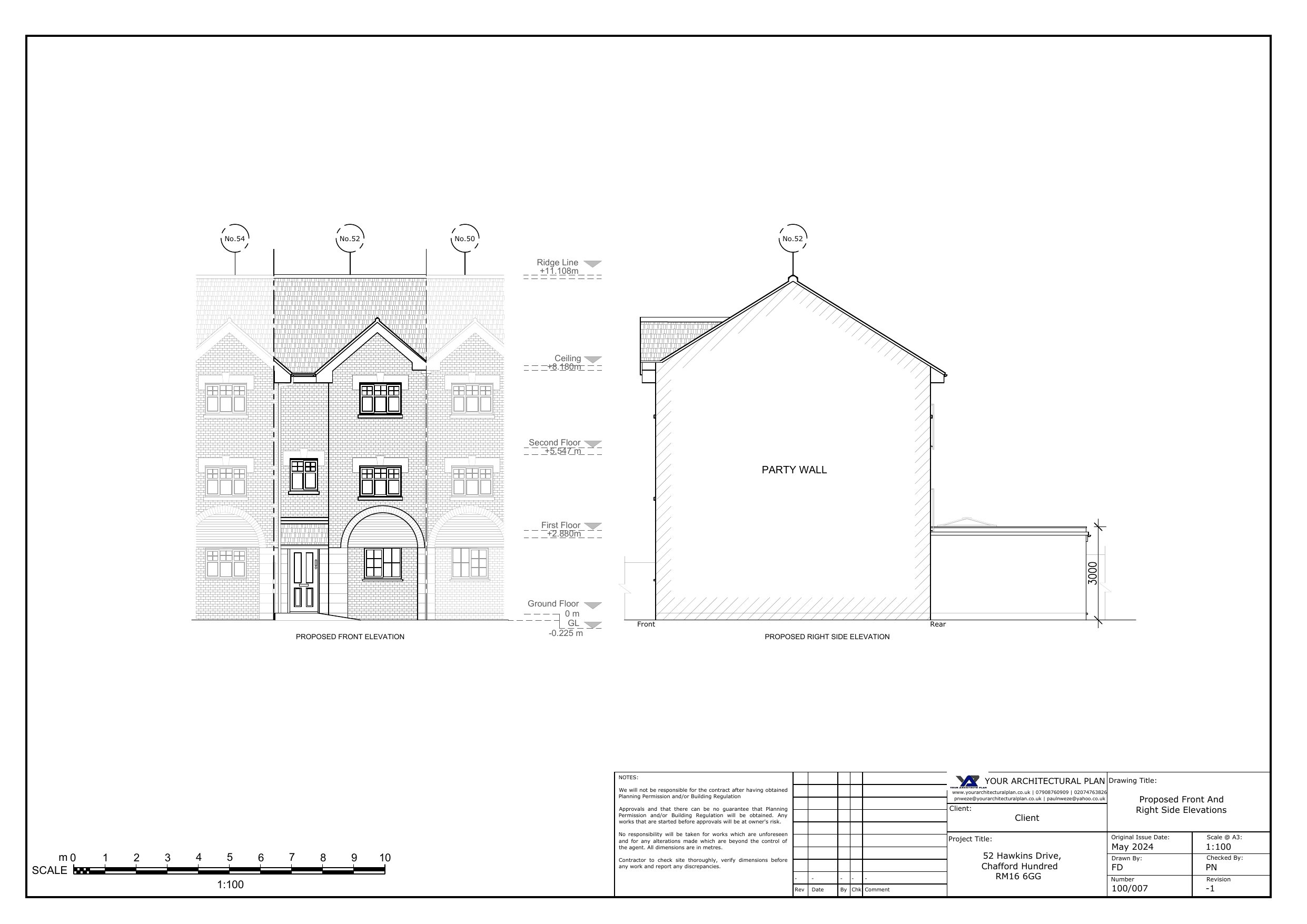
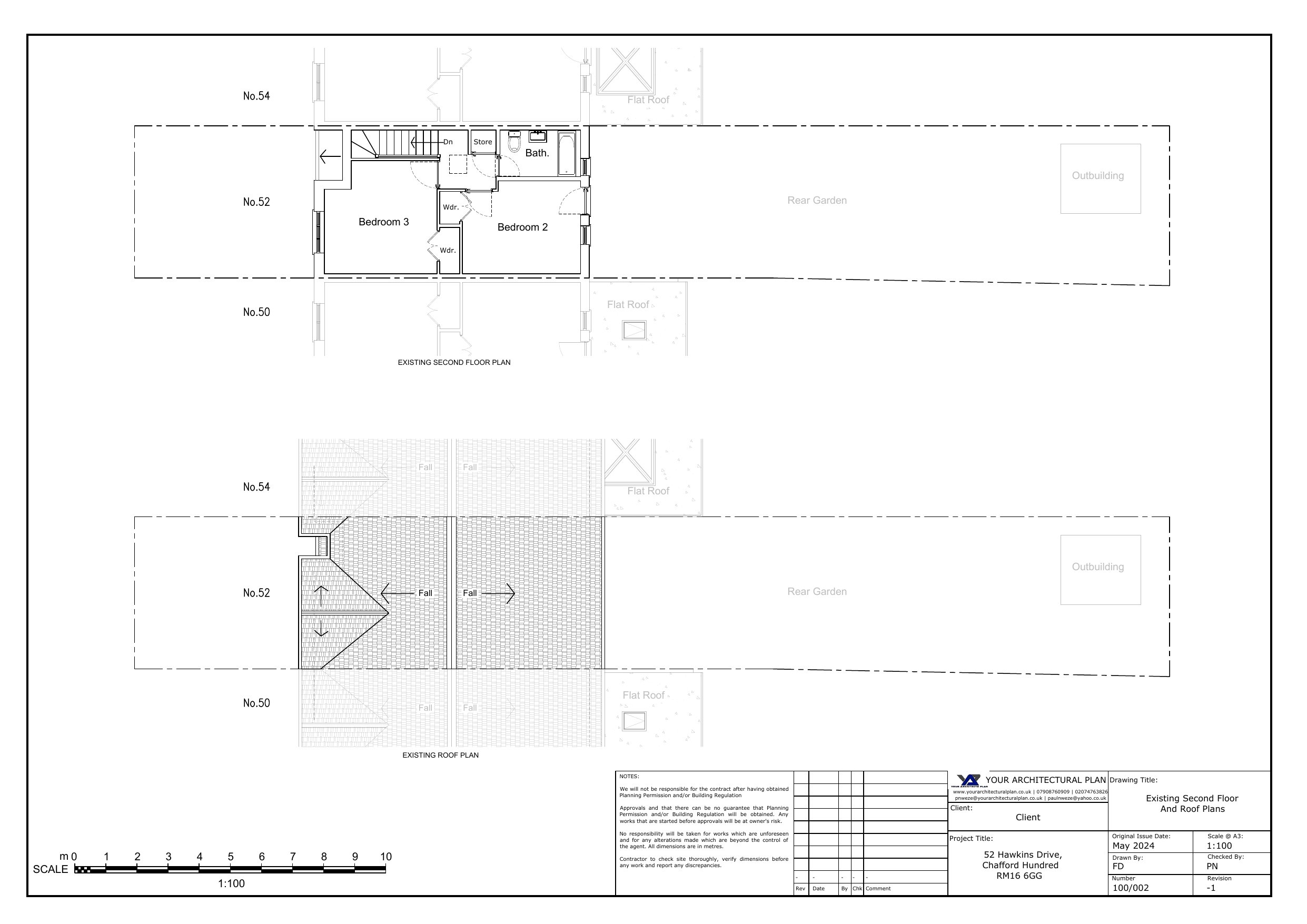
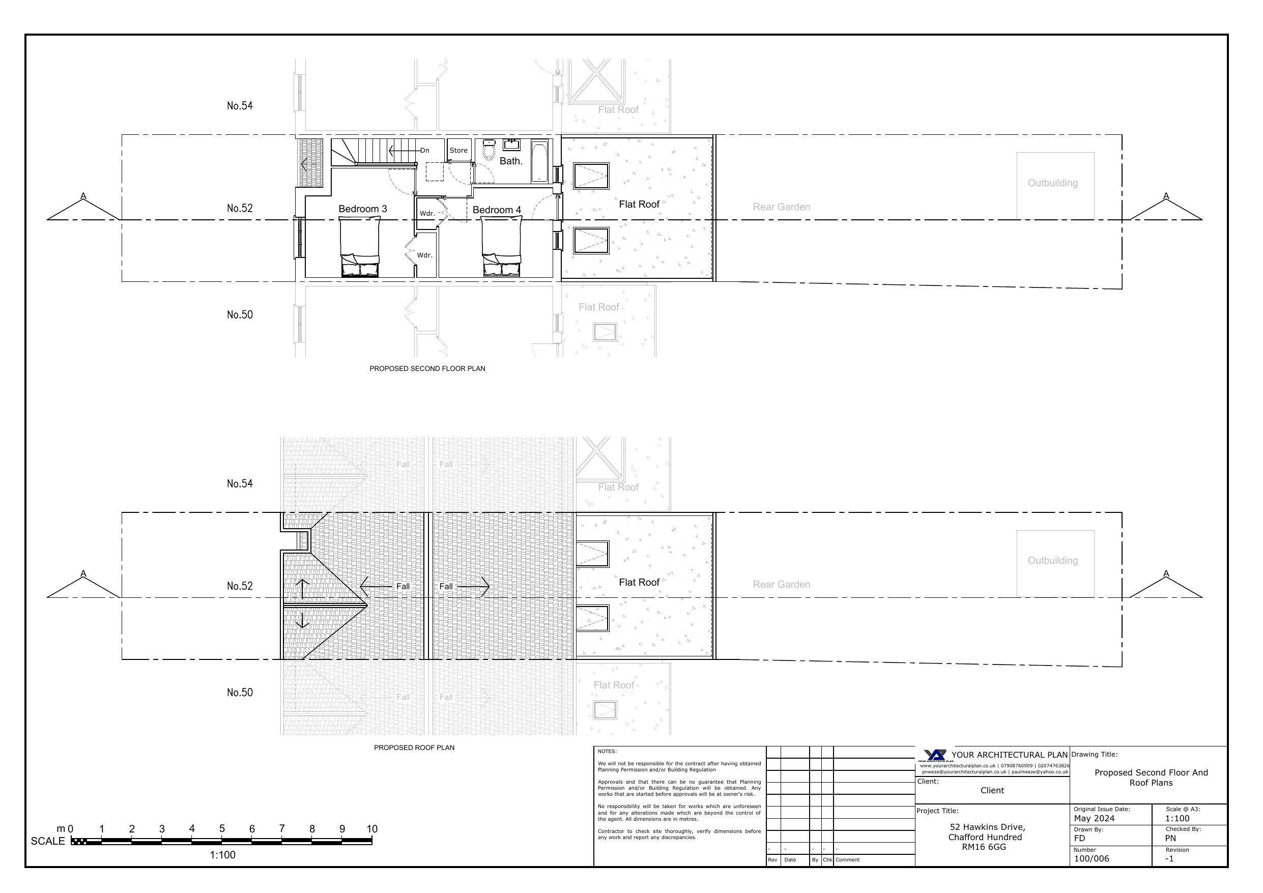
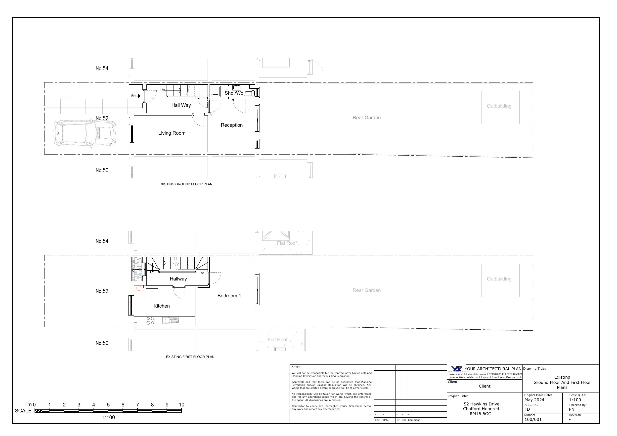
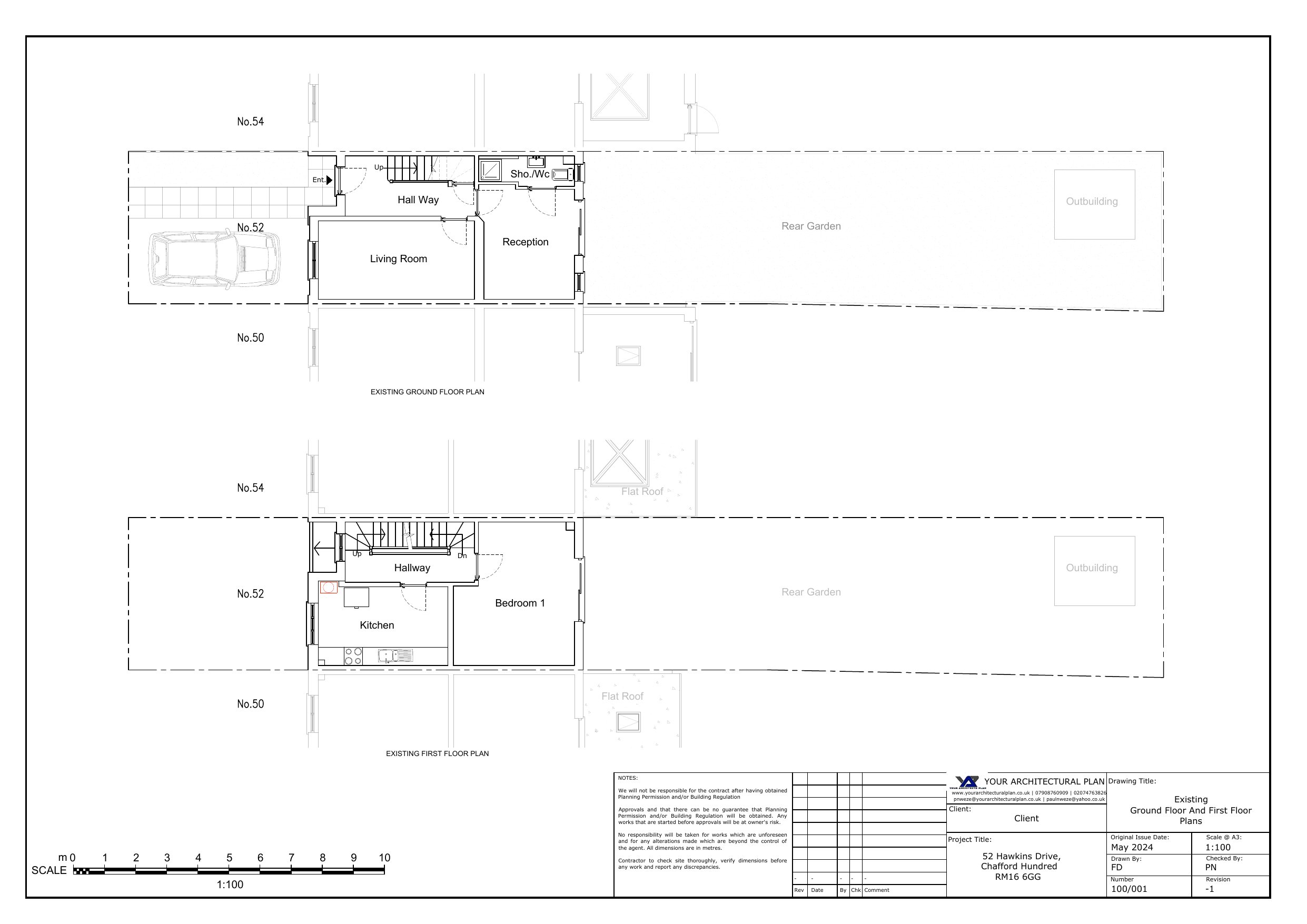
Permitted House extension
Received
31 Mar 2025
New homes
0

Full proposal

Single-storey flat roof rear extension with skylight

Documents

Studies and Reports
Archived · Original link
Application Form
Archived · Original link
Current Plan
Archived · Original link
Consultee Comment
Archived · Original link
Consultee Comment
Archived · Original link
Consultee Comment
Archived · Original link
Consultee Comment
Archived · Original link
Consultee Comment
Archived · Original link
Consultee Comment
Archived · Original link
Consultee Comment
Archived · Original link
Decision Notice
Archived · Original link
Delegated Report
Archived · Original link
Studies and Reports
Archived · Original link
Studies and Reports
Archived · Original link
Current Plan
Archived · Original link
Current Plan
Archived · Original link
Studies and Reports
Archived · Original link

Have your say

Your comment matters. Councils must consider every representation that raises material planning considerations.

Write a comment