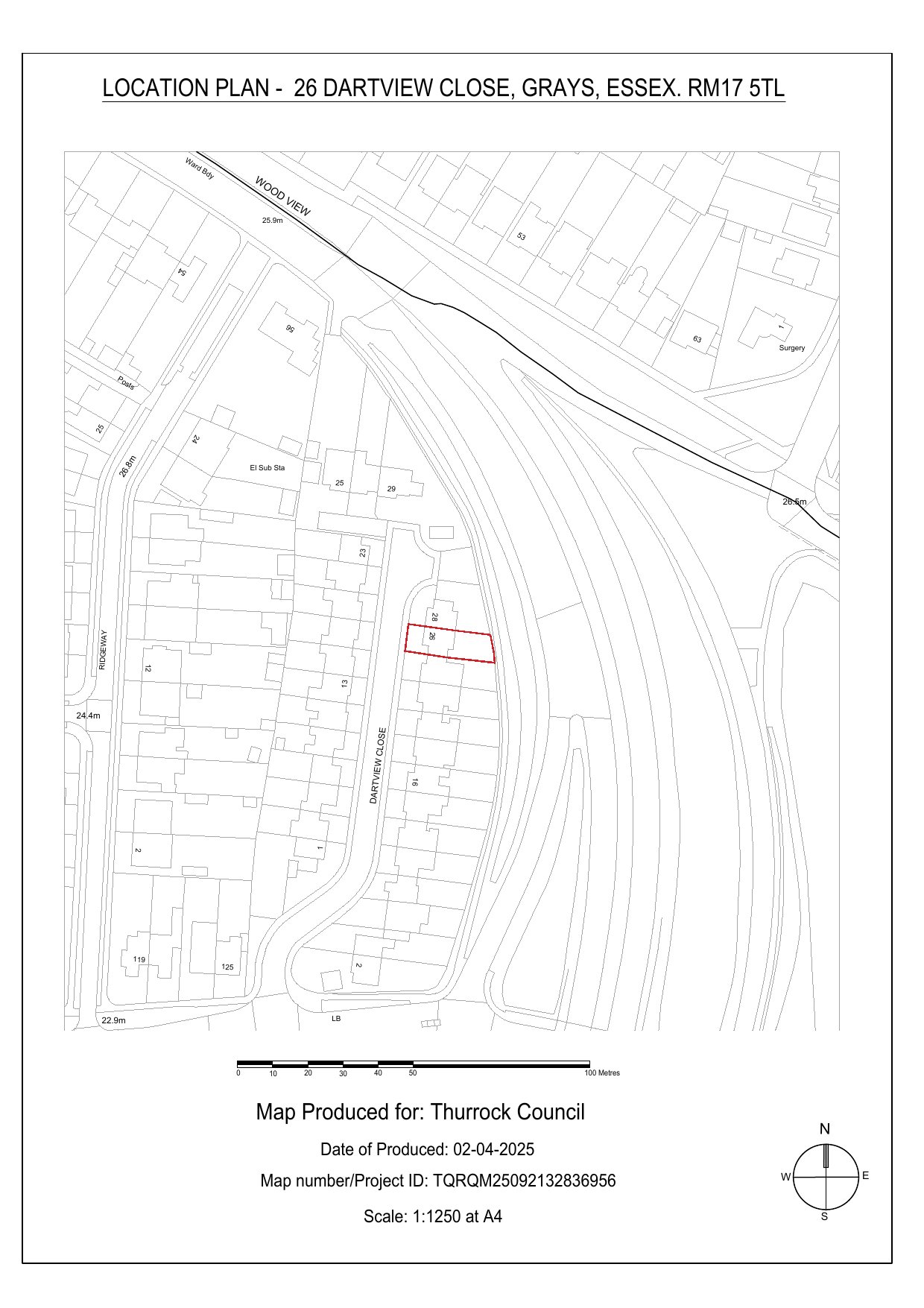
← Thurrock Council

Status

Permitted House extension
Received
08 Apr 2025
New homes
0

Full proposal

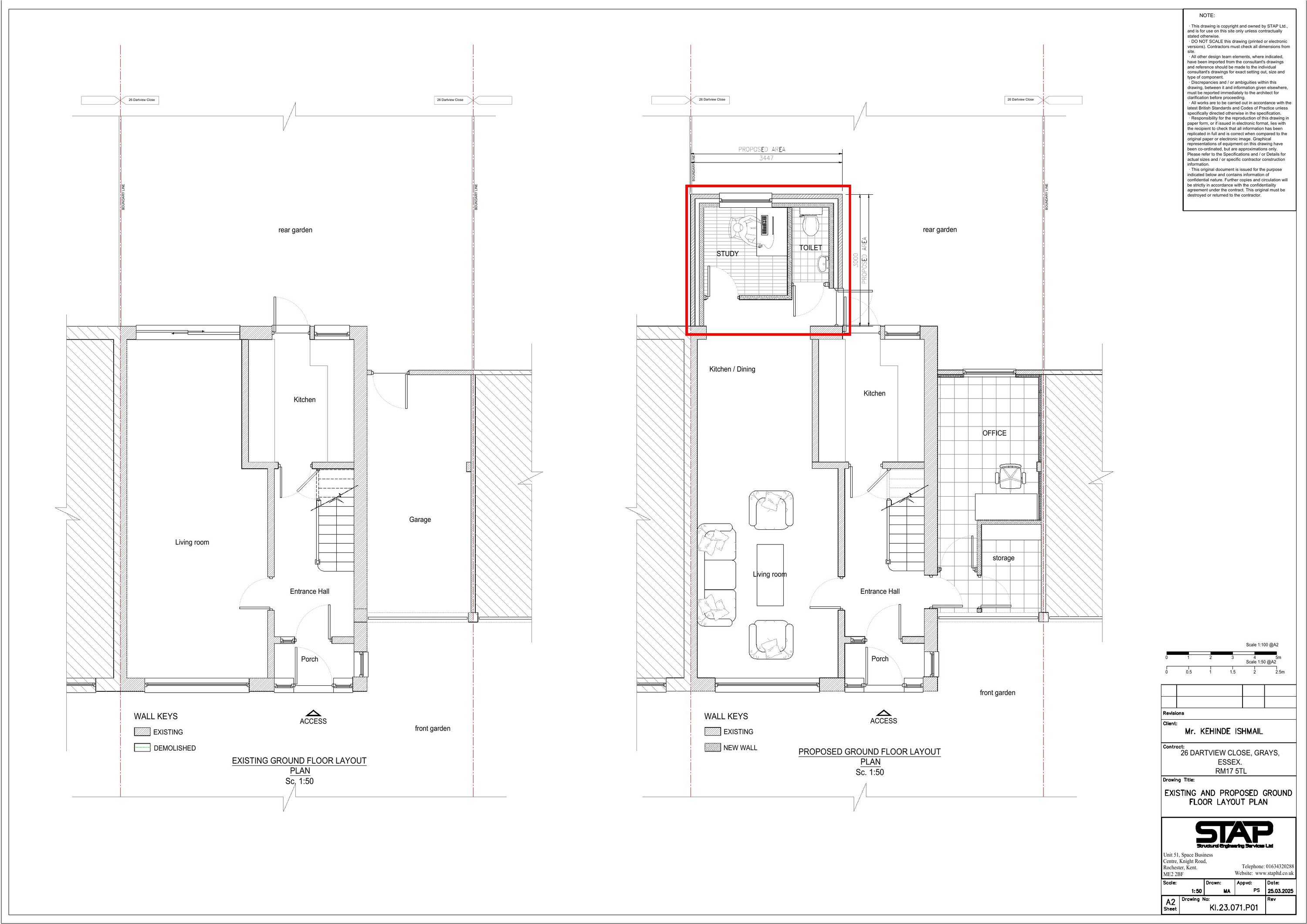
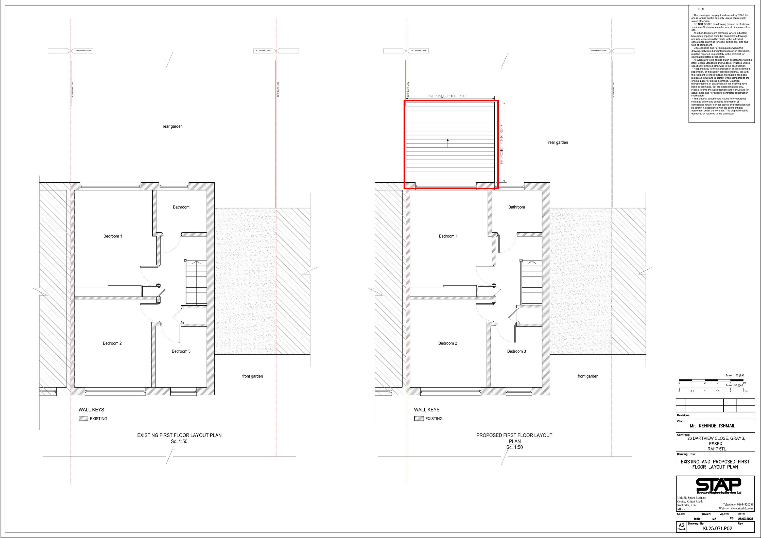
Single storey rear extension, garage conversion and changes to side and rear fenestrations.

Documents

Application Form
Archived · Original link
Current Plan
Archived · Original link
Decision Notice
Archived · Original link
Delegated Report
Archived · Original link
Current Plan
Archived · Original link
Current Plan
Archived · Original link
Current Plan
Archived · Original link
Current Plan
Archived · Original link
Current Plan
Archived · Original link
Current Plan
Archived · Original link
Current Plan
Archived · Original link

Have your say

Your comment matters. Councils must consider every representation that raises material planning considerations.

Write a comment