← Thurrock Council

Status

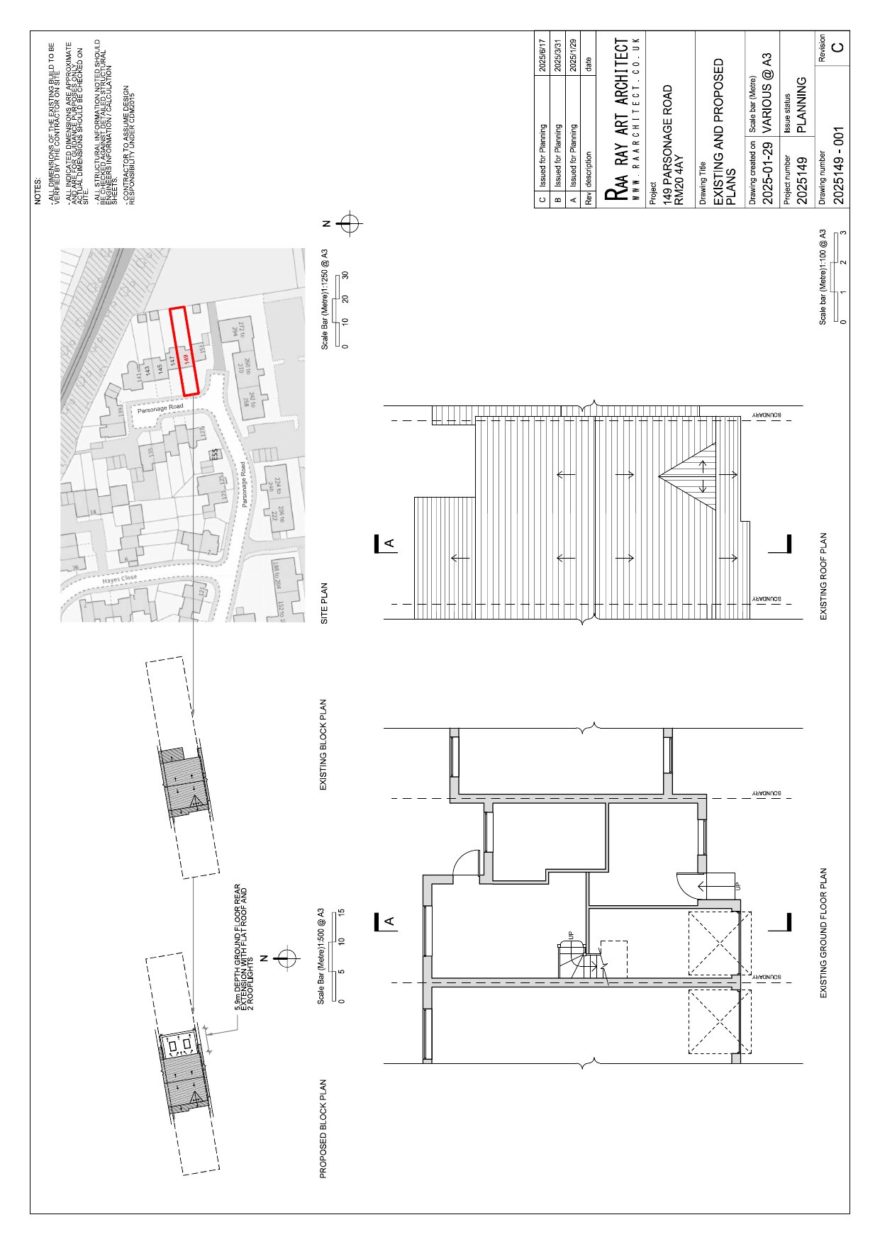
Permitted House extension
Received
09 Apr 2025
New homes
0

Full proposal

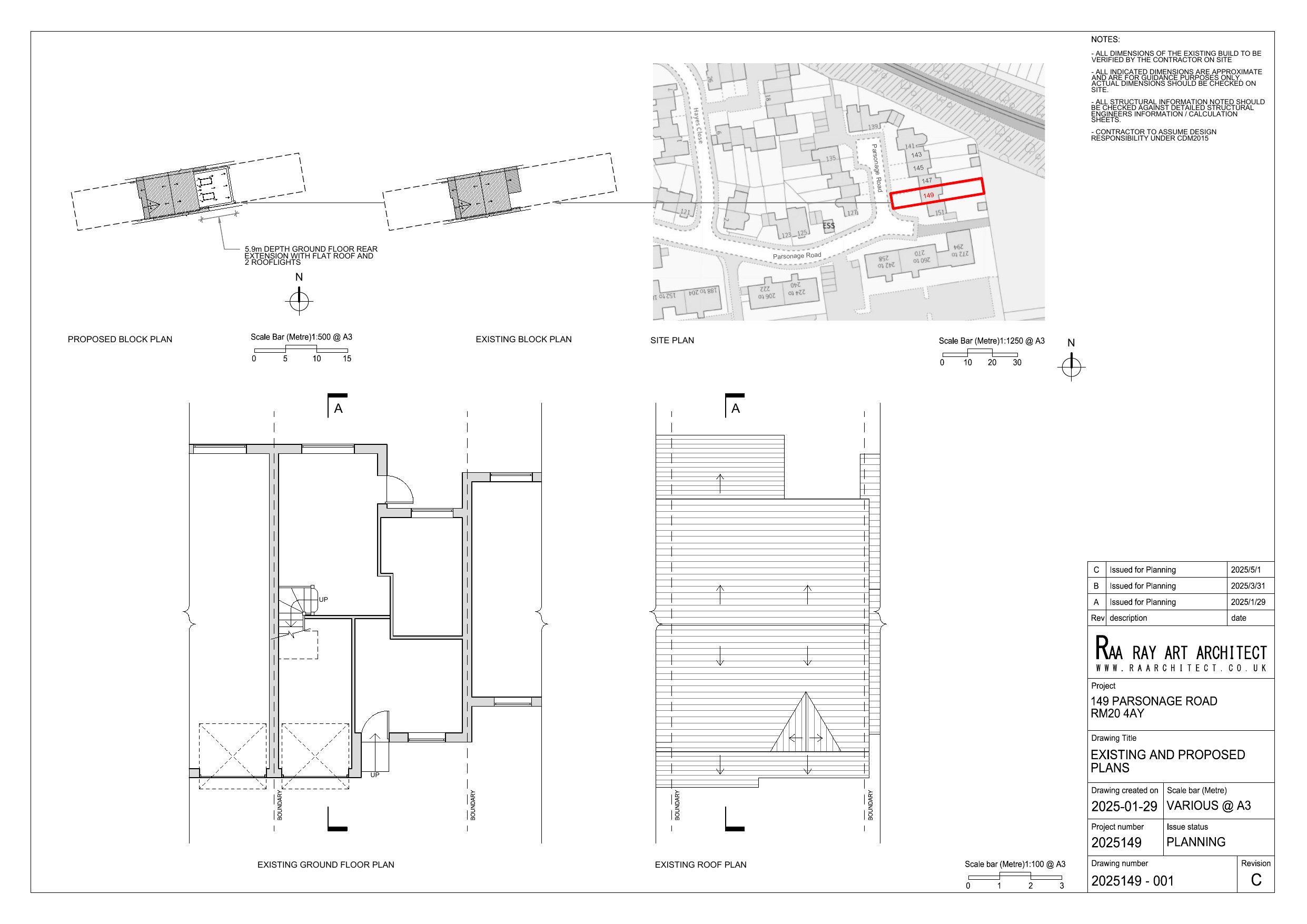
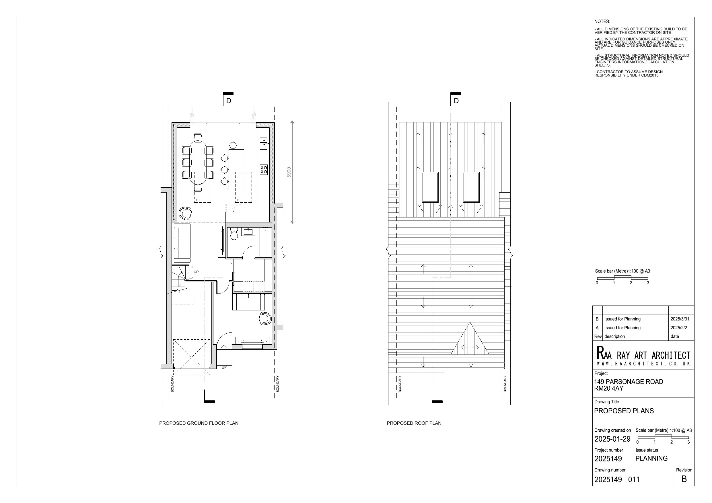
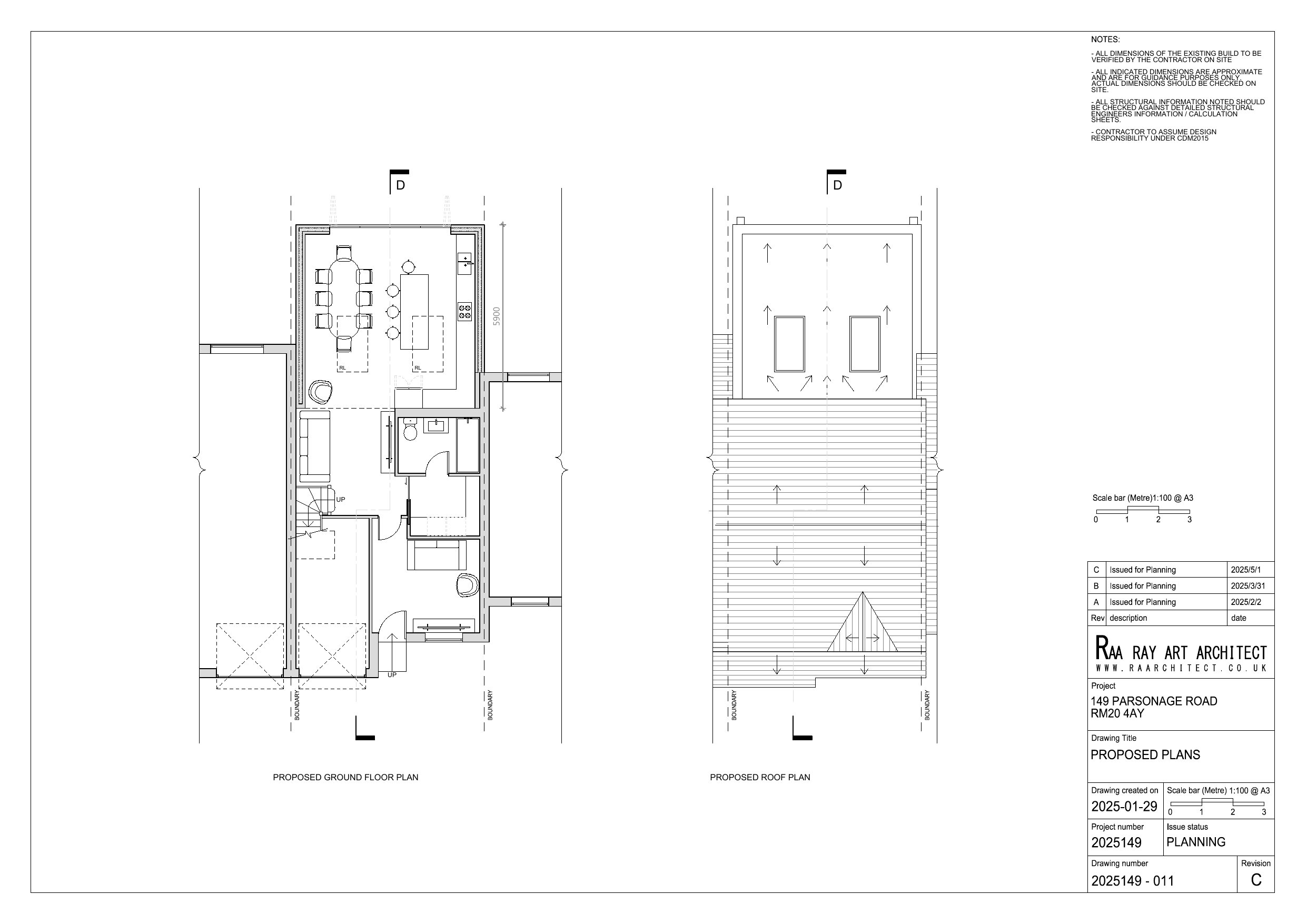
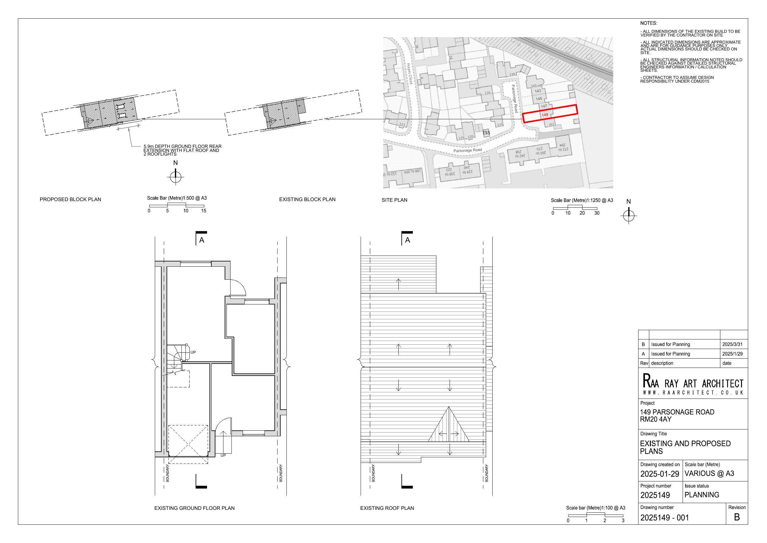
Single-storey rear extension with flat roof and 2 rooflights.

Documents

APPLICATIONFORMREDACTED
Application Form
Not yet archived · Original link
DECISION NOTICE
Decision Notice
Not yet archived · Original link
DELEGATED REPORT
Delegated Report
Not yet archived · Original link
DESIGN AND ACCESS STATEMENT
Studies and Reports
Not yet archived · Original link
Superseded Plan
Archived · Original link
Current Plan
Archived · Original link
EXISTING ELEVATIONS AND SECTIONS
Current Plan
Not yet archived · Original link
EXISTING ELEVATIONS AND SECTIONS
Superseded
Not yet archived · Original link
EXISTING ELEVATIONS AND SECTIONS
Superseded Plan
Not yet archived · Original link
PROPOSED ELEVATIONS AND SECTION
Superseded
Not yet archived · Original link
PROPOSED ELEVATIONS AND SECTIONS
Superseded Plan
Not yet archived · Original link
Superseded Plan
Archived · Original link
Superseded
Archived · Original link
Current Plan
Archived · Original link
PROPSOED ELEVATIONS AND SECTIONS
Current Plan
Not yet archived · Original link
SITE LOCATION
Studies and Reports
Not yet archived · Original link

Have your say

Your comment matters. Councils must consider every representation that raises material planning considerations.

Write a comment