← Thurrock Council

Status

Permitted House extension
Received
29 Apr 2025
New homes
0

Full proposal

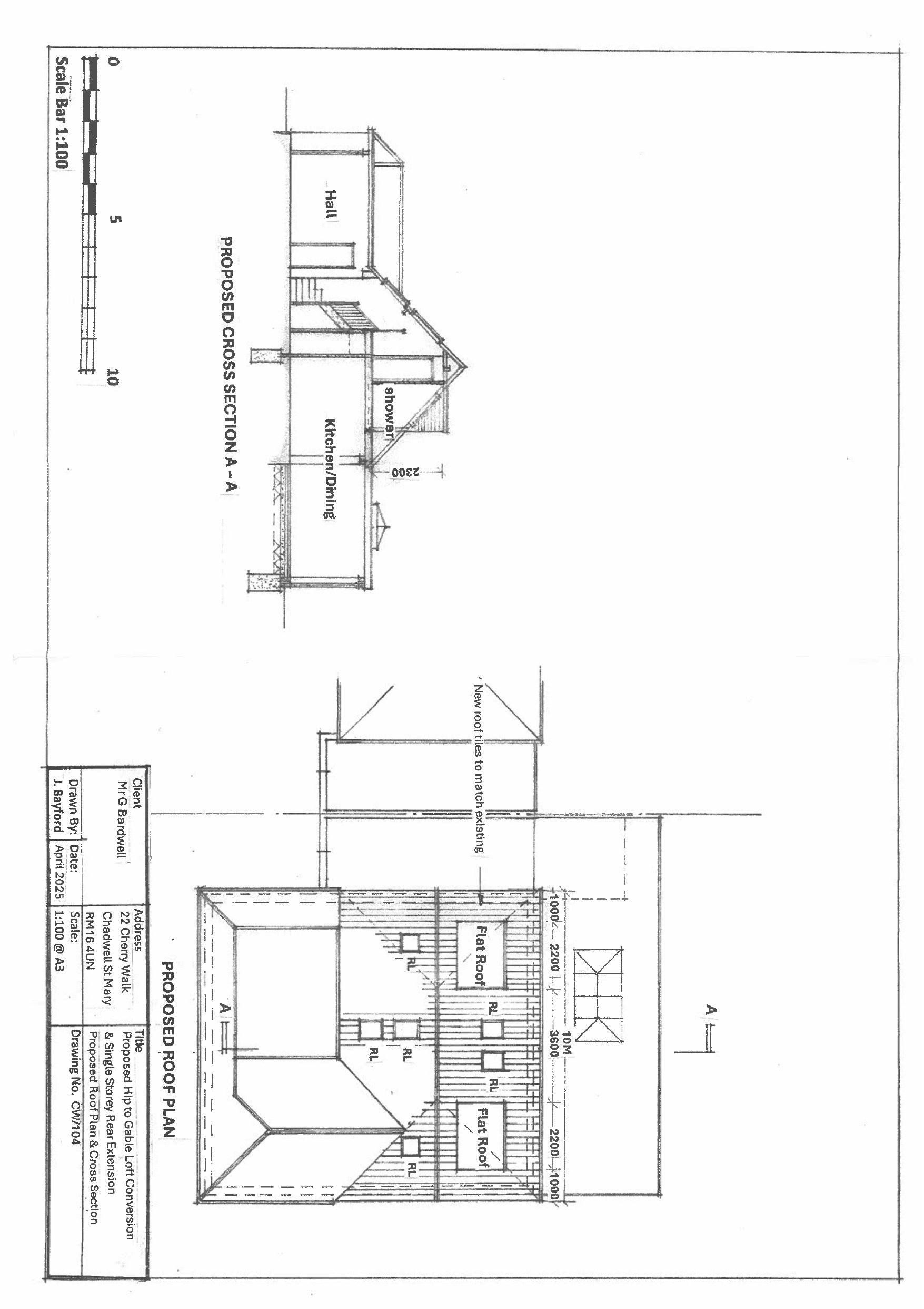
Proposed hip to gable loft conversion with rear dormer, roof lights to the front and addition of one window to side elevation. Removal of the existing rear addition to the garage and erection of a single storey rear extension.

Documents

Application Form
Archived · Original link
Application Form
Archived · Original link
Decision Notice
Archived · Original link
Delegated Report
Archived · Original link
Current Plan
Archived · Original link
Current Plan
Archived · Original link
Current Plan
Archived · Original link
Superseded Plan
Archived · Original link
Superseded Plan
Archived · Original link
Current Plan
Archived · Original link
Current Plan
Archived · Original link
Current Plan
Archived · Original link
Current Plan
Archived · Original link

Have your say

Your comment matters. Councils must consider every representation that raises material planning considerations.

Write a comment