← Thurrock Council

Status

Permitted Change of use
Received
05 May 2025
New homes
0

Full proposal

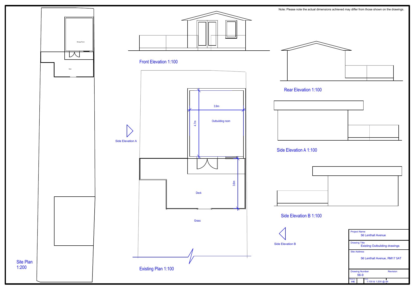
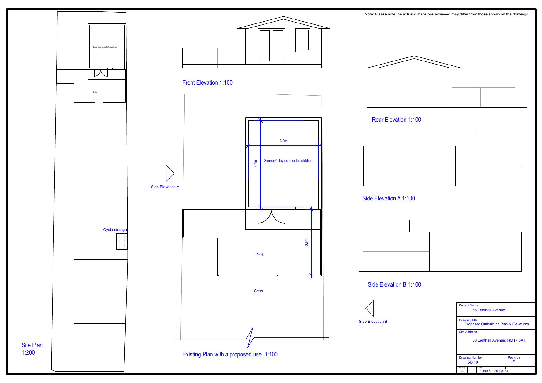
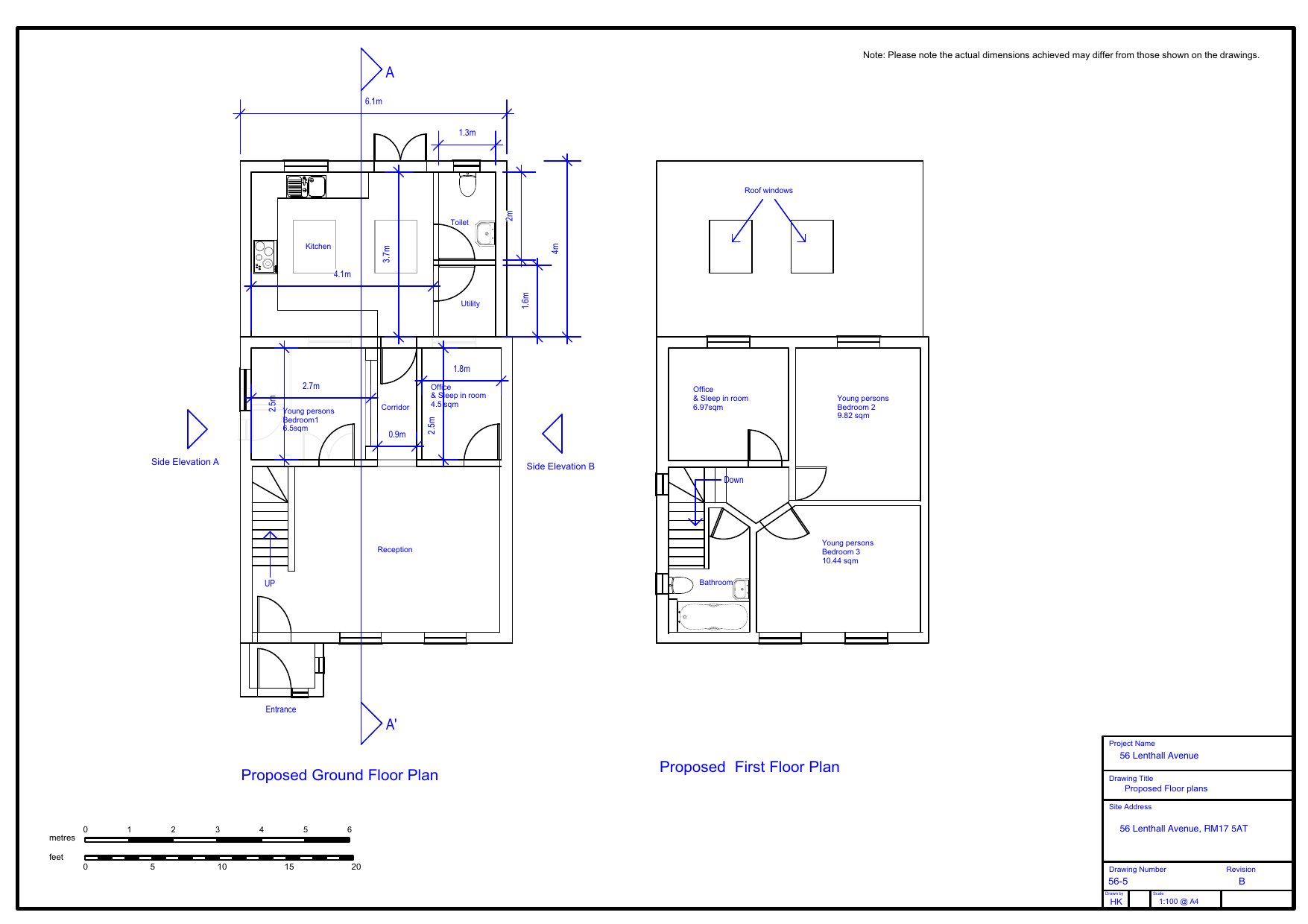
Change of use from C3 to C2 (Children's Home) with a 4m deep extension for a new Kitchen, Utility and toilet area

Documents

Application Form
Archived · Original link
Decision Notice
Archived · Original link
Delegated Report
Archived · Original link
Studies and Reports
Archived · Original link
Current Plan
Archived · Original link
Current Plan
Archived · Original link
Current Plan
Archived · Original link
LOCAL LEAD FLOOD AUTHORITY
Consultee Comment
Not yet archived · Original link
Current Plan
Archived · Original link
Current Plan
Archived · Original link
Current Plan
Archived · Original link
Current Plan
Archived · Original link

Have your say

Your comment matters. Councils must consider every representation that raises material planning considerations.

Write a comment