← Thurrock Council

Status

Permitted House extension
Received
01 May 2025
New homes
0

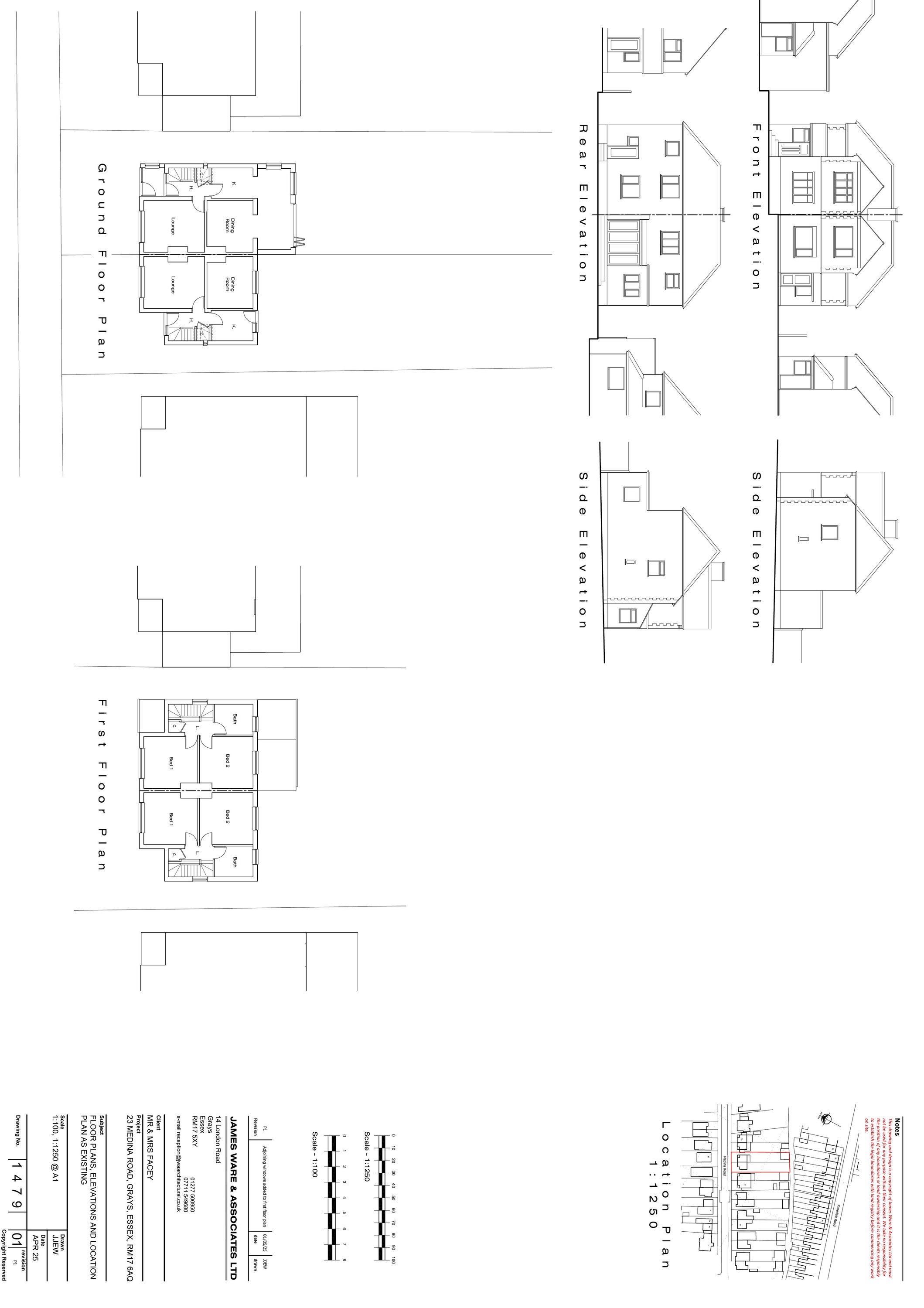
Full proposal

Two storey side extensions, two storey rear extensions, single storey front extensions and a single storey rear extension to 23 and 25 Medina Road.

Documents

Application Form
Archived · Original link
Decision Notice
Archived · Original link
Delegated Report
Archived · Original link
Current Plan
Archived · Original link
Current Plan
Archived · Original link

Have your say

Your comment matters. Councils must consider every representation that raises material planning considerations.

Write a comment