← Back to Thurrock Council

Status

Permitted Change of use
Received 15 May 2025
New dwellings 0

What you can do

Take Action

Make your voice heard. Authorities need to hear from people who support new homes.

Summary

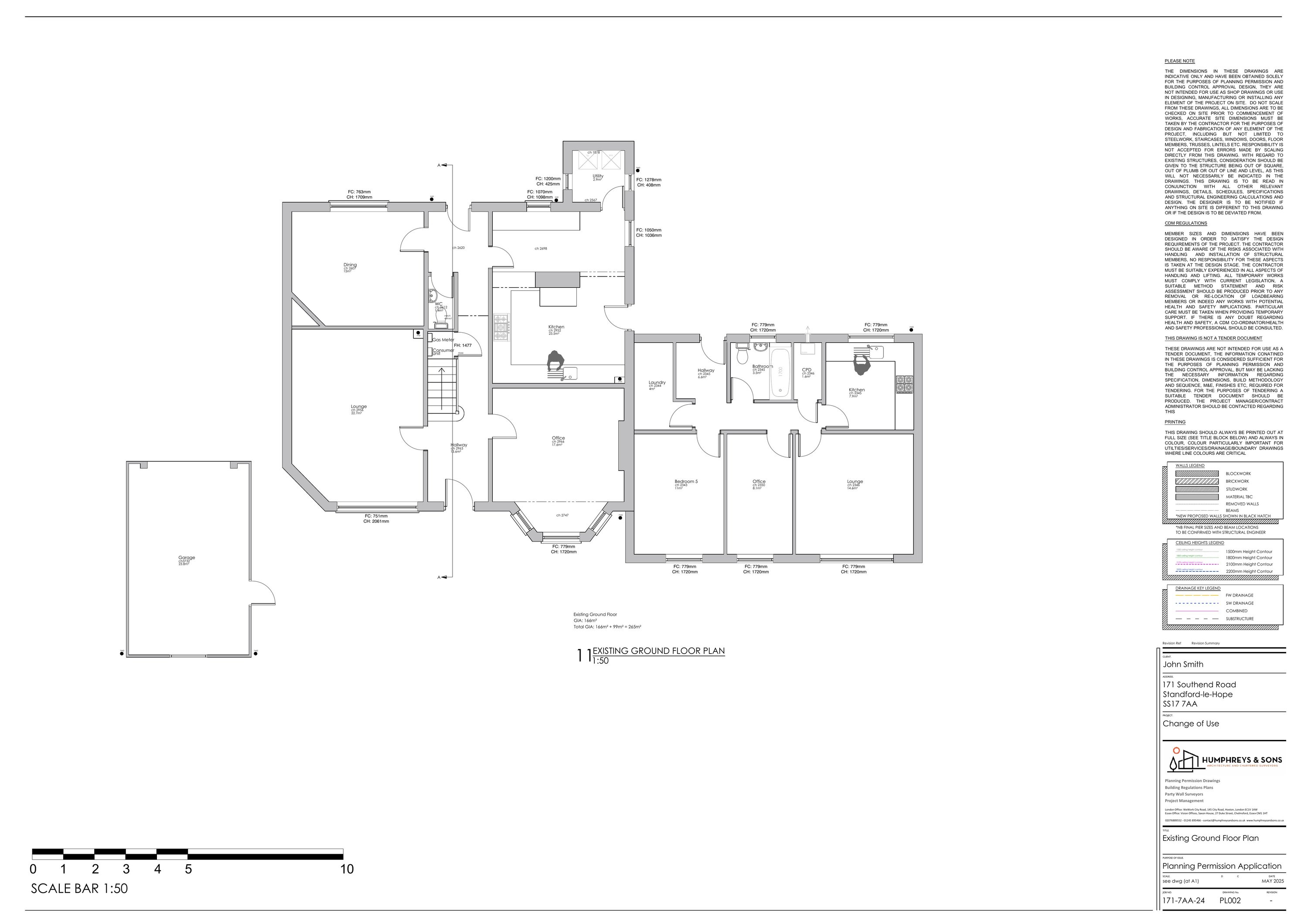
Change of use from dwellinghouse (Class C3) to C2 children's home for up to five children; garage demolition.

Full Proposal

Planning application for change of use from dwelling house Use Class C3 to Use Class C2 children's home for up to 5 children under the supervision of adult carers. Demolition of garage.

Detail pages

Documents

APPLICATIONFORMREDACTED
Application Form
Not downloaded · Council link
EXISTING ELEVATIONS
Current Plan
Not downloaded · Council link
EXISTING FIRST FLOOR PLAN
Current Plan
Not downloaded · Council link
EXISTING PLANS
Current Plan
Not downloaded · Council link
PLANNING STATEMENT
Studies and Reports
Not downloaded · Council link
PROPOSED ELEVATIONS
Current Plan
Not downloaded · Council link
PROPOSED ELEVATIONS
Superseded
Not downloaded · Council link
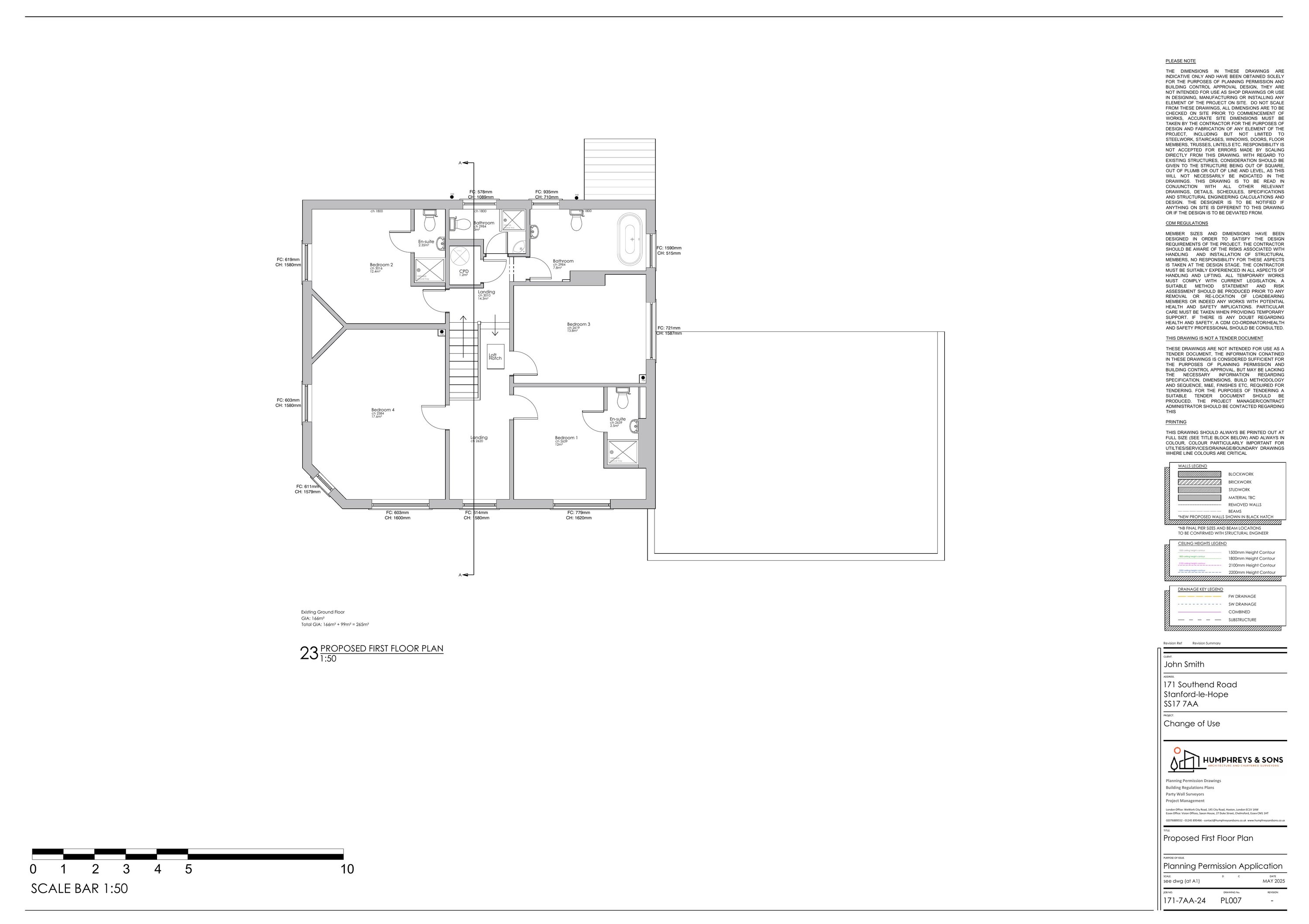
PROPOSED FIRST FLOOR PLANS
Current Plan
Not downloaded · Council link
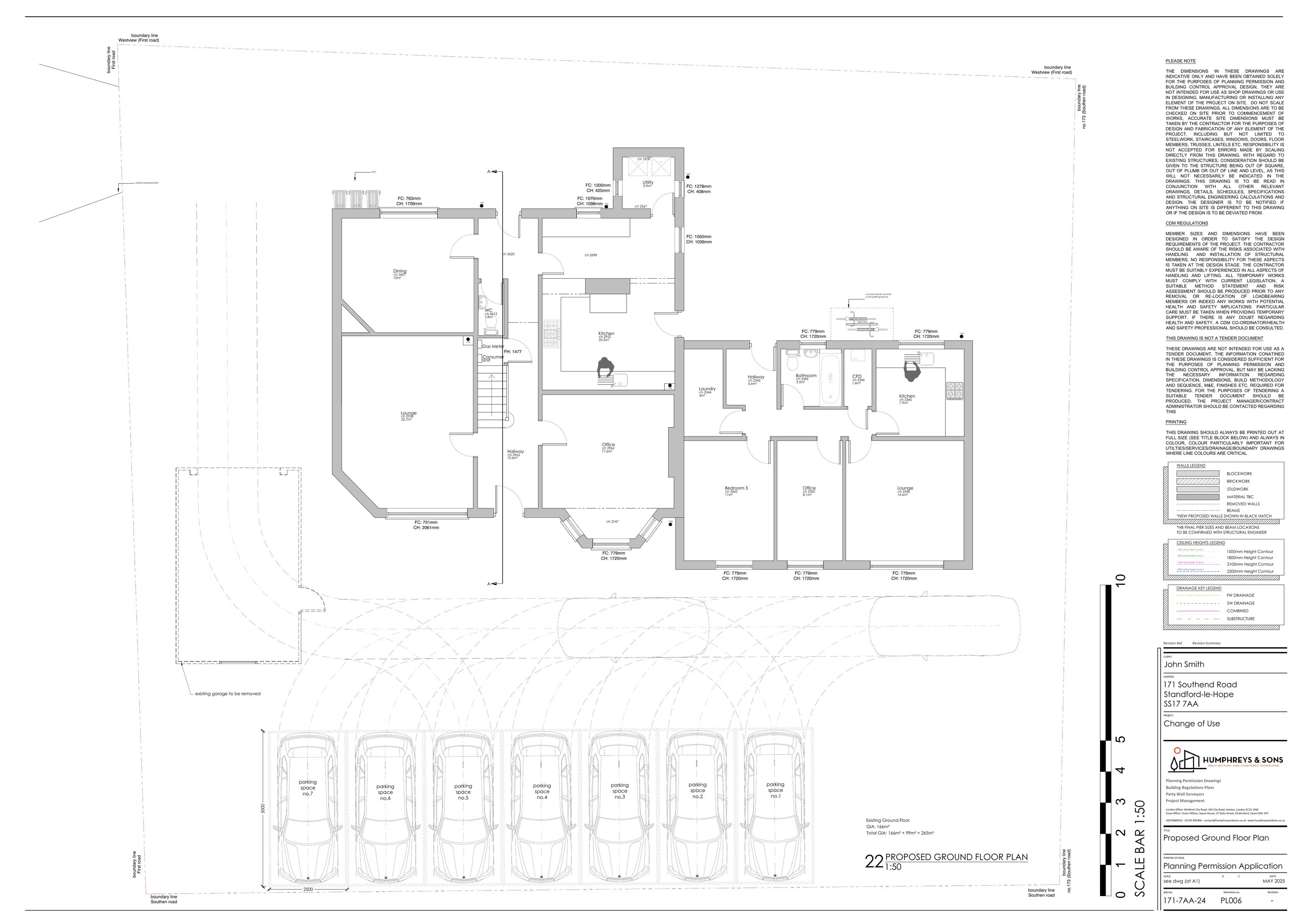
PROPOSED GROUND FLOOR PLAN
Superseded
Not downloaded · Council link
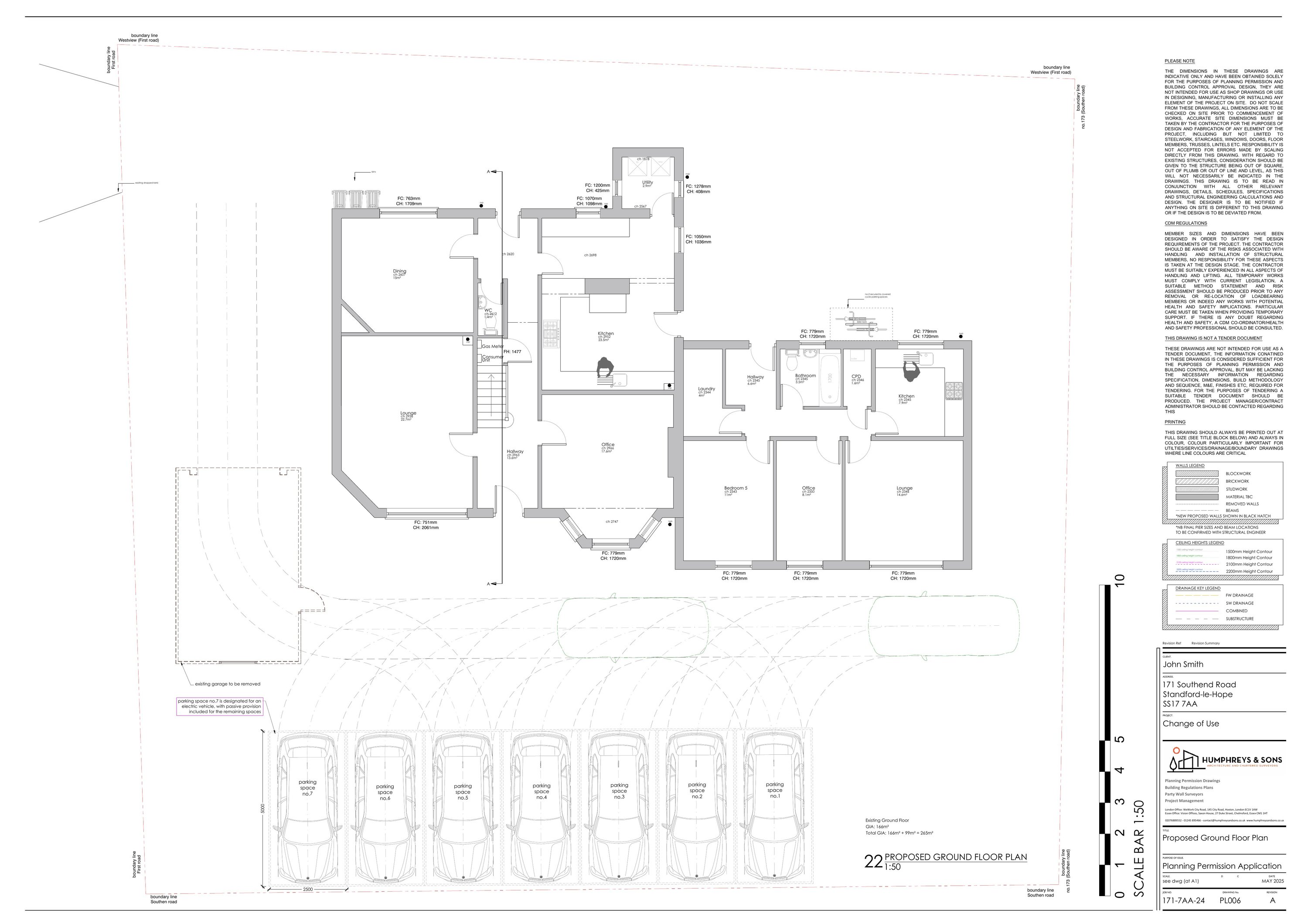
PROPOSED GROUND FLOOR PLANS
Current Plan
Not downloaded · Council link
ROOF PLANS
Current Plan
Not downloaded · Council link
ROOF PLANS
Current Plan
Not downloaded · Council link