← Thurrock Council

Status

Permitted House extension
Received
15 May 2025
New homes
0

Full proposal

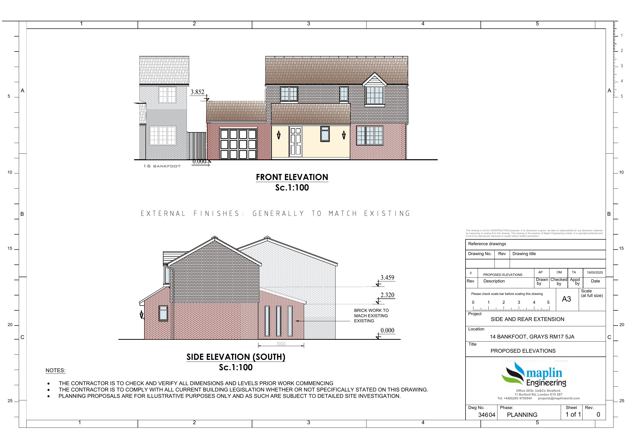
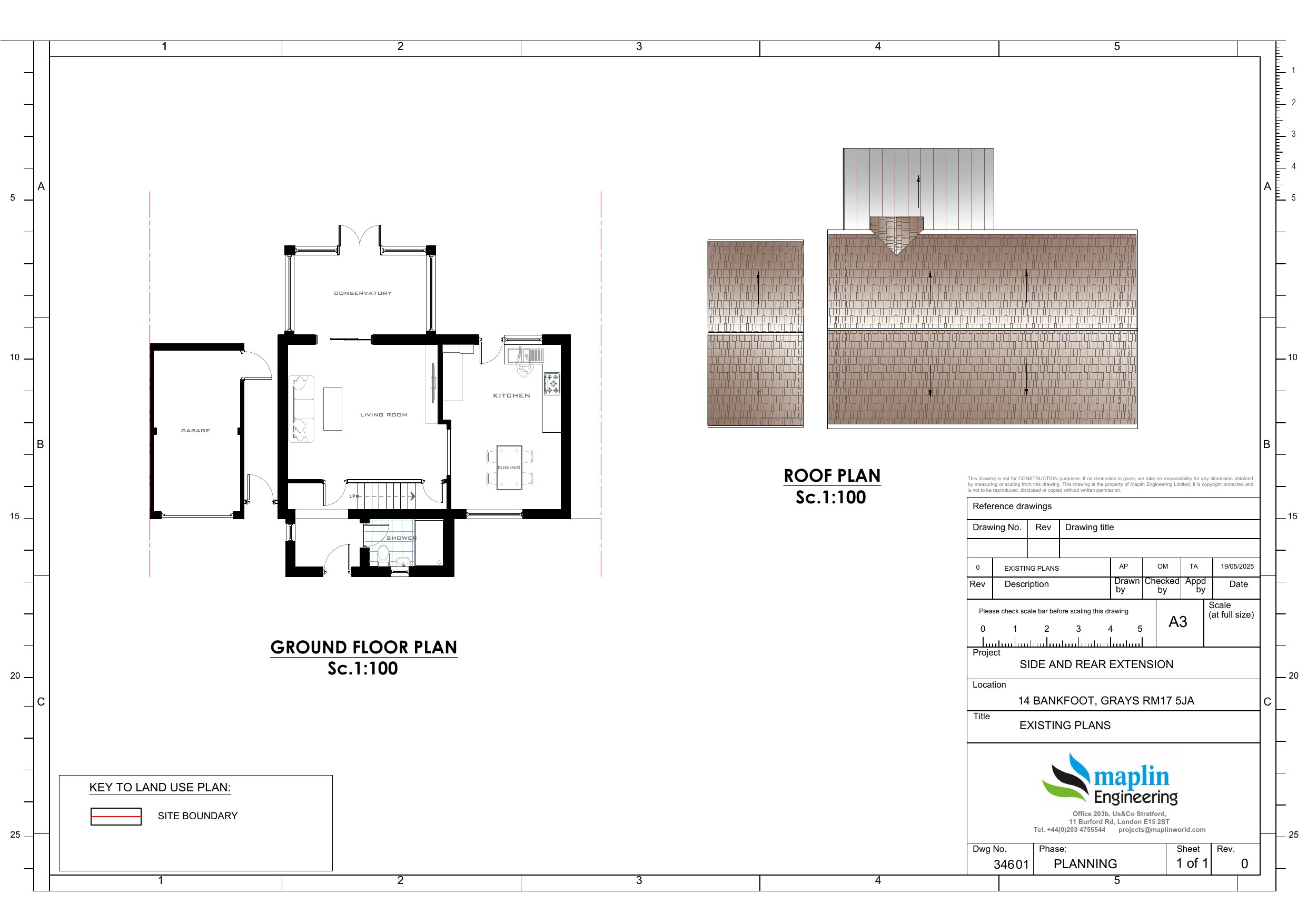
Garage demolition and single storey wrap around extension.

Documents

Application Form
Archived · Original link
Current Plan
Archived · Original link
Decision Notice
Archived · Original link
Delegated Report
Archived · Original link
Current Plan
Archived · Original link
Current Plan
Archived · Original link
Studies and Reports
Archived · Original link
Current Plan
Archived · Original link
Current Plan
Archived · Original link
Current Plan
Archived · Original link
Current Plan
Archived · Original link

Have your say

Your comment matters. Councils must consider every representation that raises material planning considerations.

Write a comment