25/00821/FUL
Thurrock Council
Status
Permitted
House extension
Received
07 Jul 2025
New homes
0
Full proposal
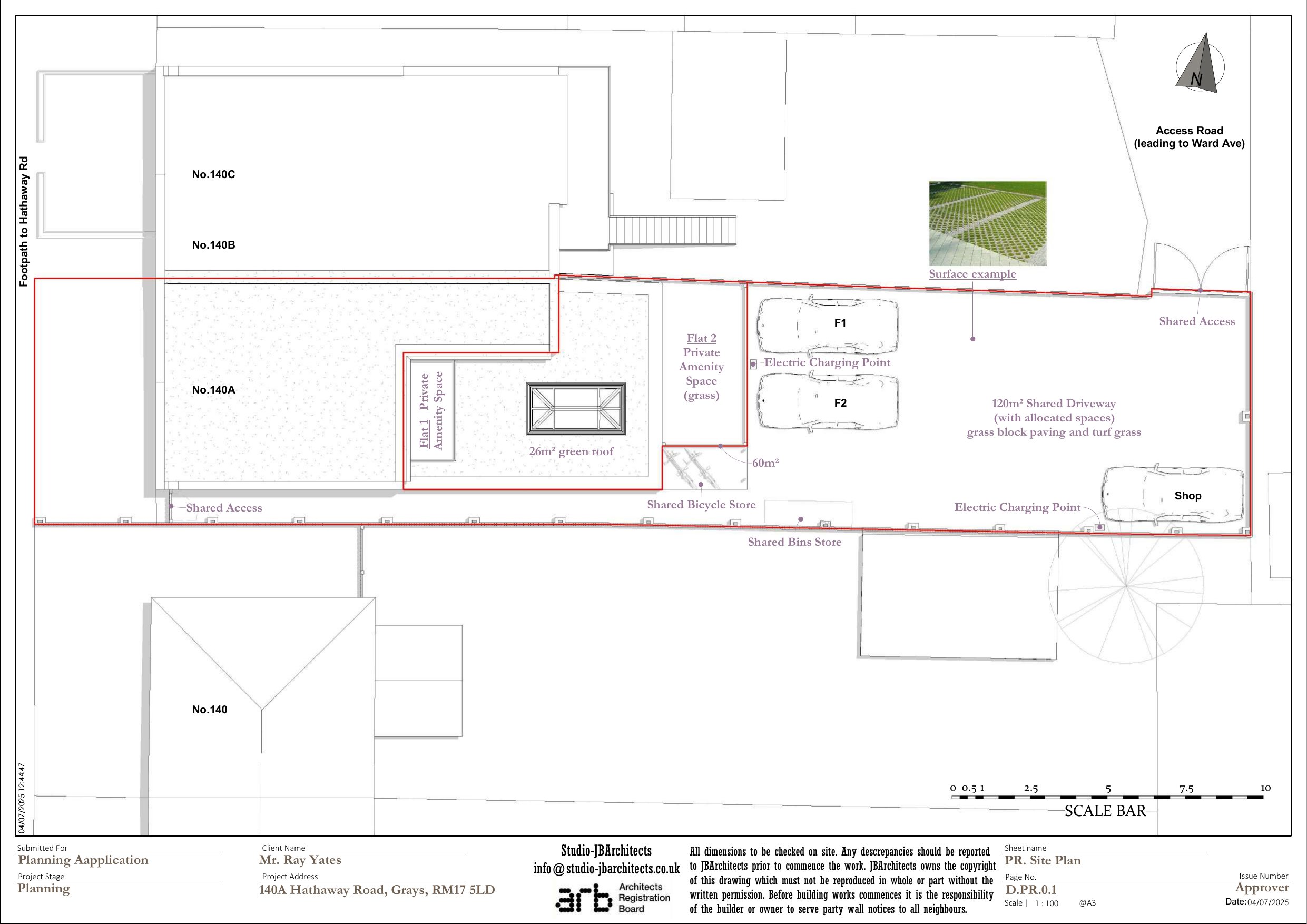
Ground floor single-storey rear extension as self-accommodated flat with flat roof and roof lantern, as well as subdivision of the plot.
Documents
Have your say
Your comment matters. Councils must consider every representation that raises material planning considerations.