← Thurrock Council

Status

Permitted Change of use
Received
12 Aug 2025
New homes
0

Full proposal

Change of Use from Residential (Use Class C3) to Nursery (Use Class E(f))

Documents

ADDEDUMN 1 FOR PERSONAL STATEMENT
Other
Not yet archived · Original link
APPLICATIONFORMREDACTED
Application Form
Not yet archived · Original link
APPLICATIONFORMREDACTED
Superseded
Not yet archived · Original link
DECISION NOTICE
Decision Notice
Not yet archived · Original link
DELEGATED REPORT
Delegated Report
Not yet archived · Original link
EMERGENCY PLANNING
Consultee Comment
Not yet archived · Original link
EMERGENCY PLANNING
Consultee Comment
Not yet archived · Original link
EXISTING ANNEXE
Current Plan
Not yet archived · Original link
EXISTING ANNEXE 2
Current Plan
Not yet archived · Original link
EXISTING ELEVATIONS
Current Plan
Not yet archived · Original link
EXISTING ELEVATIONS
Superseded Plan
Not yet archived · Original link
EXISTING PLAN
Superseded Plan
Not yet archived · Original link
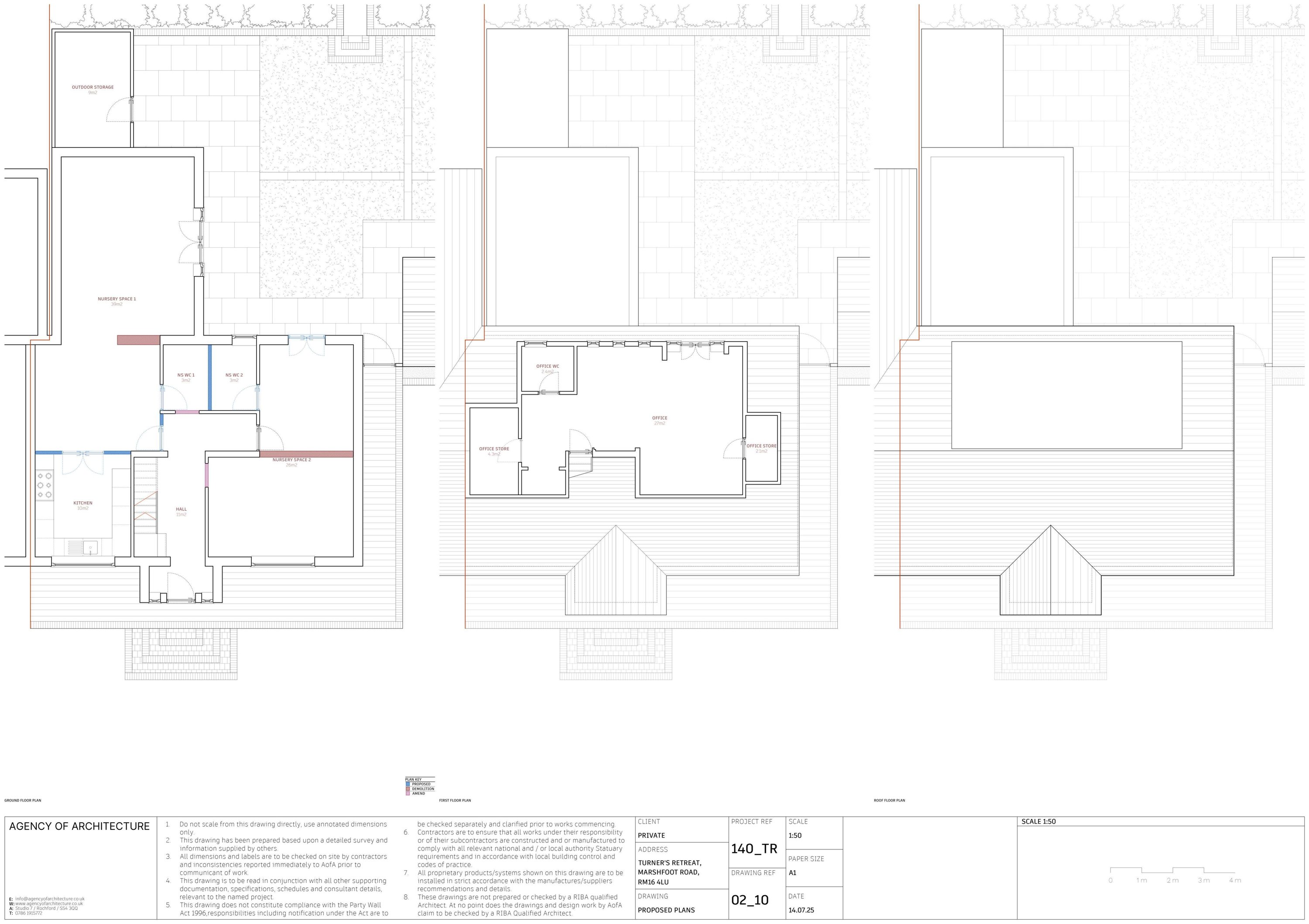
EXISTING PLANS
Current Plan
Not yet archived · Original link
EXISTING PLANS
Superseded Plan
Not yet archived · Original link
EXISTING PLANS
Superseded Plan
Not yet archived · Original link
FLOOD RISK ASSESSMENT
Studies and Reports
Not yet archived · Original link
FLOOD WARNING AND EVACUATION PLAN
Studies and Reports
Not yet archived · Original link
HIGHWAYS
Consultee Comment
Not yet archived · Original link
LOCAL LEAD FLOOD AUTHORITY
Consultee Comment
Not yet archived · Original link
LOCATION AND BLOCK PLAN
Superseded Plan
Not yet archived · Original link
LOCATION BLOCK PLAN
Superseded Plan
Not yet archived · Original link
LOCATION PLAN
Current Plan
Not yet archived · Original link
LOCATION PLAN
Superseded Plan
Not yet archived · Original link
PERSONAL STATEMENT FOR PLANNING APPLICATION
Cover Letter
Not yet archived · Original link
PLANNING STATEMENT
Studies and Reports
Not yet archived · Original link
PLANNING STATEMENT_COU
Studies and Reports
Not yet archived · Original link
PROPOSED ANNEXE
Current Plan
Not yet archived · Original link
PROPOSED ANNEXE 2
Current Plan
Not yet archived · Original link
PROPOSED ELEVATIONS
Current Plan
Not yet archived · Original link
PROPOSED ELEVATIONS
Superseded Plan
Not yet archived · Original link
Superseded Plan
Archived · Original link
Superseded Plan
Archived · Original link
Superseded Plan
Archived · Original link
Current Plan
Archived · Original link
TC ENVIRONMENTAL HEALTH
Consultee Comment
Not yet archived · Original link

Have your say

Your comment matters. Councils must consider every representation that raises material planning considerations.

Write a comment