← Thurrock Council

Status

Awaiting decision House extension
Received
Last month
New homes
0

Full proposal

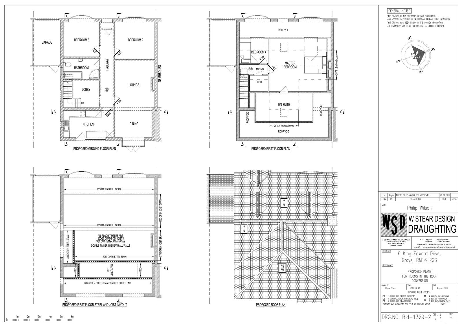
Loft conversion with hip to gable conversion, rear flat roof dormer and front pitched roof dormers

Documents

Application Form
Archived · Original link
Current Plan
Archived · Original link
Current Plan
Archived · Original link
Current Plan
Archived · Original link
Current Plan
Archived · Original link

Have your say

Your comment matters. Councils must consider every representation that raises material planning considerations.

Write a comment