← Thurrock Council

Status

Awaiting decision House extension
Received
Last month
New homes
0

Full proposal

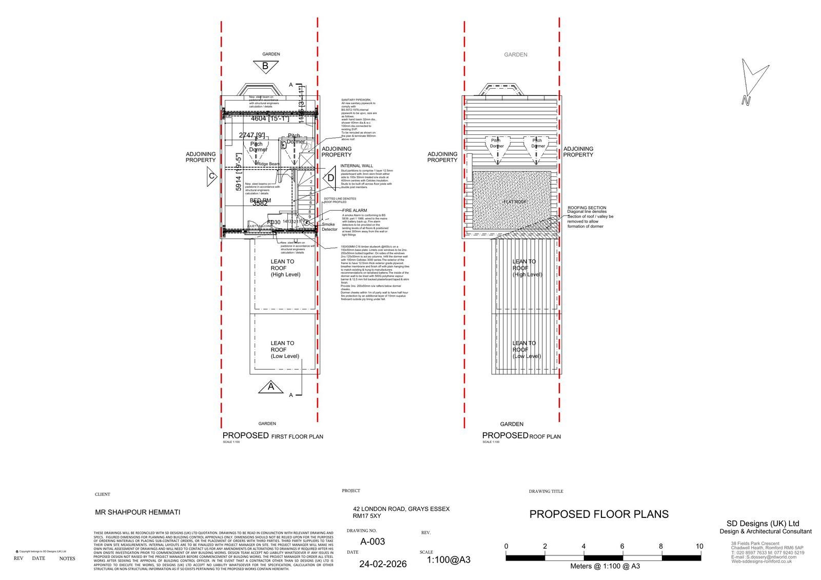
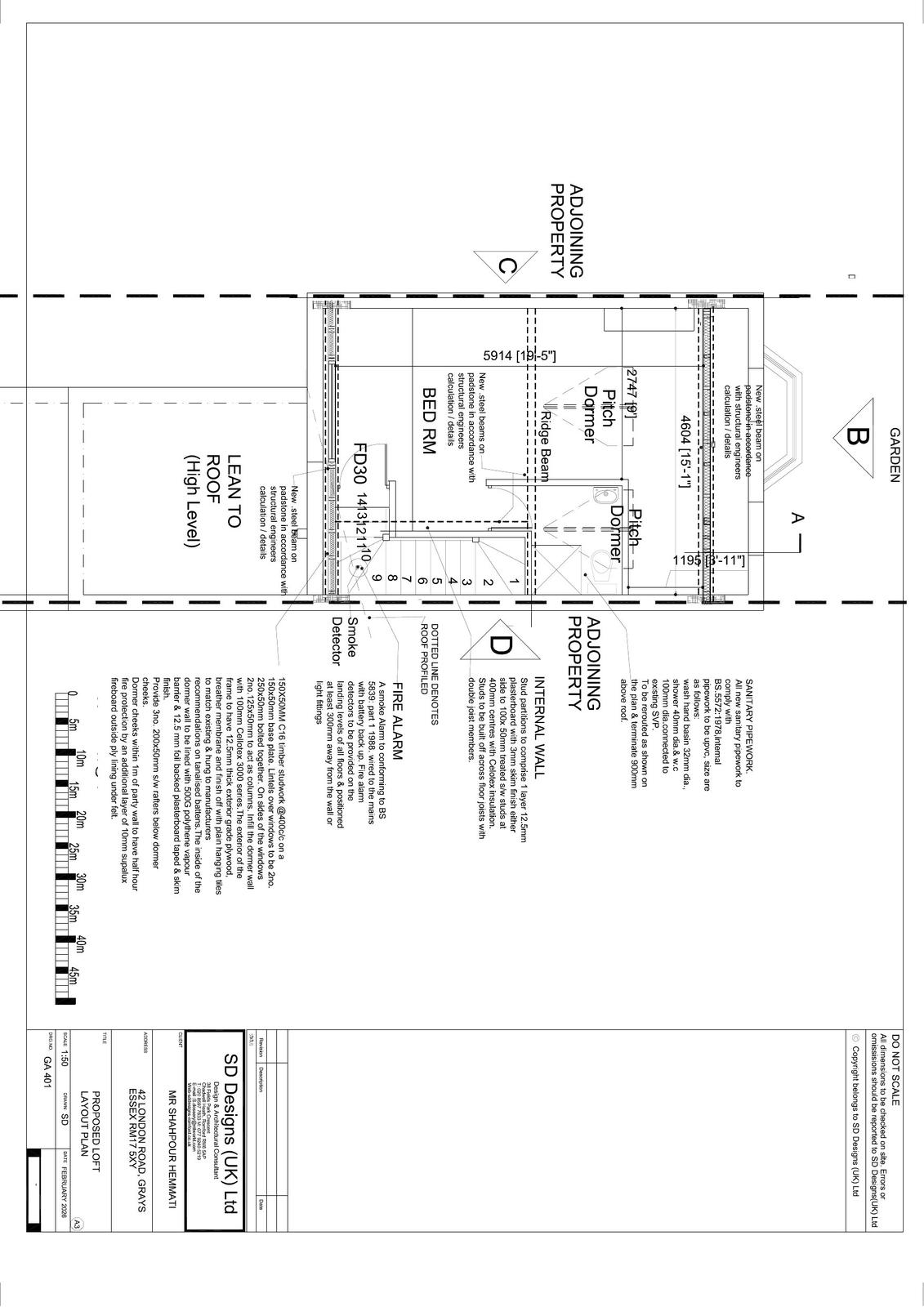
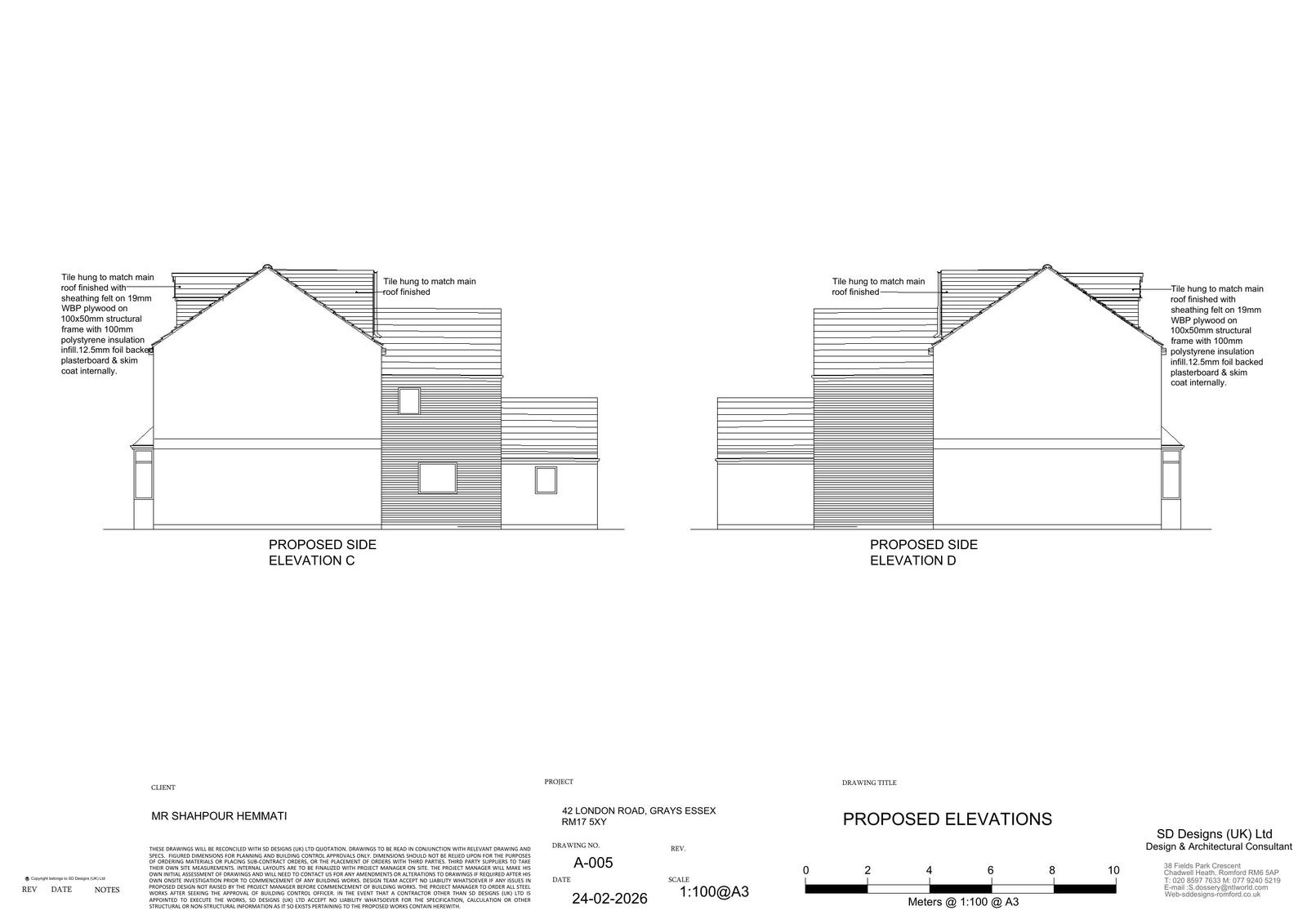
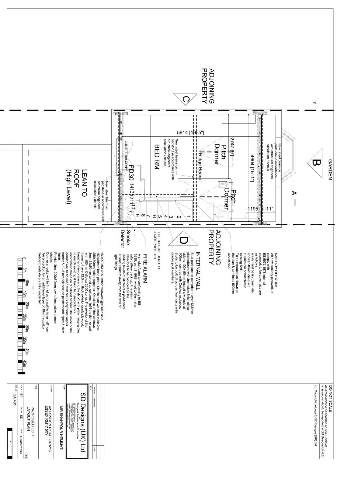
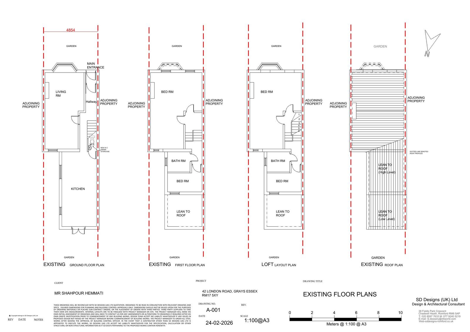
Loft conversion with rear flat dormer and front 2no pitch dormers

Documents

Application Form
Archived · Original link
Superseded Plan
Archived · Original link
Superseded Plan
Archived · Original link
Superseded Plan
Archived · Original link
Superseded Plan
Archived · Original link
Current Plan
Archived · Original link
Current Plan
Archived · Original link
Current Plan
Archived · Original link
Superseded Plan
Archived · Original link
Superseded Plan
Archived · Original link
Current Plan
Archived · Original link
Current Plan
Archived · Original link
Current Plan
Archived · Original link
Superseded Plan
Archived · Original link
Superseded Plan
Archived · Original link
PROPOSED SECTIONS
Current Plan
Not yet archived · Original link
Current Plan
Archived · Original link
Superseded Plan
Archived · Original link
Superseded Plan
Archived · Original link
Superseded Plan
Archived · Original link
Superseded Plan
Archived · Original link

Have your say

Your comment matters. Councils must consider every representation that raises material planning considerations.

Write a comment