← Thurrock Council

Status

Awaiting decision House extension
Received
Last month
New homes
0

Full proposal

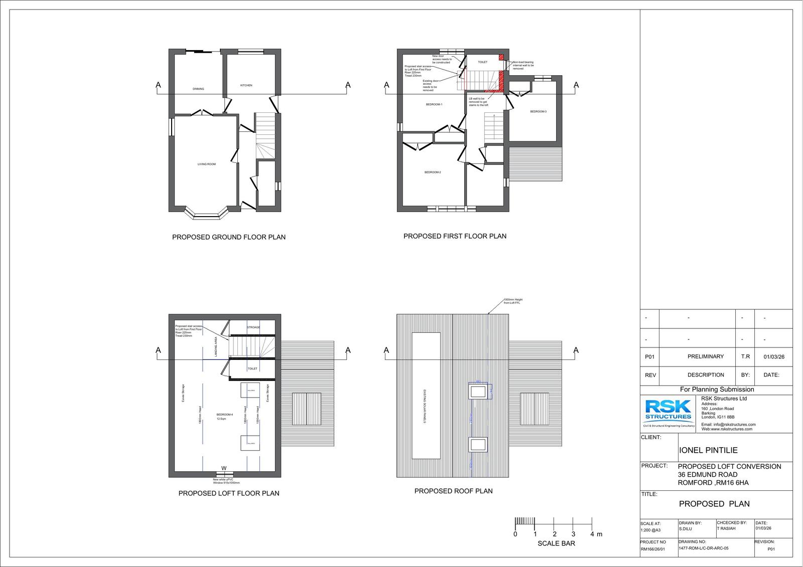
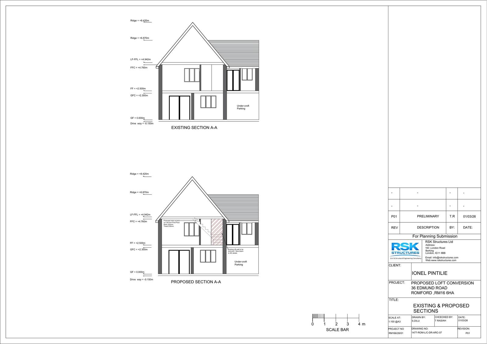
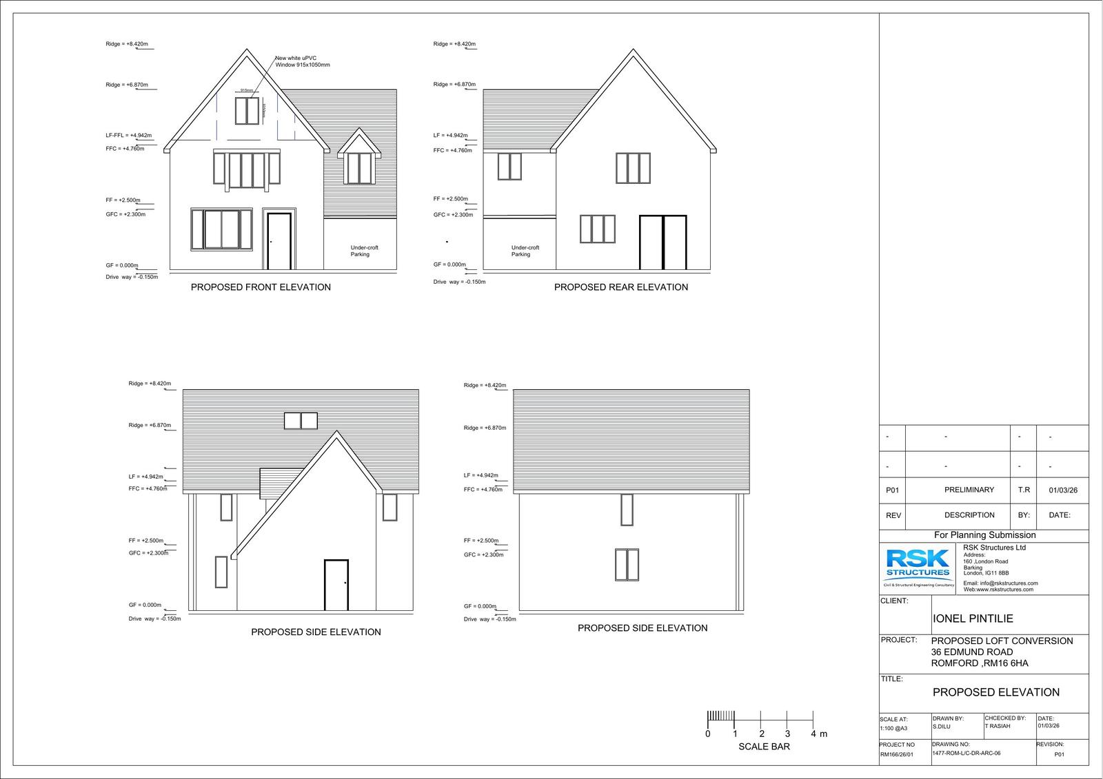
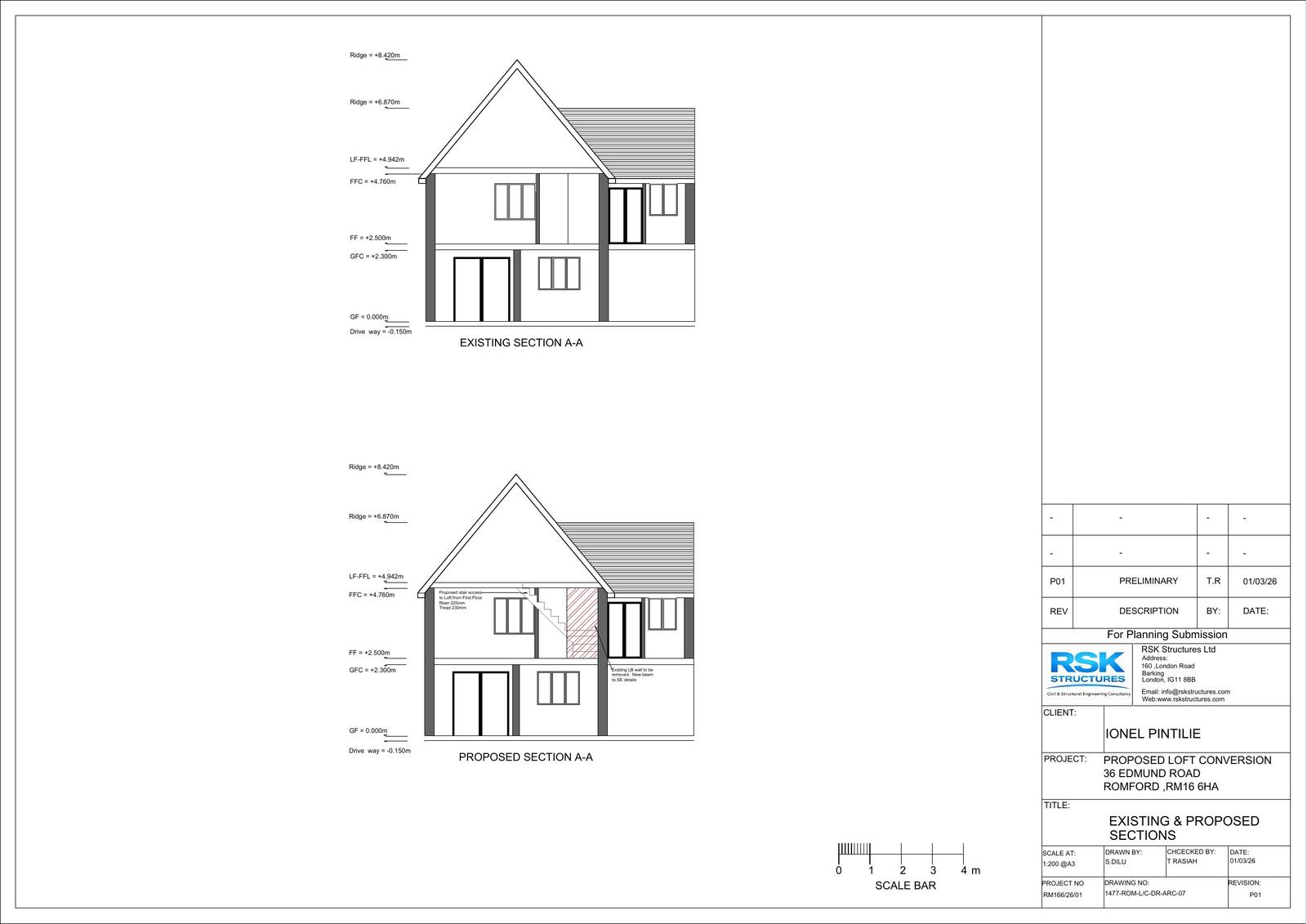
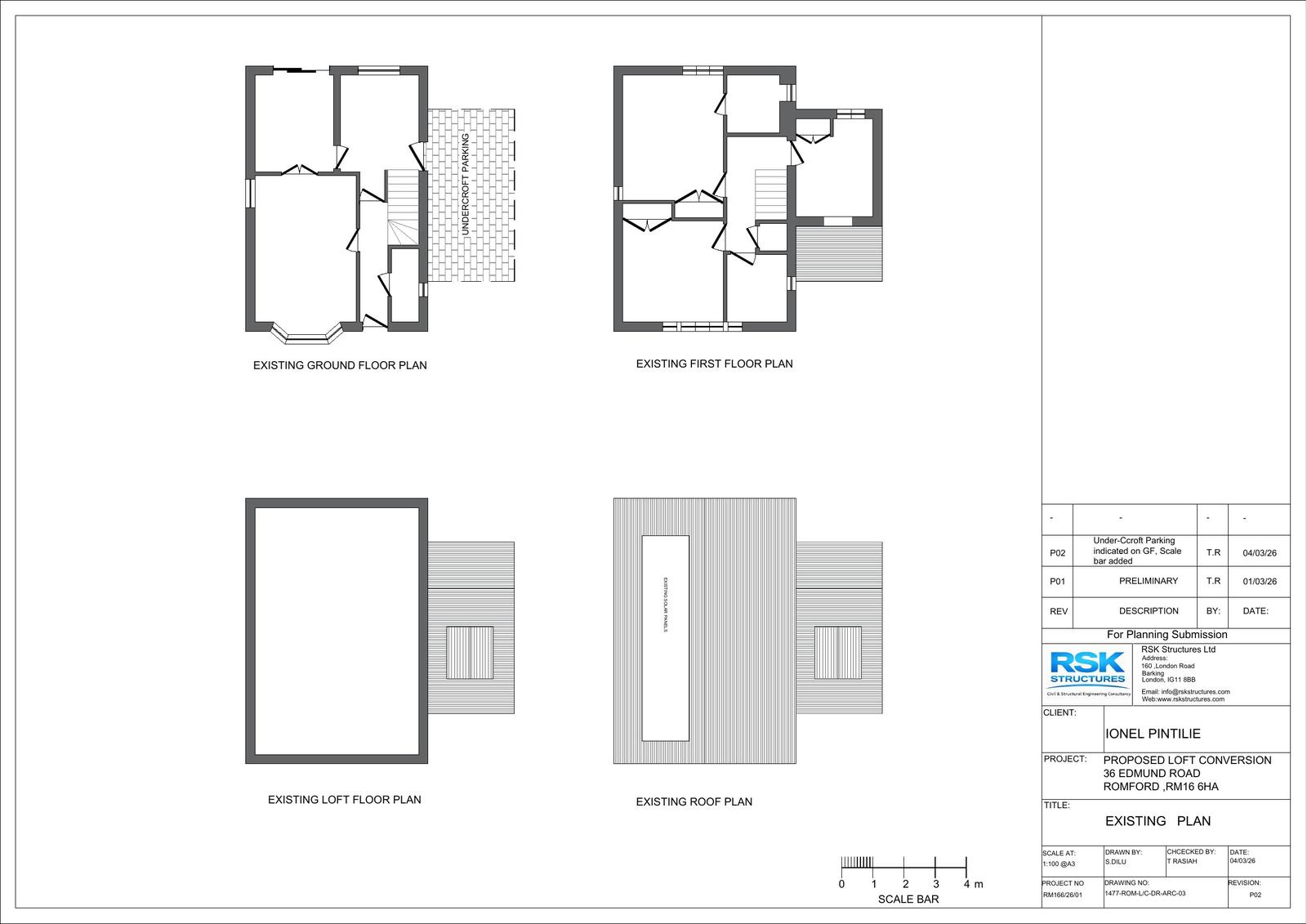
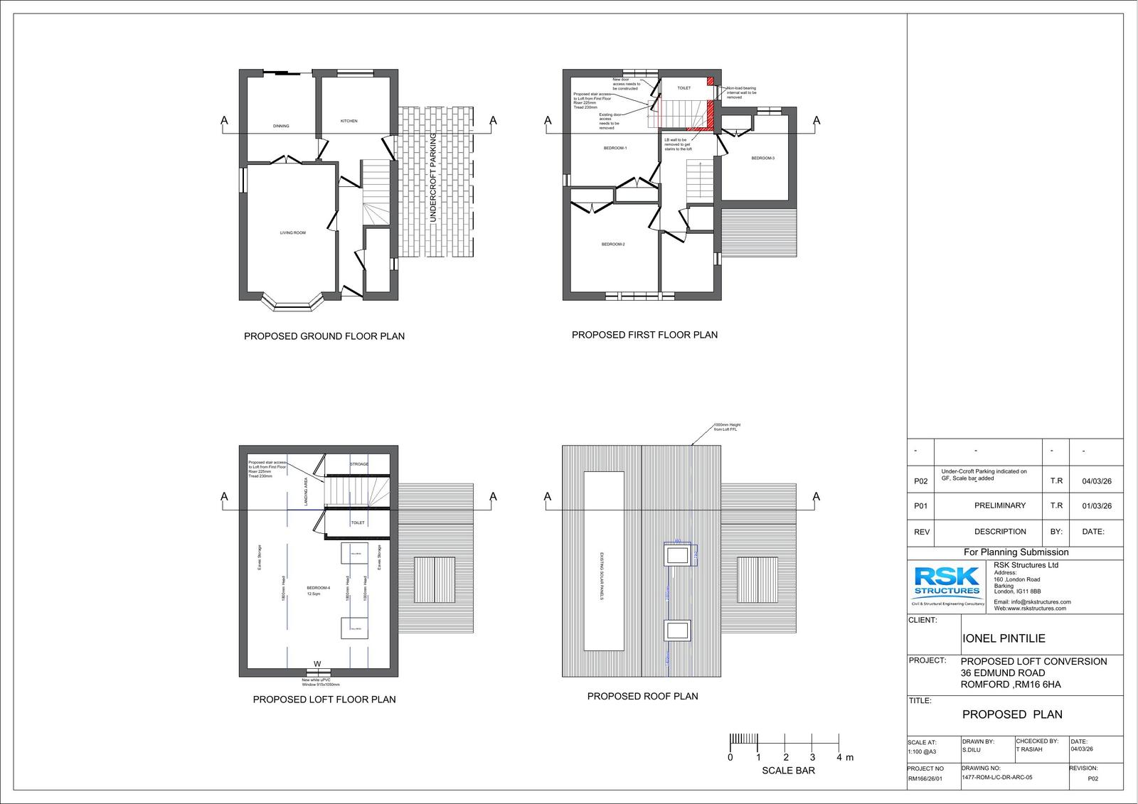
Proposed loft conversion to existing dwelling to create a new bedroom, including installation of 2 no. Velux roof windows (MK04) to the side roof slope and 1 no. new window to the gable wall elevation

Documents

Application Form
Archived · Original link
Current Plan
Archived · Original link
Current Plan
Archived · Original link
Superseded Plan
Archived · Original link
Superseded Plan
Archived · Original link
Superseded Plan
Archived · Original link
Current Plan
Archived · Original link
Current Plan
Archived · Original link
Current Plan
Archived · Original link
Current Plan
Archived · Original link
Superseded Plan
Archived · Original link
Current Plan
Archived · Original link
Current Plan
Archived · Original link
Superseded Plan
Archived · Original link
Superseded Plan
Archived · Original link

Have your say

Your comment matters. Councils must consider every representation that raises material planning considerations.

Write a comment