← Thurrock Council

Status

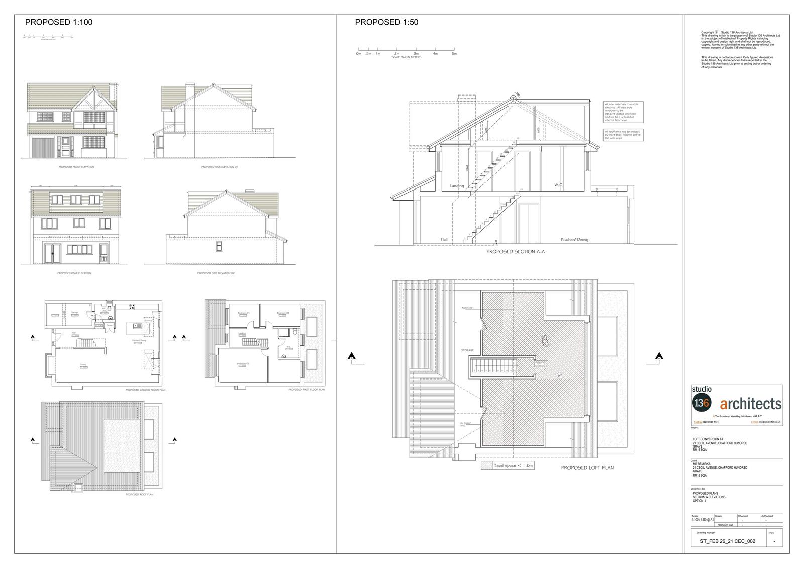
Awaiting decision House extension
Received
Last month
New homes
0

Full proposal

Erection of a flat roof rear dormer and all associated works.

Documents

Current Plan
Archived · Original link
Studies and Reports
Archived · Original link
Photo
Archived · Original link

Have your say

Your comment matters. Councils must consider every representation that raises material planning considerations.

Write a comment