← Thurrock Council

Status

Awaiting decision Change of use
Received
Last month
New homes
0

Full proposal

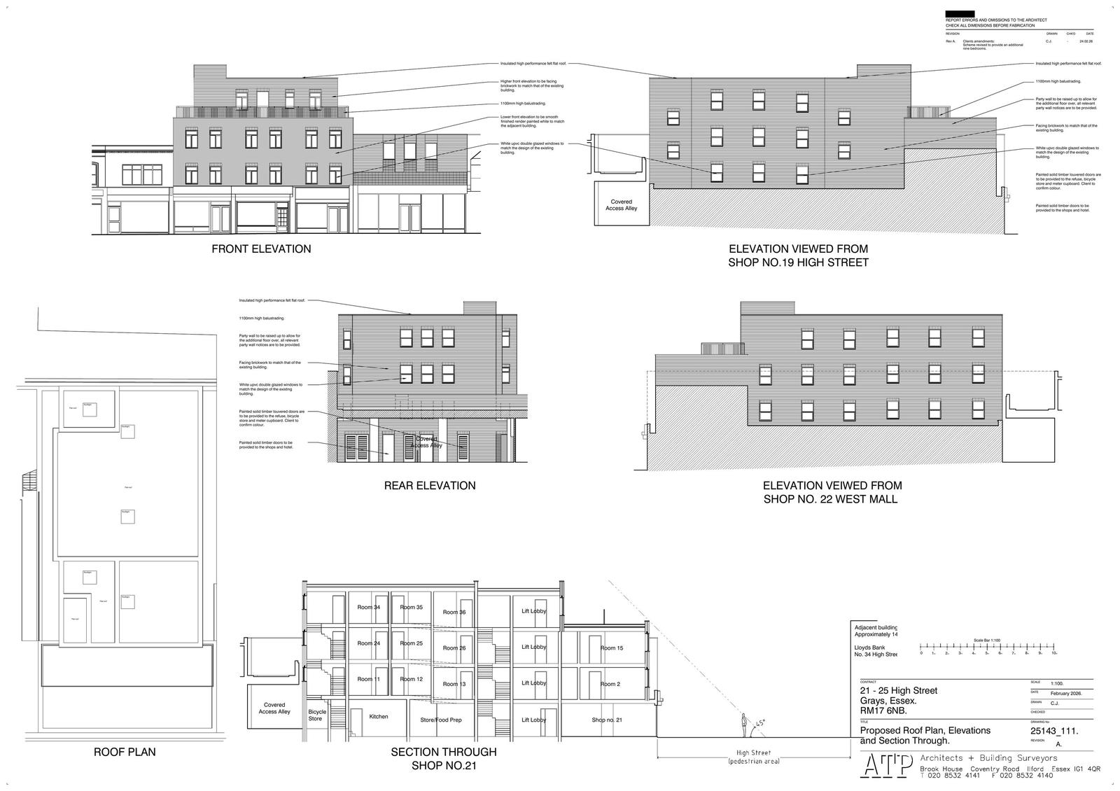
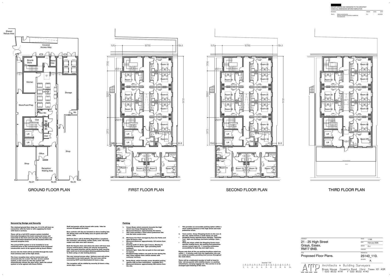
Proposed erection rear extensions and additional two floors, including external and internal alterations and part change of use from shops and ancillary space (Use Class E) to hotel (Use Class C1) with 35 bedrooms.

Documents

Current Plan
Archived · Original link
Current Plan
Archived · Original link
Photo
Archived · Original link
Studies and Reports
Archived · Original link
Current Plan
Archived · Original link
Current Plan
Archived · Original link

Have your say

Your comment matters. Councils must consider every representation that raises material planning considerations.

Write a comment