← Tonbridge and Malling Borough Council

Status

Unknown New housing
Received
30 Jan 2025
New homes
7

Full proposal

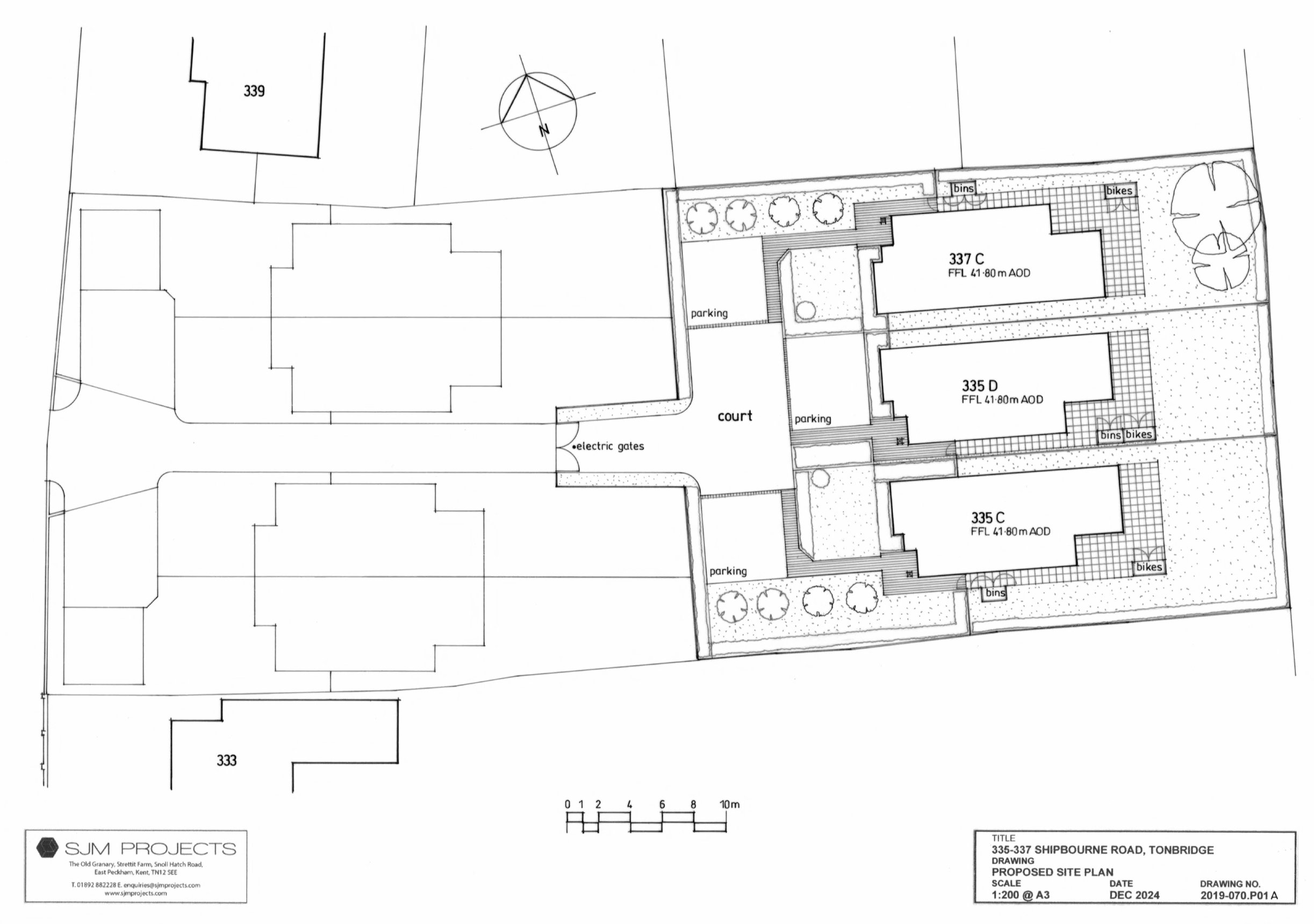
Erection of 2 pairs of semi-detached 4 bed dwellings and three detached 4 bed dwellings to the rear. An amalgamation of four existing planning consents

Documents

2019-070v1 Location plan
Other
Not yet archived · Original link
335-337 Shipbourne Road - Arboricultural Method Statement
Report
Not yet archived · Original link
Appeal Form
Other
Not yet archived · Original link
Application form redacted
Other
Not yet archived · Original link
Biodiversity metric file note
Other
Not yet archived · Original link
Biodiversity Statutory metric calculation tool
Other
Not yet archived · Original link
Biodiversity survey and report
Report
Not yet archived · Original link
Committee Minutes
Other
Not yet archived · Original link
Committee Report
Report
Not yet archived · Original link
Cost Application
Other
Not yet archived · Original link
Councils Case - Questionnaire
Other
Not yet archived · Original link
Decision Notice
Decision
Not yet archived · Original link
Email exchange dated 13th August 2025 between Agent and Case Officer re: TPO tre
Other
Not yet archived · Original link
Environmental Health Protection comments
Consultee Response
Not yet archived · Original link
Grounds for Appeal
Other
Not yet archived · Original link
Grounds for Appeal - Appendicies 1 & 2
Other
Not yet archived · Original link
Interested party comment
Other
Not yet archived · Original link
Interested party comment
Other
Not yet archived · Original link
location plan
Drawing
Not yet archived · Original link
Objection
Other
Not yet archived · Original link
Objection
Other
Not yet archived · Original link
Objection
Other
Not yet archived · Original link
Objection
Other
Not yet archived · Original link
Objection
Other
Not yet archived · Original link
Objection
Other
Not yet archived · Original link
Objection Comment
Other
Not yet archived · Original link
Objection comment
Other
Not yet archived · Original link
Objection Comment
Other
Not yet archived · Original link
Objection comment
Other
Not yet archived · Original link
P.03 Proposed Elevations 335c and 335d
Drawing
Not yet archived · Original link
P.05 Proposed elevations 337c
Drawing
Not yet archived · Original link
P.06 Proposed Block plan of the site
Drawing
Not yet archived · Original link
p.07 rev B Proposed landscaping details
Other
Not yet archived · Original link
P07a Proposed Landscaping details
Other
Not yet archived · Original link
Planning statement
Report
Not yet archived · Original link
Representation
Other
Not yet archived · Original link
Site Notice
Other
Not yet archived · Original link
Site Notice
Other
Not yet archived · Original link
Supplementary Report - Committee
Report
Not yet archived · Original link
Sustainable Development Officer
Consultee Response
Not yet archived · Original link
Waste Services
Other
Not yet archived · Original link

Have your say

Your comment matters. Councils must consider every representation that raises material planning considerations.

Write a comment