← Tonbridge and Malling Borough Council

Status

Registered Change of use
Received
20 Aug 2025
New homes
53

Full proposal

Change of use of land to create an extension to the existing holiday park to site an additional 53 holiday lodges and erection of an office, reception, shop, cafe and changing rooms

Documents

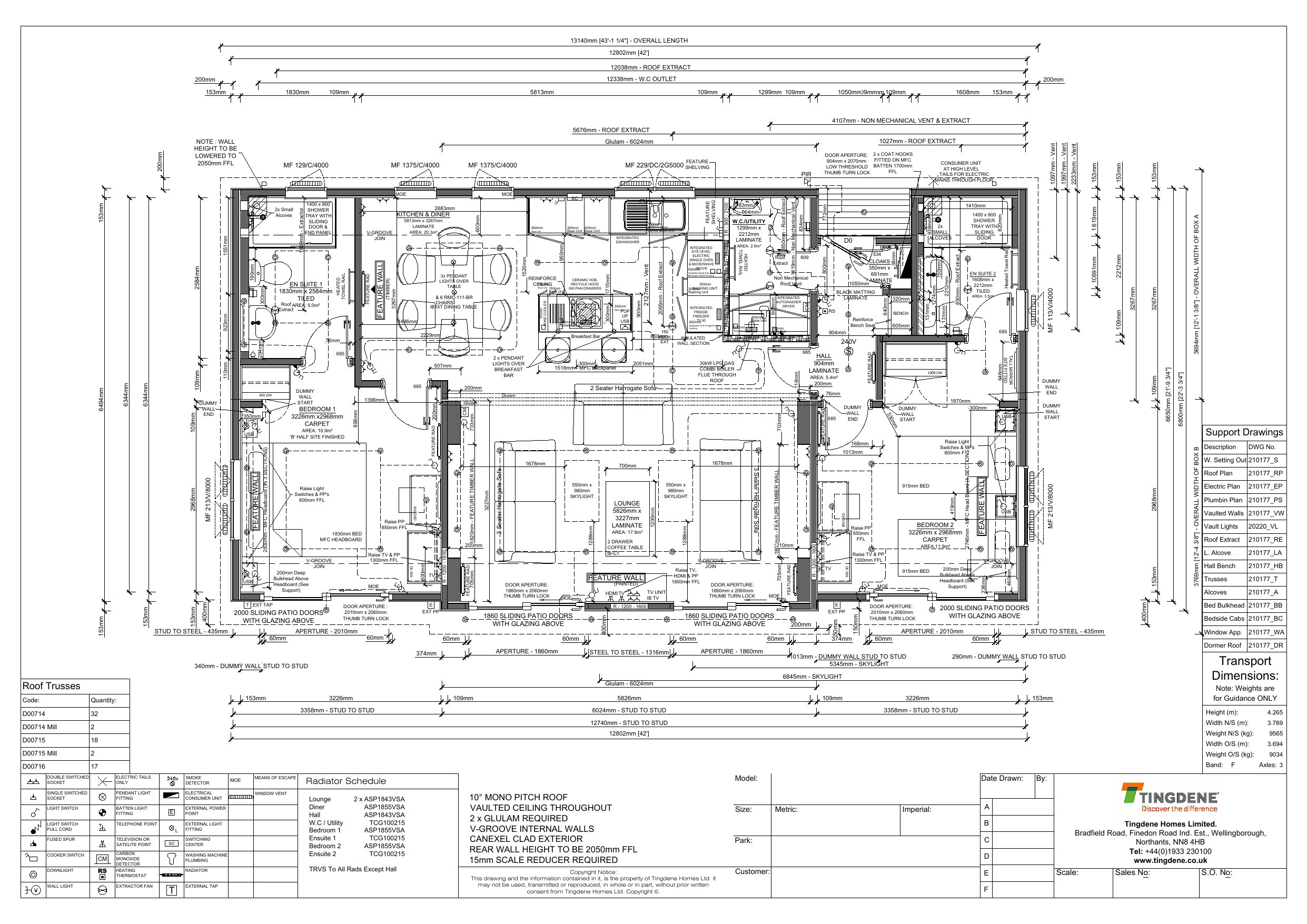
30780 1 Plans and elevations- Charlene Park Lodge
Drawing
Not yet archived · Original link
ADDITIONAL INFORMATION
Other
Not yet archived · Original link
ADDITIONAL INFORMATION
Other
Not yet archived · Original link
additional information Phase 1 Environmental Report Assessment Pt 2
Other
Not yet archived · Original link
additional information Phase 1 Environmental Report Assessment Pt 3
Other
Not yet archived · Original link
additional information Phase 1 Environmental Report Assessment Pt1
Other
Not yet archived · Original link
Agent response to comments
Other
Not yet archived · Original link
Agent/highway confirmation
Other
Not yet archived · Original link
Application Form - Without Personal Data
Application Form
Not yet archived · Original link
Biodiversity Net Gain assessment
Report
Not yet archived · Original link
BNG Metric
Report
Not yet archived · Original link
Constraints Plan
Report
Not yet archived · Original link
Constraints Plan
Report
Not yet archived · Original link
Design and access statement
Report
Not yet archived · Original link
DR-L-00005 Detailed planting plan
Drawing
Not yet archived · Original link
Drainage Strategy April 2025
Report
Not yet archived · Original link
Drainage Strategy October 2025
Report
Not yet archived · Original link
East Malling and Larkfield PC comments
Consultee Response
Not yet archived · Original link
Environmental Health Protection comments
Consultee Response
Not yet archived · Original link
Environmental Health Protection comments
Consultee Response
Not yet archived · Original link
EP.01 Proposed elevations- Site shop, reception, office and changing rooms
Drawing
Not yet archived · Original link
Figure 1 ZTV and viewpoints
Report
Not yet archived · Original link
Figure 2 Topography and hydrology
Report
Not yet archived · Original link
Figure 3 Landscape Character
Report
Not yet archived · Original link
Figure 4 Designations
Report
Not yet archived · Original link
Figure 5 Viewpoint 1
Report
Not yet archived · Original link
Geophysical survey report
Report
Not yet archived · Original link
Interested party comment
Other
Not yet archived · Original link
KCC Ecological Advice Service
Consultee Response
Not yet archived · Original link
KCC Ecological Advice Service comments
Consultee Response
Not yet archived · Original link
KCC Heritage Conservation
Consultee Response
Not yet archived · Original link
KCC LLFA (SUDS)
Consultee Response
Not yet archived · Original link
KCC LLFA (SUDS) Comments
Consultee Response
Not yet archived · Original link
Kent Highway Services
Consultee Response
Not yet archived · Original link
Kent Police
Consultee Response
Not yet archived · Original link
Landscape and visual appraisal
Report
Not yet archived · Original link
Letter from Southern Water
Report
Not yet archived · Original link
Natural England
Consultee Response
Not yet archived · Original link
Objection
Other
Not yet archived · Original link
Objection comment
Other
Not yet archived · Original link
Objection Comment
Other
Not yet archived · Original link
Objection comment
Other
Not yet archived · Original link
Phase 2 Environmental investigation
Report
Not yet archived · Original link
Phase 2 Environmental investigation- part 1
Report
Not yet archived · Original link
Phase 2 Environmental investigation- part 2
Report
Not yet archived · Original link
Preliminary Ecological Appraisal
Report
Not yet archived · Original link
Press Notice
Other
Not yet archived · Original link
Proposed elevations- Artisan Lodge
Drawing
Not yet archived · Original link
Proposed elevations- Lodge 3 Havana
Drawing
Not yet archived · Original link
Proposed floor plan and elevations- Lodge 1 Bella Vista
Drawing
Not yet archived · Original link
Proposed floor plan and elevations- Lodge 2 Casa di Lusso
Drawing
Not yet archived · Original link
Proposed floor plan- Artisan Lodge
Drawing
Not yet archived · Original link
Proposed scope of works
Report
Not yet archived · Original link
Site Notice
Other
Not yet archived · Original link
Southern Water Services
Consultee Response
Not yet archived · Original link
Southern Water Services comments
Consultee Response
Not yet archived · Original link
Strategic Economic Regeneration Manager
Consultee Response
Not yet archived · Original link
Test results table- SOM 1
Report
Not yet archived · Original link
Test results table- SOM 6
Report
Not yet archived · Original link
Transport assessment
Report
Not yet archived · Original link

Have your say

Your comment matters. Councils must consider every representation that raises material planning considerations.

Write a comment