← Torfaen County Borough Council
26/P/0033/HH
Torfaen County Borough Council
Status
Awaiting decision
House extension
Received
20 Jan 2026
New homes
0
Full proposal
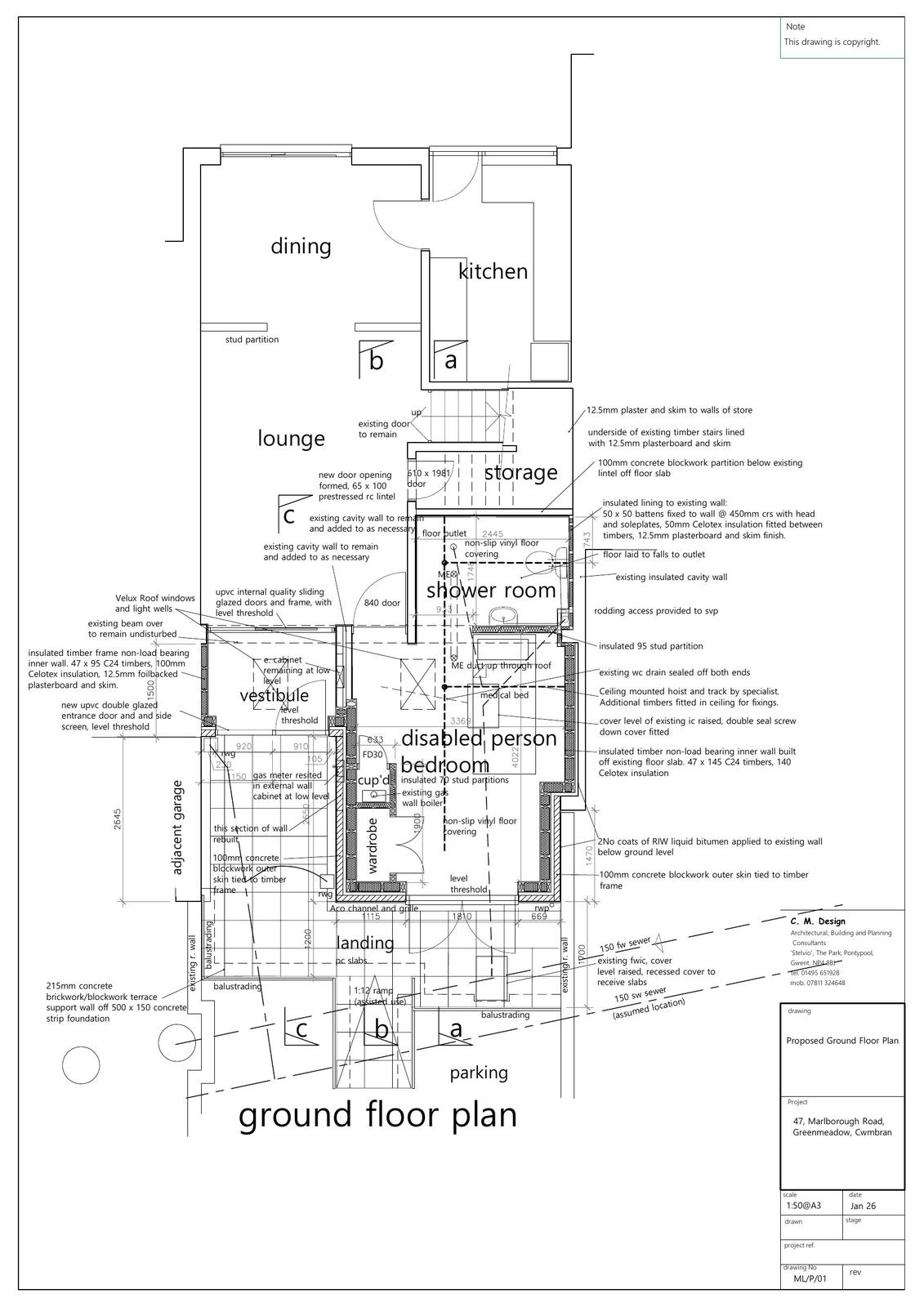
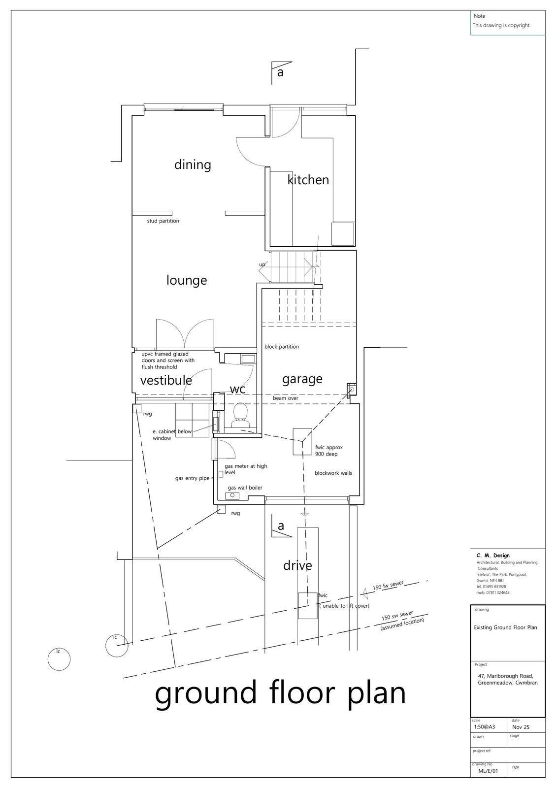
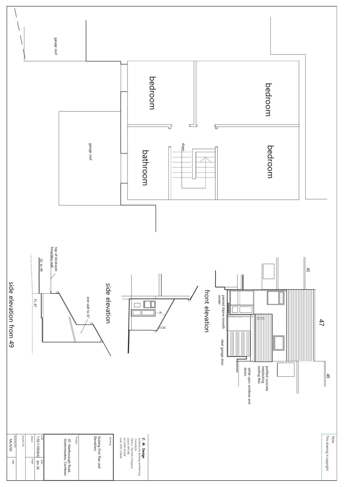
Front extension and conversion of garage and frontage for disabled person's use. Additional space added in garden area.
Documents
Have your say
Your comment matters. Councils must consider every representation that raises material planning considerations.