← Torfaen County Borough Council
26/P/0075/CEA
Torfaen County Borough Council
Status
Pending Consideration
House extension
Received
Last month
New homes
0
Full proposal
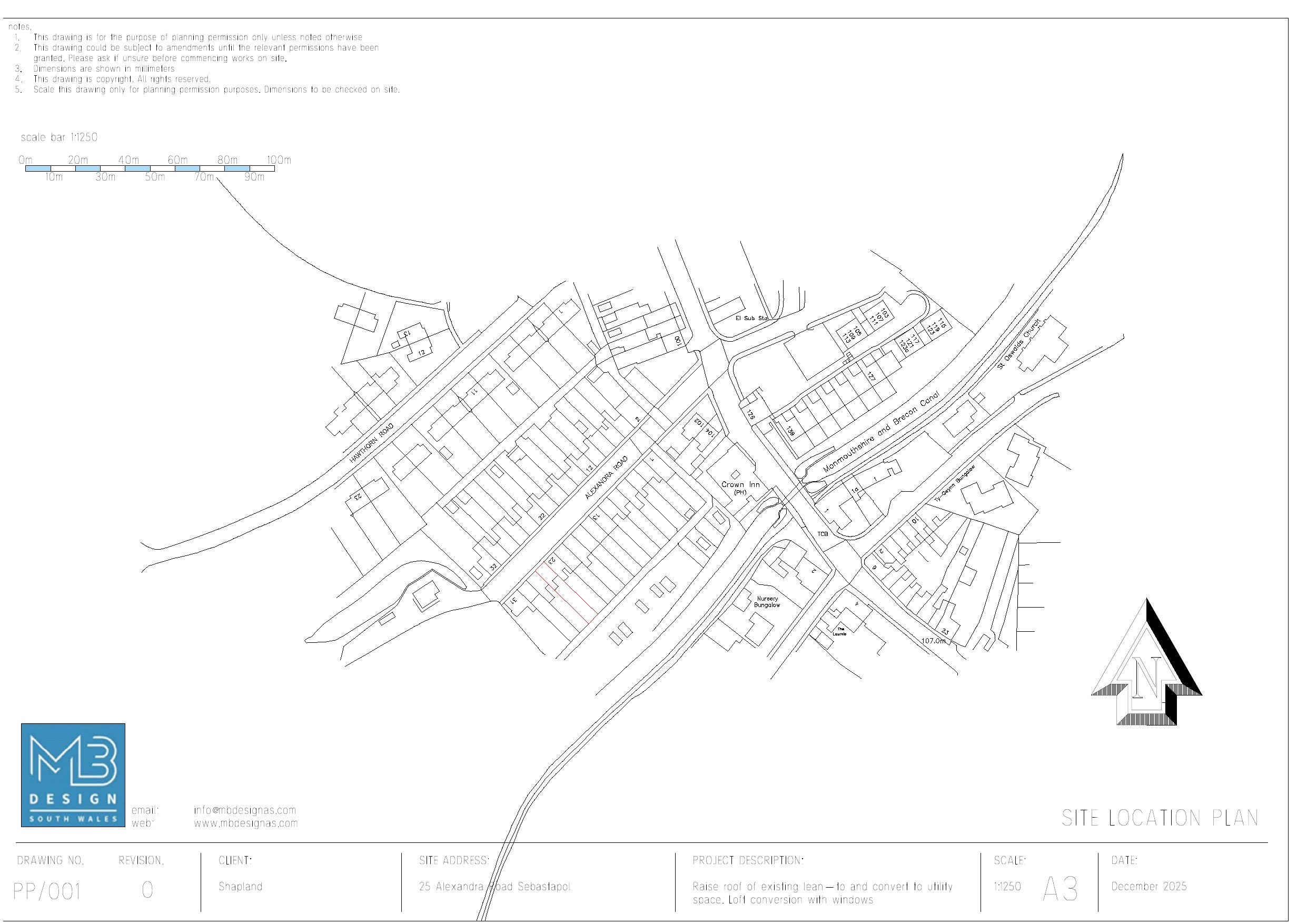
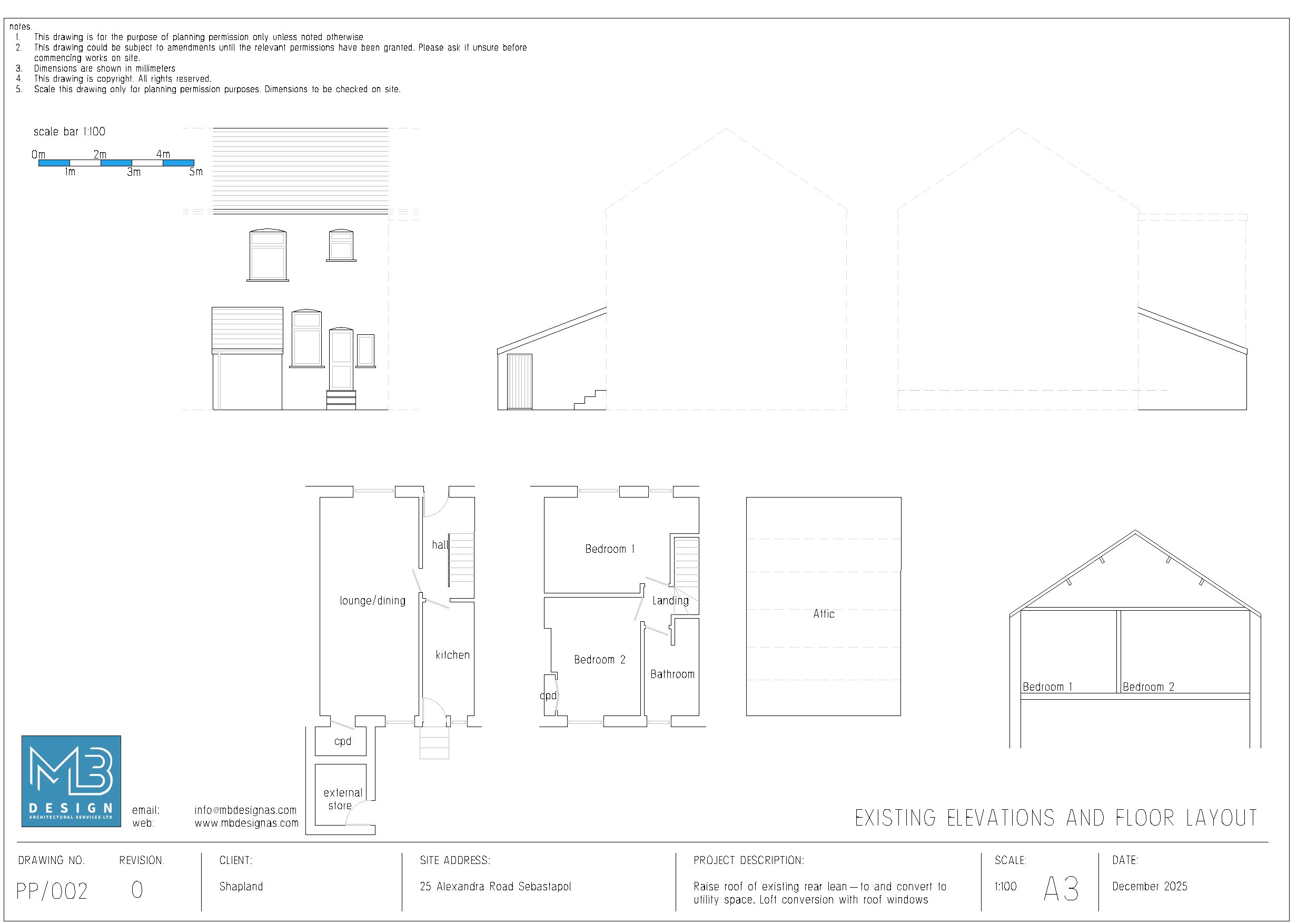
Proposed rear dormer extension and loft conversion, raise roof of rear projection and alterations to rear fenestration
Documents
Have your say
Your comment matters. Councils must consider every representation that raises material planning considerations.