← Torfaen County Borough Council

Status

Pending Consideration House extension
Received
Last month
New homes
0

Full proposal

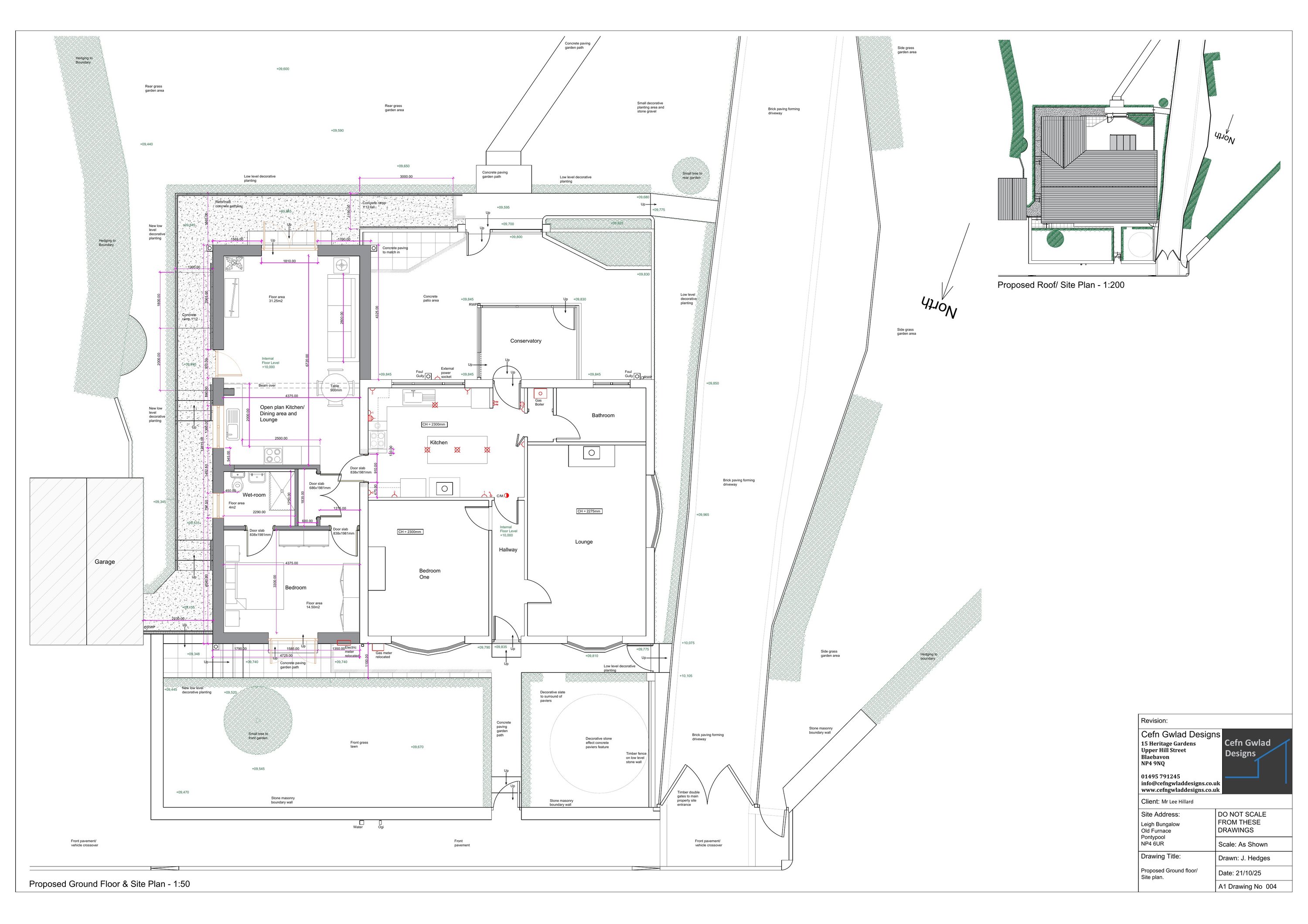
Proposed single storey side and rear extension to provide granny annex with external path and alterations to dwelling including re-roofing and new render finish

Documents

A SUMMARY OF THE ATTACHMENTS IN THE PROPOSAL
Other
Not yet archived · Original link
APPLICATION FORM - WITHOUT PERSONAL DATA
Forms
Not yet archived · Original link
EXISTING ELEVATIONS - DRAWING NO 002
Drawing
Not yet archived · Original link
EXISTING LOCATION PLAN
Drawing
Not yet archived · Original link
HOW THE FEE WAS CALCULATED
Other
Not yet archived · Original link
PROPOSED ELEVATIONS - DRAWING NO 005
Drawing
Not yet archived · Original link
PROPOSED LOCATION PLAN
Drawing
Not yet archived · Original link

Have your say

Your comment matters. Councils must consider every representation that raises material planning considerations.

Write a comment