← Torfaen County Borough Council
26/P/0106/HH
Torfaen County Borough Council
Status
Pending Consideration
House extension
Received
Last month
New homes
0
Full proposal
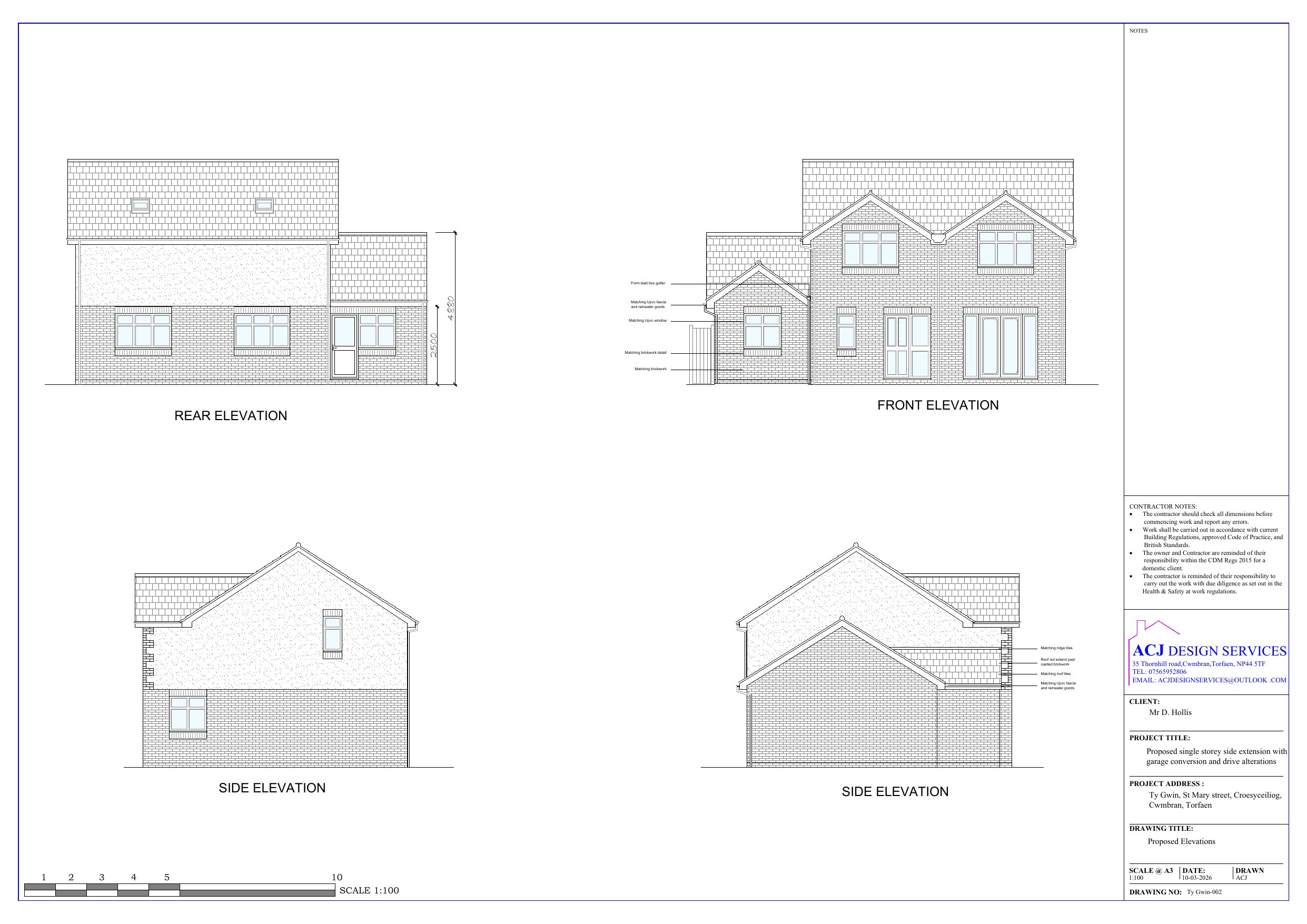
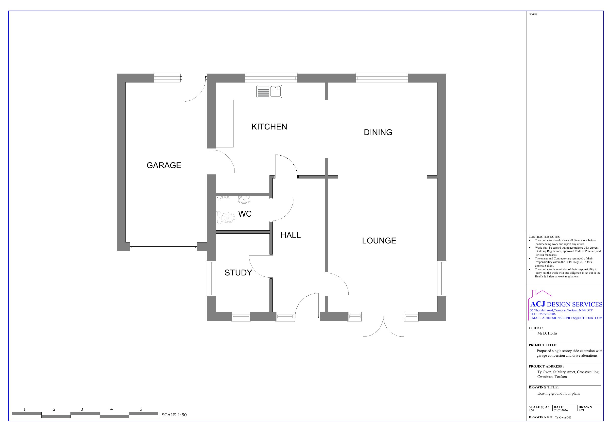
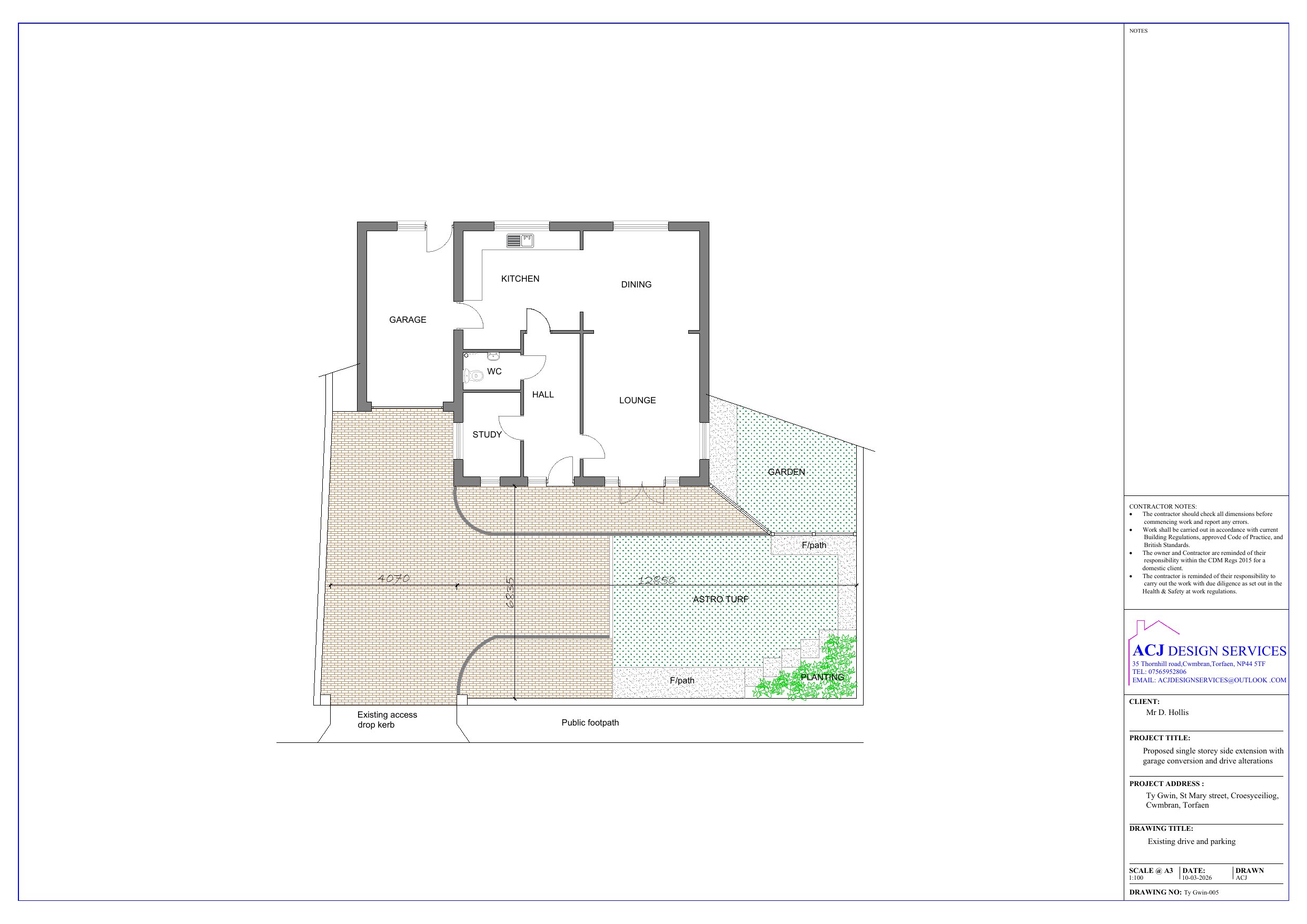
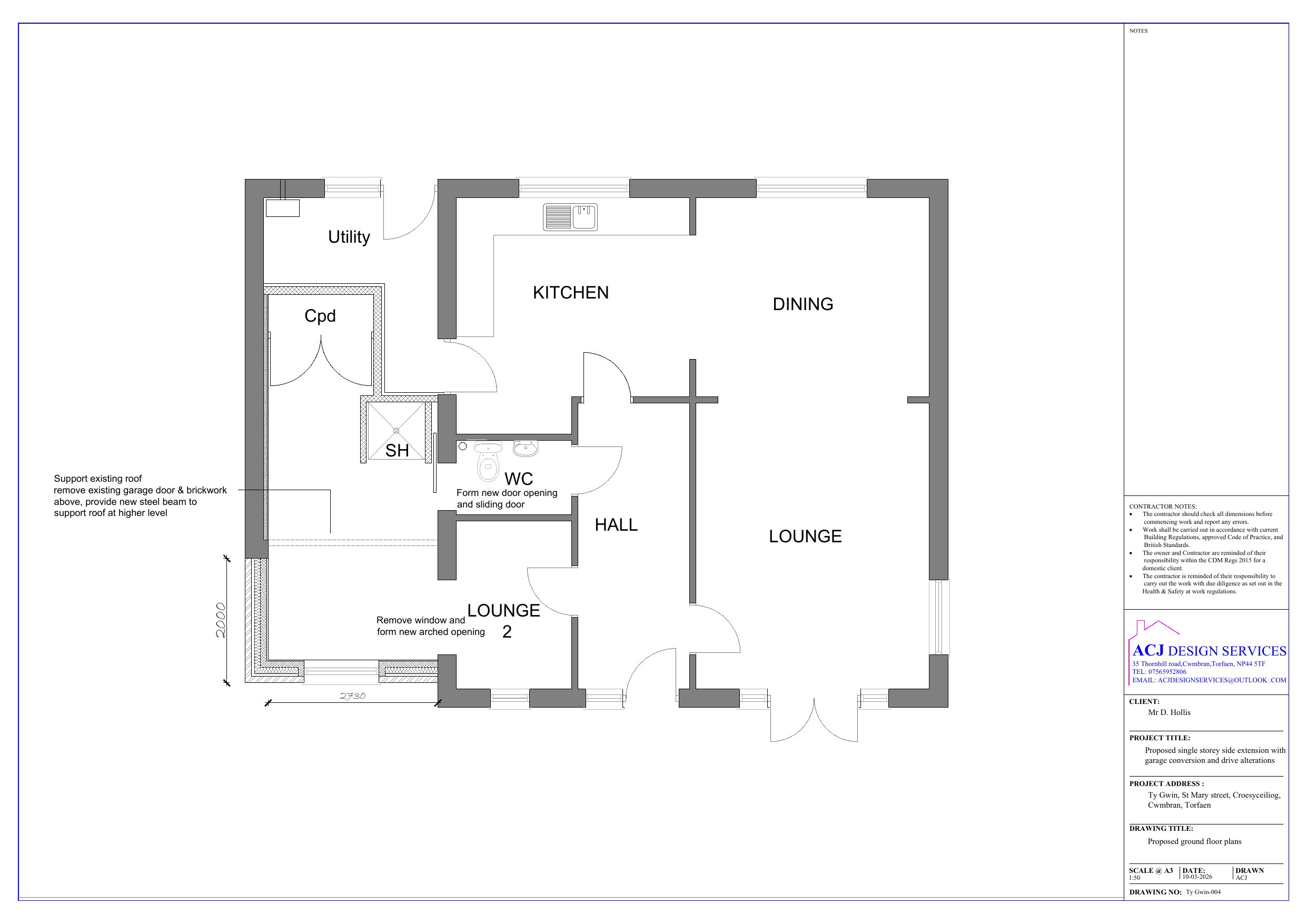
Proposed single storey side extension with garage conversion and drive alterations
Documents
Have your say
Your comment matters. Councils must consider every representation that raises material planning considerations.