← Tower Hamlets

Status

Registered House extension
Received
Last month
New homes
0

Full proposal

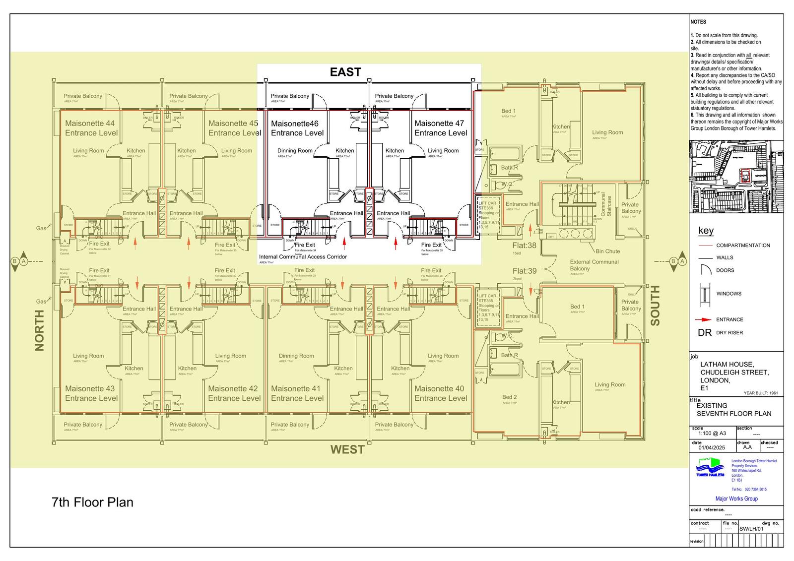
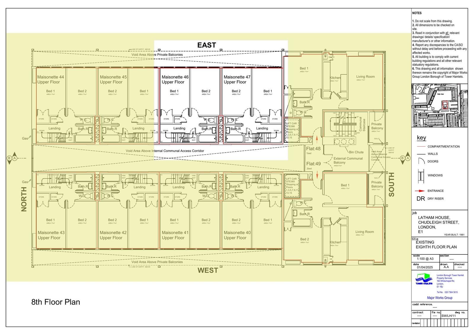
The proposed creation of new internal openings to connect 46 and 47 Latham House, and alterations to the internal layout of both properties, in order to consolidate the two dwellings into one residential dwelling.

Documents

Application Form
Archived · Original link
Current Plan
Archived · Original link
Current Plan
Archived · Original link
OS Extract
Archived · Original link
Current Plan
Archived · Original link
Current Plan
Archived · Original link
Current Plan
Archived · Original link

Have your say

Your comment matters. Councils must consider every representation that raises material planning considerations.

Write a comment