← Tower Hamlets

Status

Registered House extension
Received
Last month
New homes
0

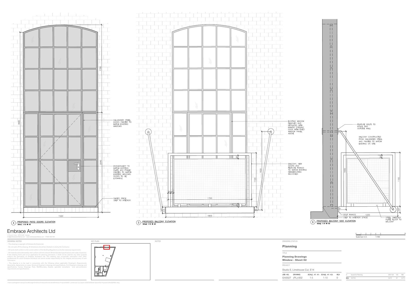
Full proposal

Enlargement of one existing window to create a new door and erection of new external balcony to an existing residential apartment, Studio 6, on the rear elevation of the existing building facing Limehouse Cut to match other existing balconies on the building.

Documents

Correspondence
Archived · Original link
Application Form
Archived · Original link
Design & Access Statement
Archived · Original link
Correspondence
Archived · Original link
OS Extract
Archived · Original link
Current Plan
Archived · Original link
Current Plan
Archived · Original link
Current Plan
Archived · Original link
Current Plan
Archived · Original link

Have your say

Your comment matters. Councils must consider every representation that raises material planning considerations.

Write a comment