← Tower Hamlets

Status

Registered Change of use
Received
Not recorded
New homes
0

Full proposal

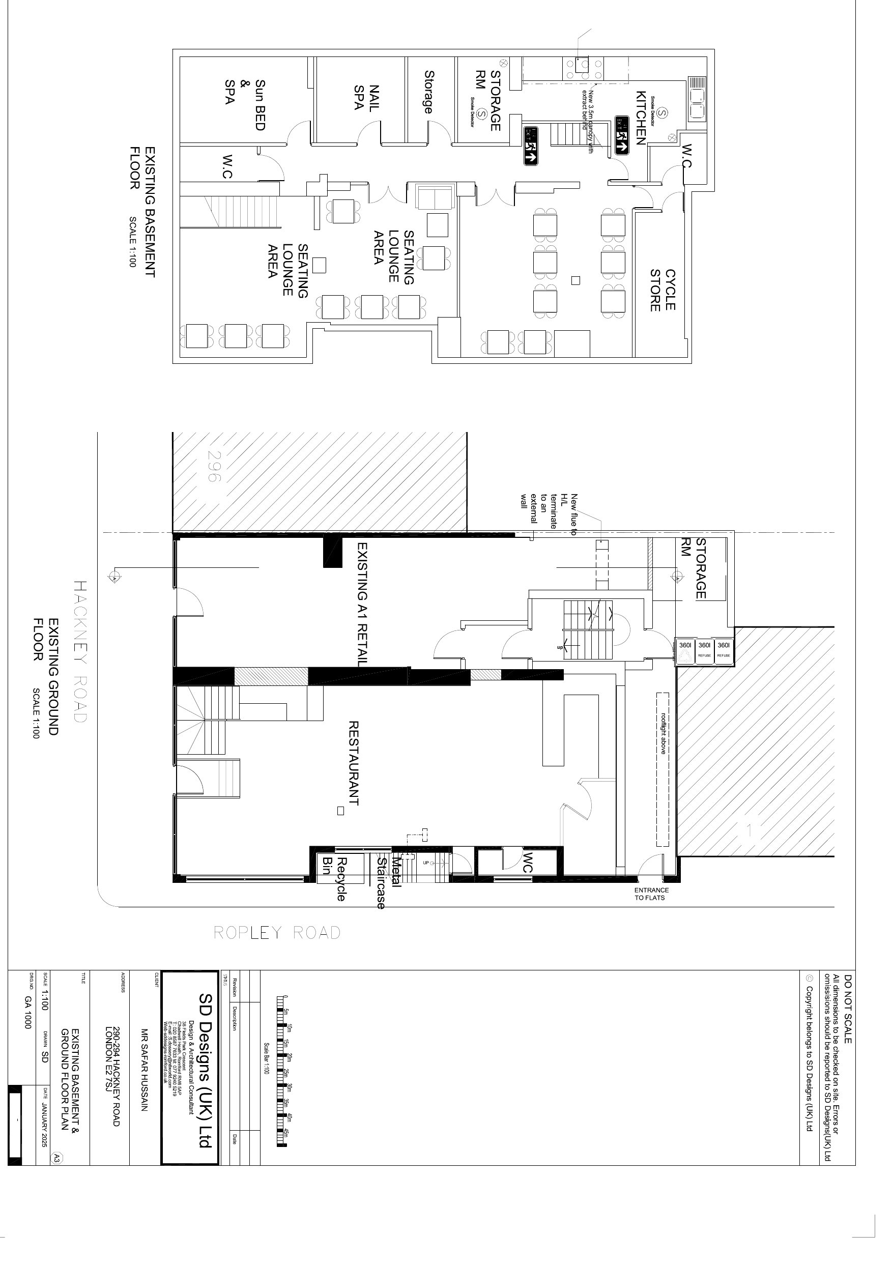
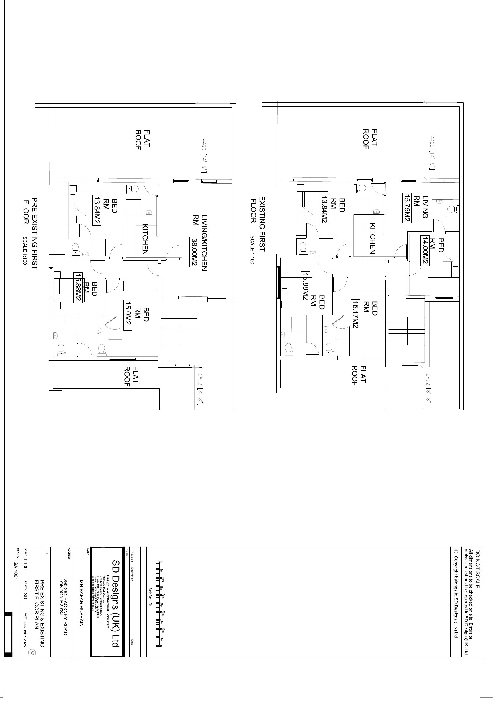
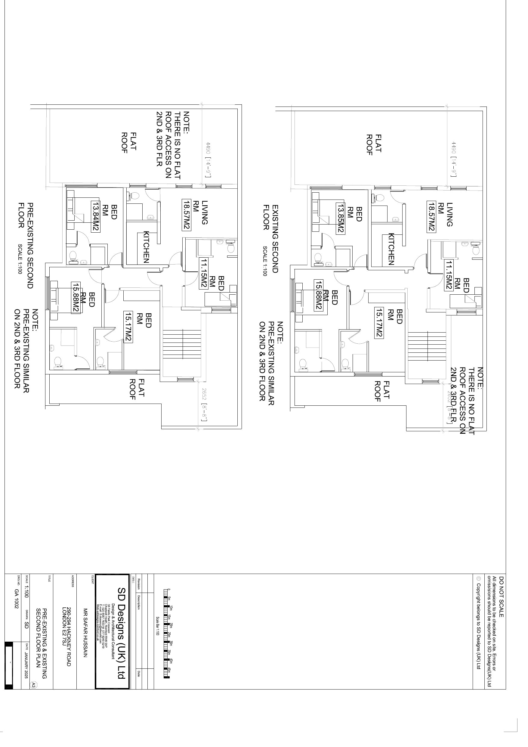
Part-retrospective change of use on first, second and third floors from Class C3 residential to a sui generis large HMO.

Documents

Application Form
Archived · Original link
Planning Statement
Archived · Original link
Application Form
Archived · Original link
Current Plan
Archived · Original link
Correspondence
Archived · Original link
Correspondence
Archived · Original link
Correspondence
Archived · Original link
Correspondence
Archived · Original link
Correspondence
Archived · Original link
Report
Archived · Original link

Have your say

Your comment matters. Councils must consider every representation that raises material planning considerations.

Write a comment