← Tower Hamlets

Status

Registered Change of use
Received
Not recorded
New homes
0

Full proposal

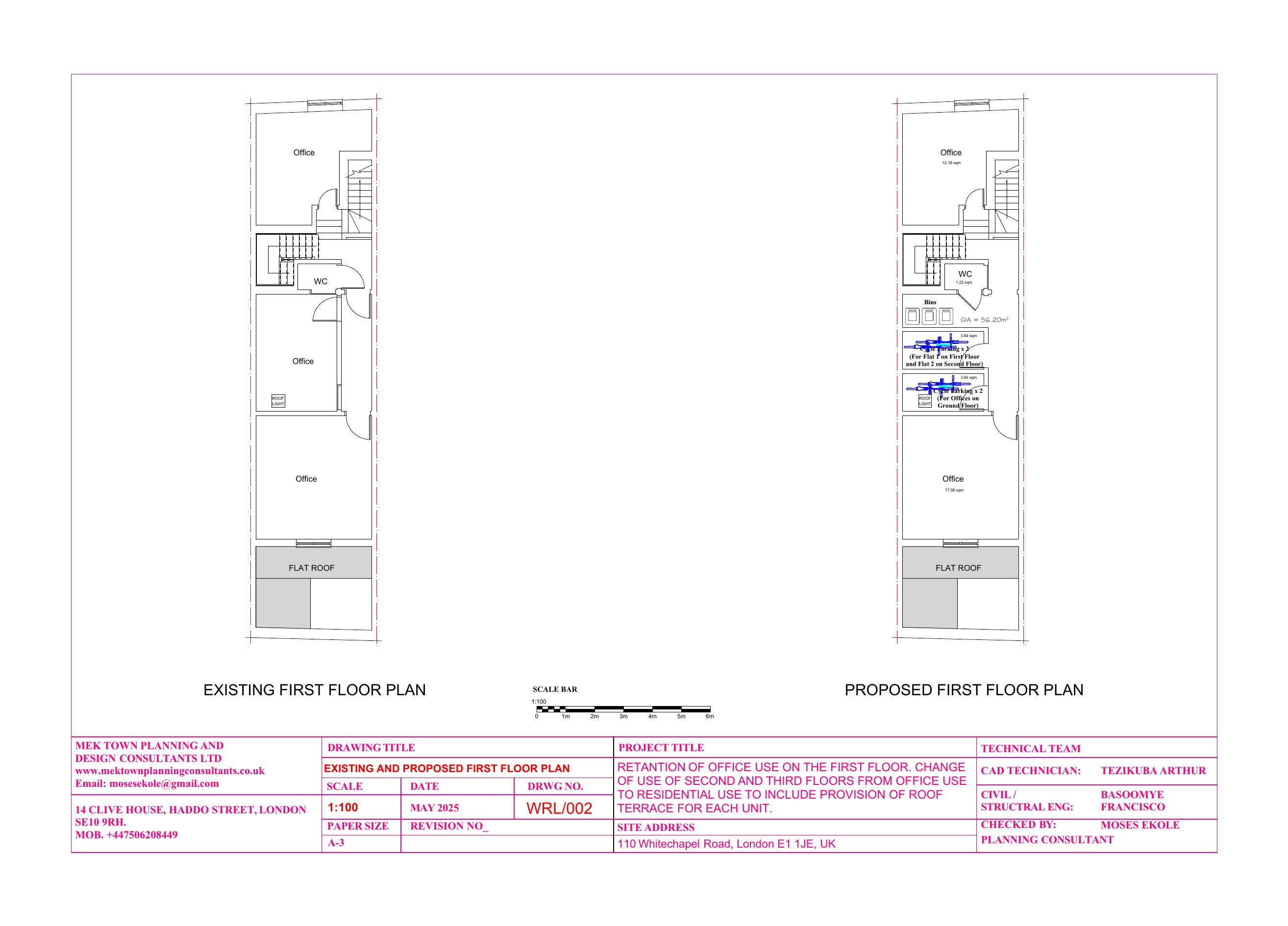
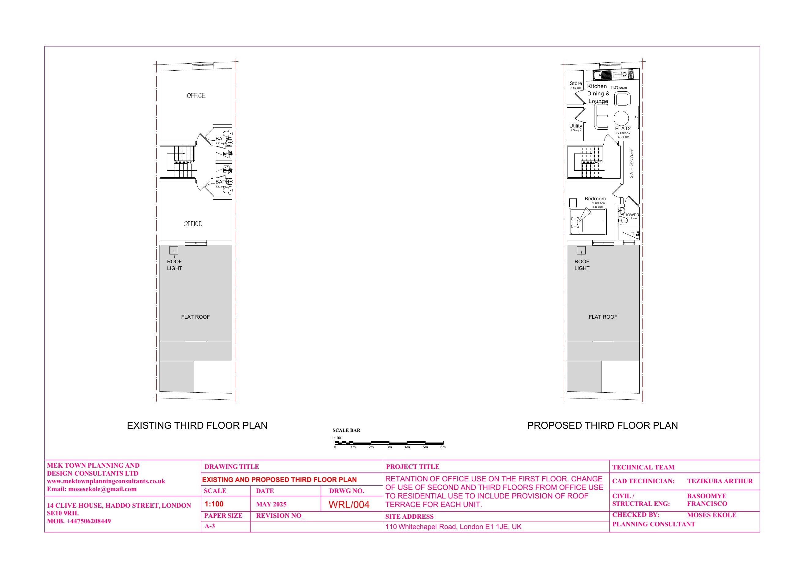
Alterations at first floor to provide cycle parking and bin storage. Change of use of the second and third floors from office (Class E) to residential (Class C3) alongside associated alterations and the provision of a roof terrace at roof level.

Have your say

Your comment matters. Councils must consider every representation that raises material planning considerations.

Write a comment