← Tower Hamlets

Status

Registered House extension
Received
Not recorded
New homes
0

Full proposal

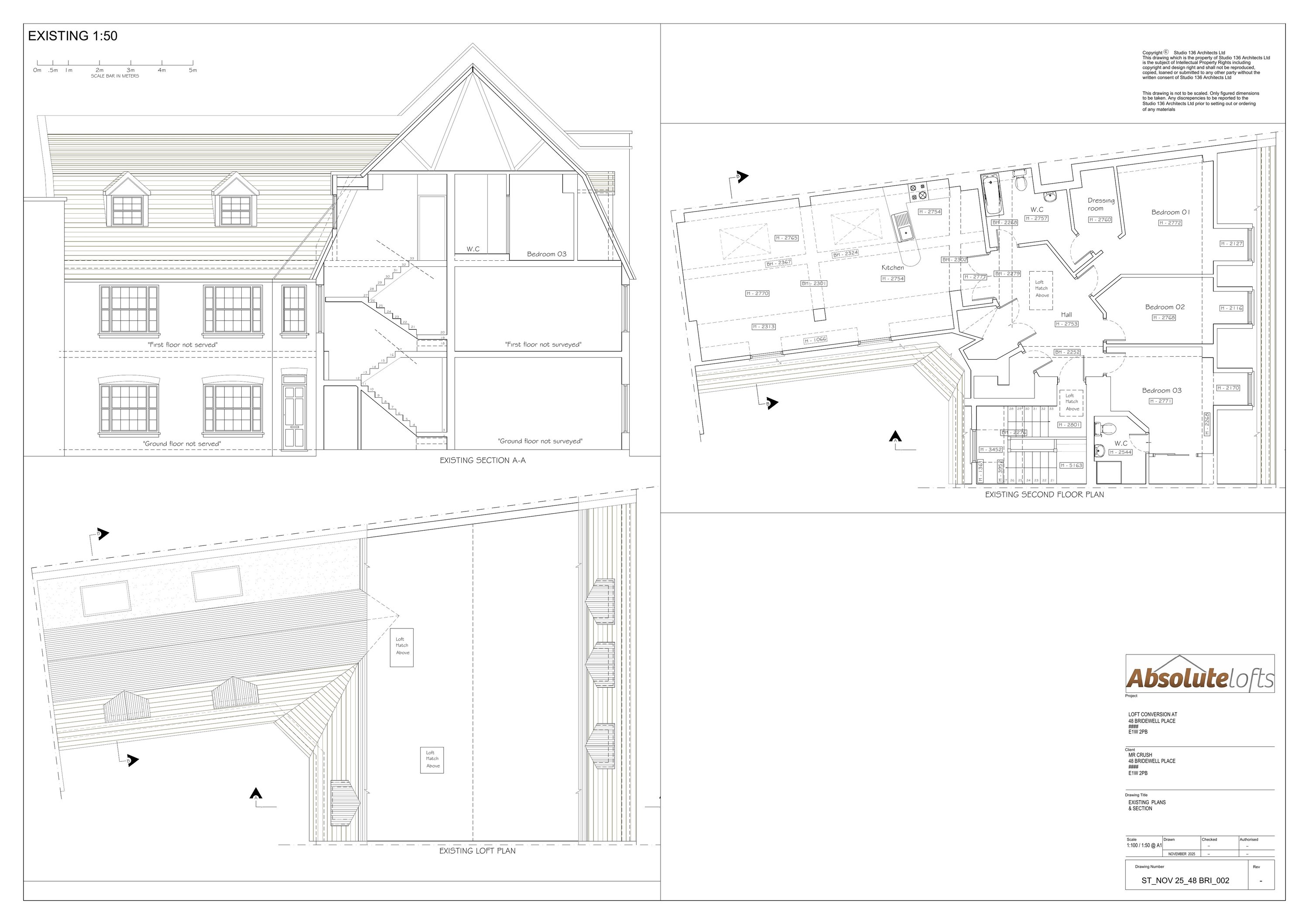
Proposed loft conversion with velux rooflights and rear dormer.

Documents

Application Form
Archived · Original link
Current Plan
Archived · Original link
Heritage Statement
Archived · Original link
Photo
Archived · Original link
Photo
Archived · Original link
Current Plan
Archived · Original link
Current Plan
Archived · Original link
OS Extract
Archived · Original link

Have your say

Your comment matters. Councils must consider every representation that raises material planning considerations.

Write a comment