← Tower Hamlets

Status

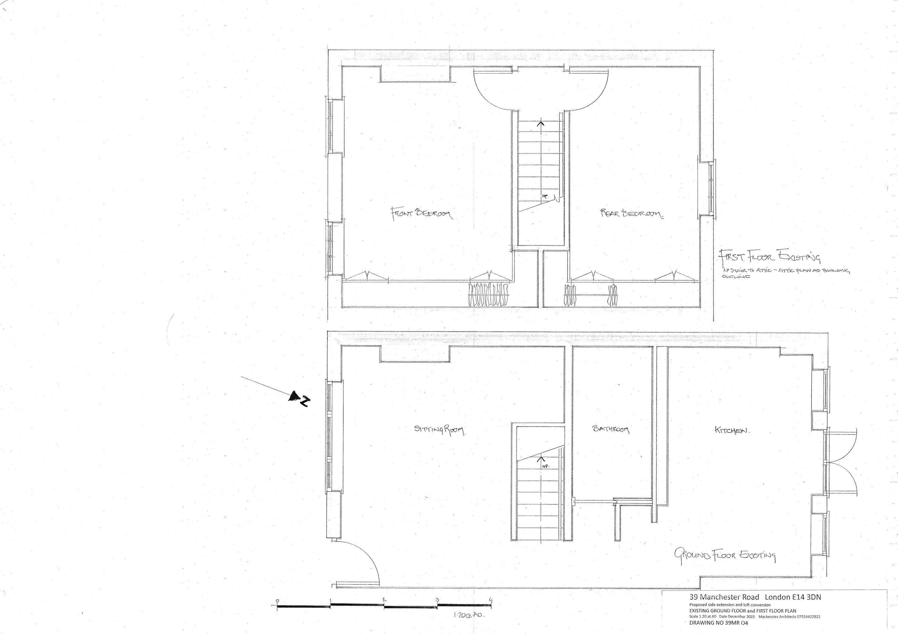
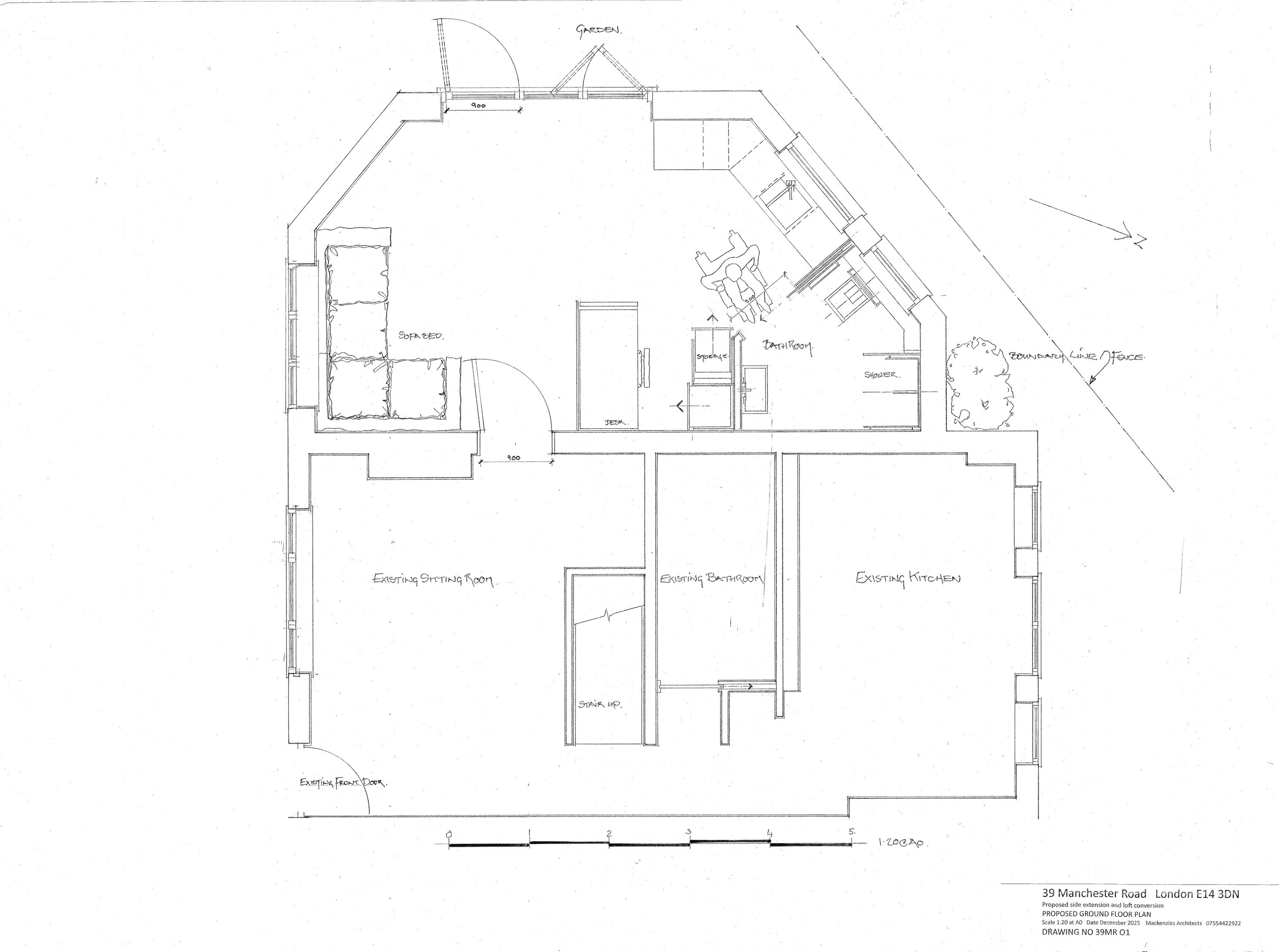
Registered House extension
Received
Not recorded
New homes
0

Full proposal

Creation of a side extension and loft conversion

Have your say

Your comment matters. Councils must consider every representation that raises material planning considerations.

Write a comment