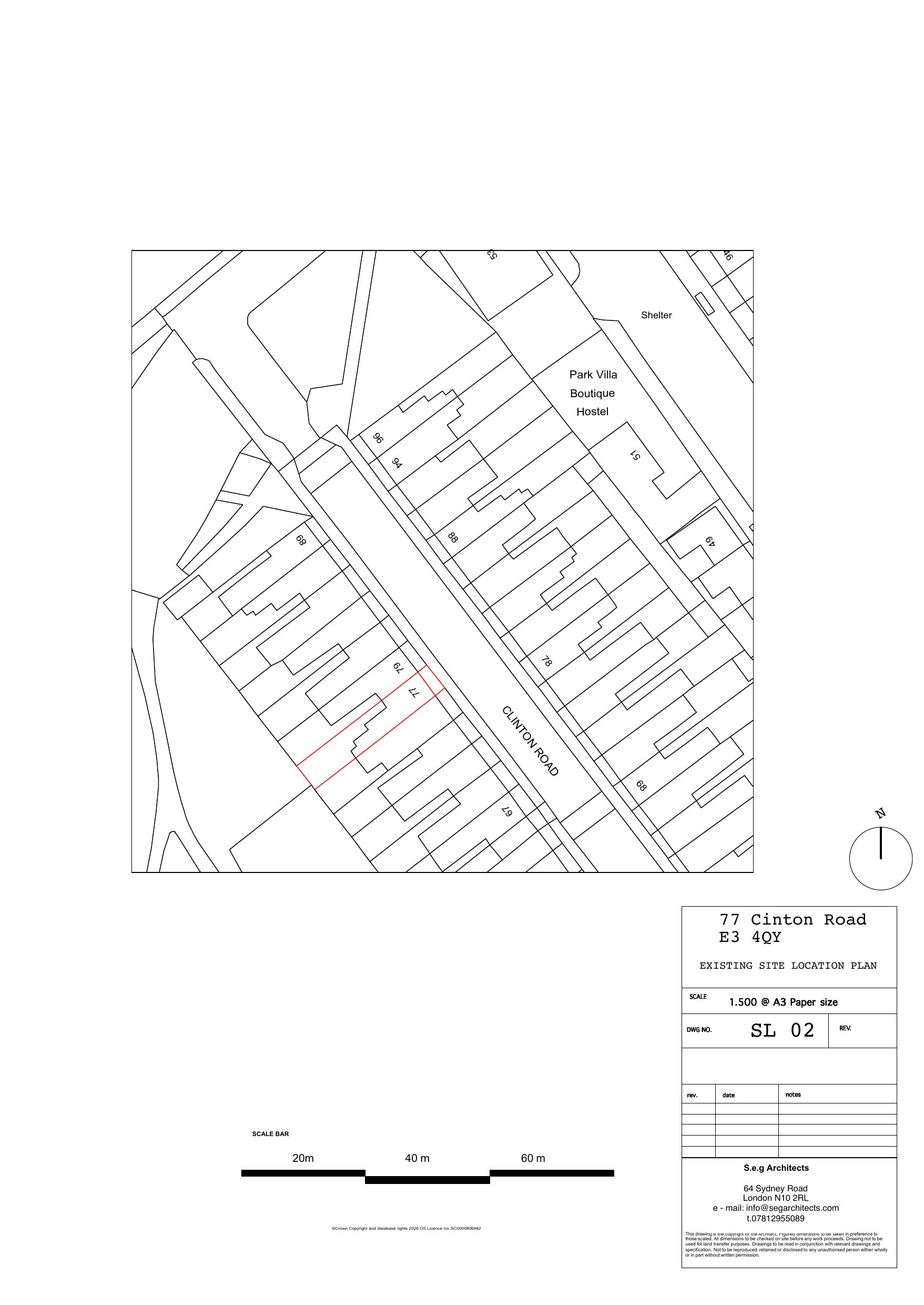
← Tower Hamlets

Status

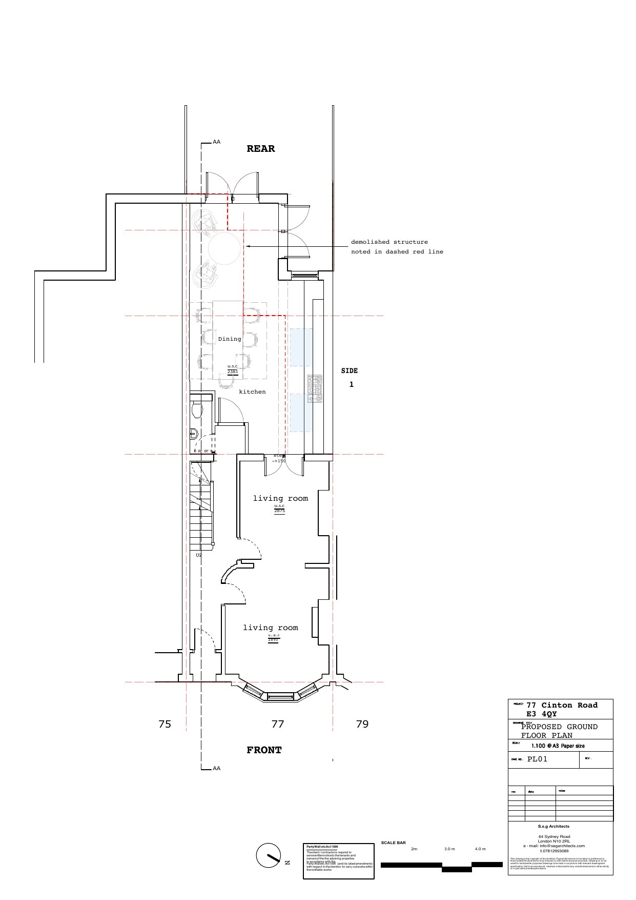
Registered House extension
Received
Not recorded
New homes
0

Full proposal

Proposed mansard roof conversion to the front and rear main. Rear extension, first floor extension.

Documents

AND HERITAGE STATMENT
Design & Access Statement
Not yet archived · Original link
Application Form
Application Form
Not yet archived · Original link
EXISTING FRONT AND REAR ELEVATIONS
Current Plan
Not yet archived · Original link
EXISTING PLANS
Current Plan
Not yet archived · Original link
EXISTING SECTION A-A
Current Plan
Not yet archived · Original link
EXISTING SIDE ELEVATION 1
Current Plan
Not yet archived · Original link
Current Plan
Archived · Original link
Current Plan
Archived · Original link
Flood Risk Assessment
Flood Risk Assessment
Not yet archived · Original link
Current Plan
Archived · Original link
Current Plan
Archived · Original link
SITE PHOTOS
Current Plan
Not yet archived · Original link

Have your say

Your comment matters. Councils must consider every representation that raises material planning considerations.

Write a comment