← Trafford Council

Status

Awaiting decision Change of use
Received
26 Jun 2024
New homes
0

Full proposal

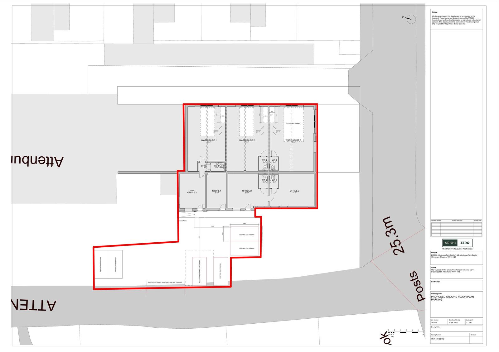
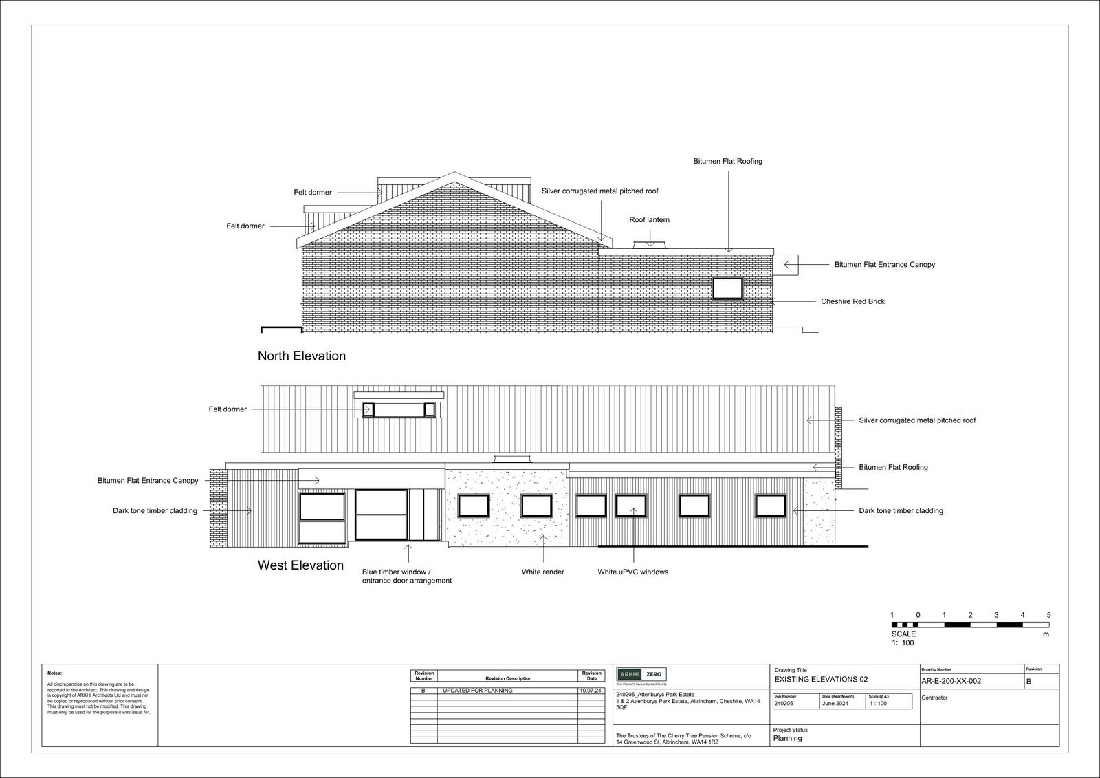
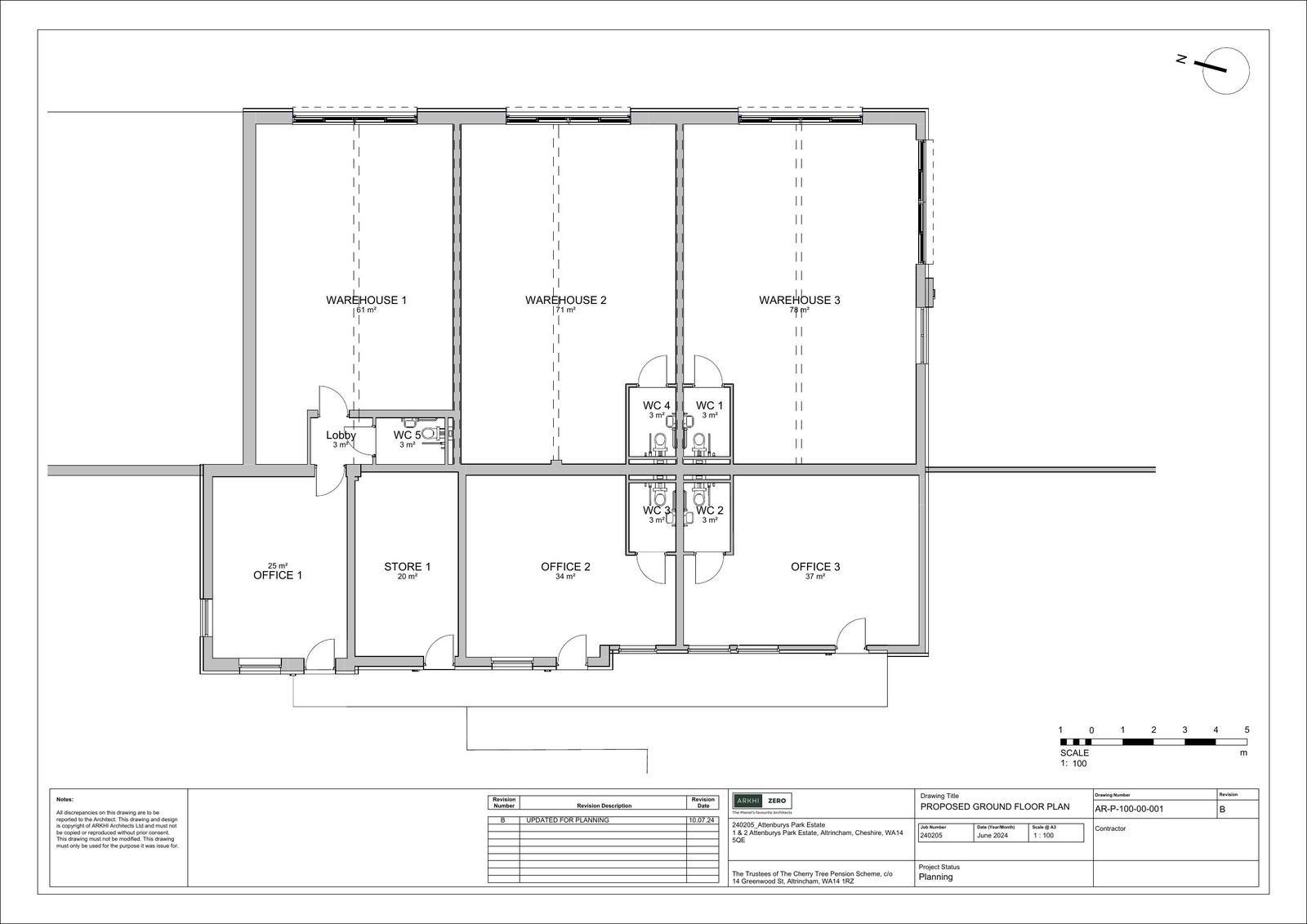
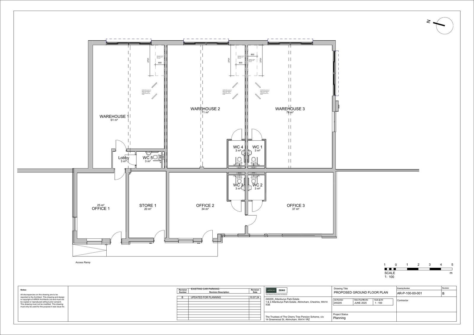
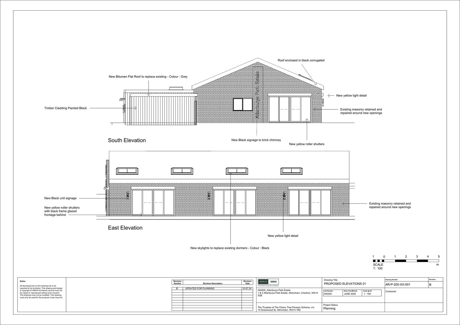
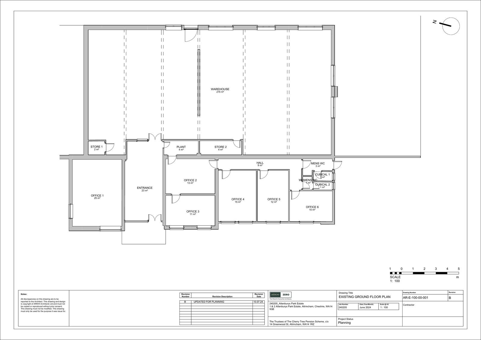
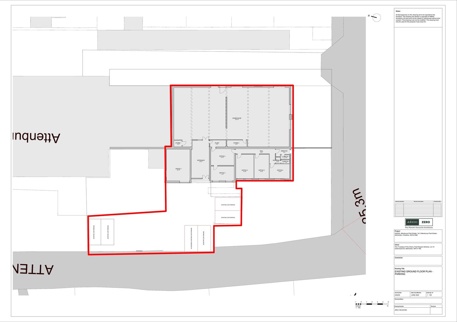
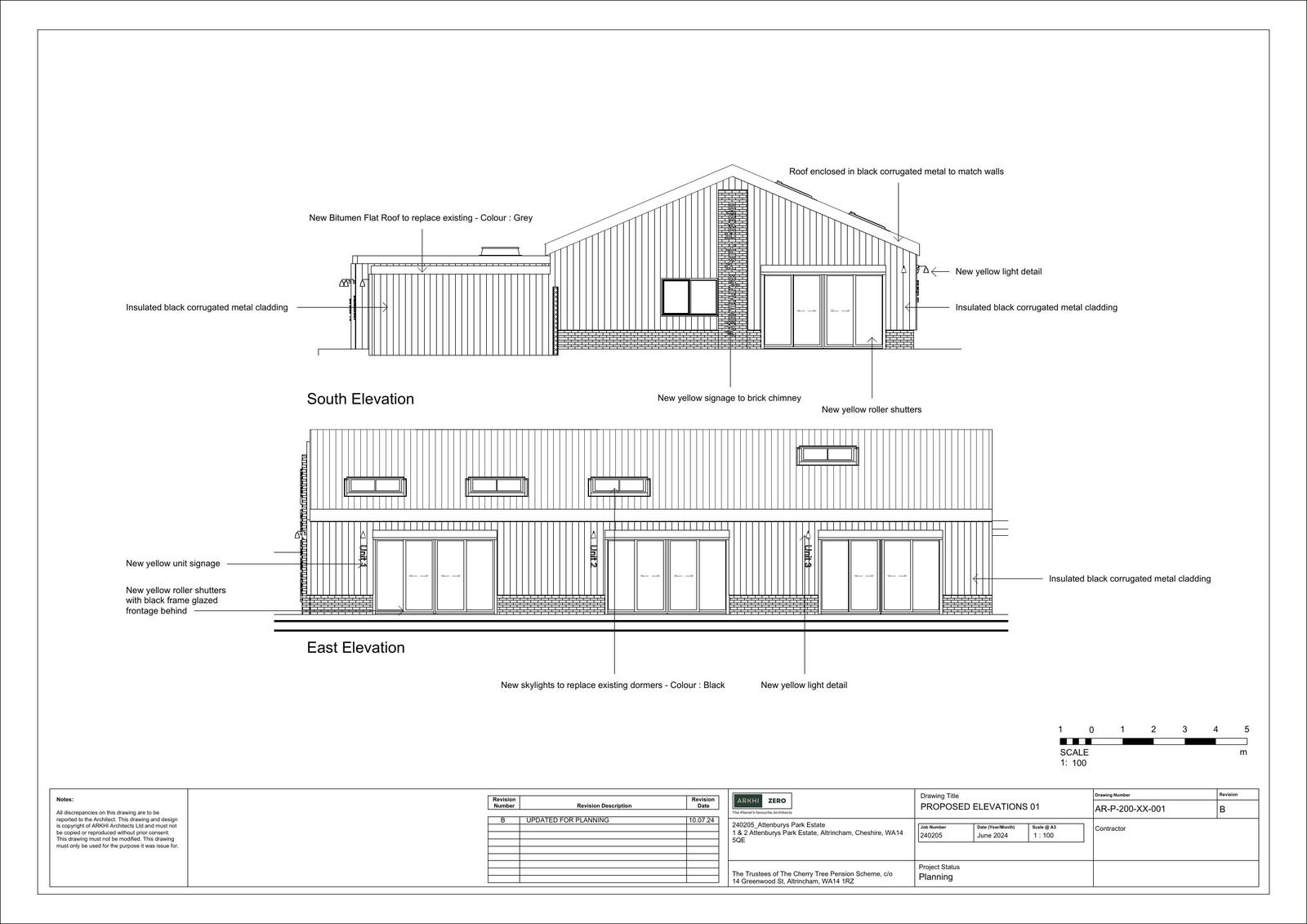
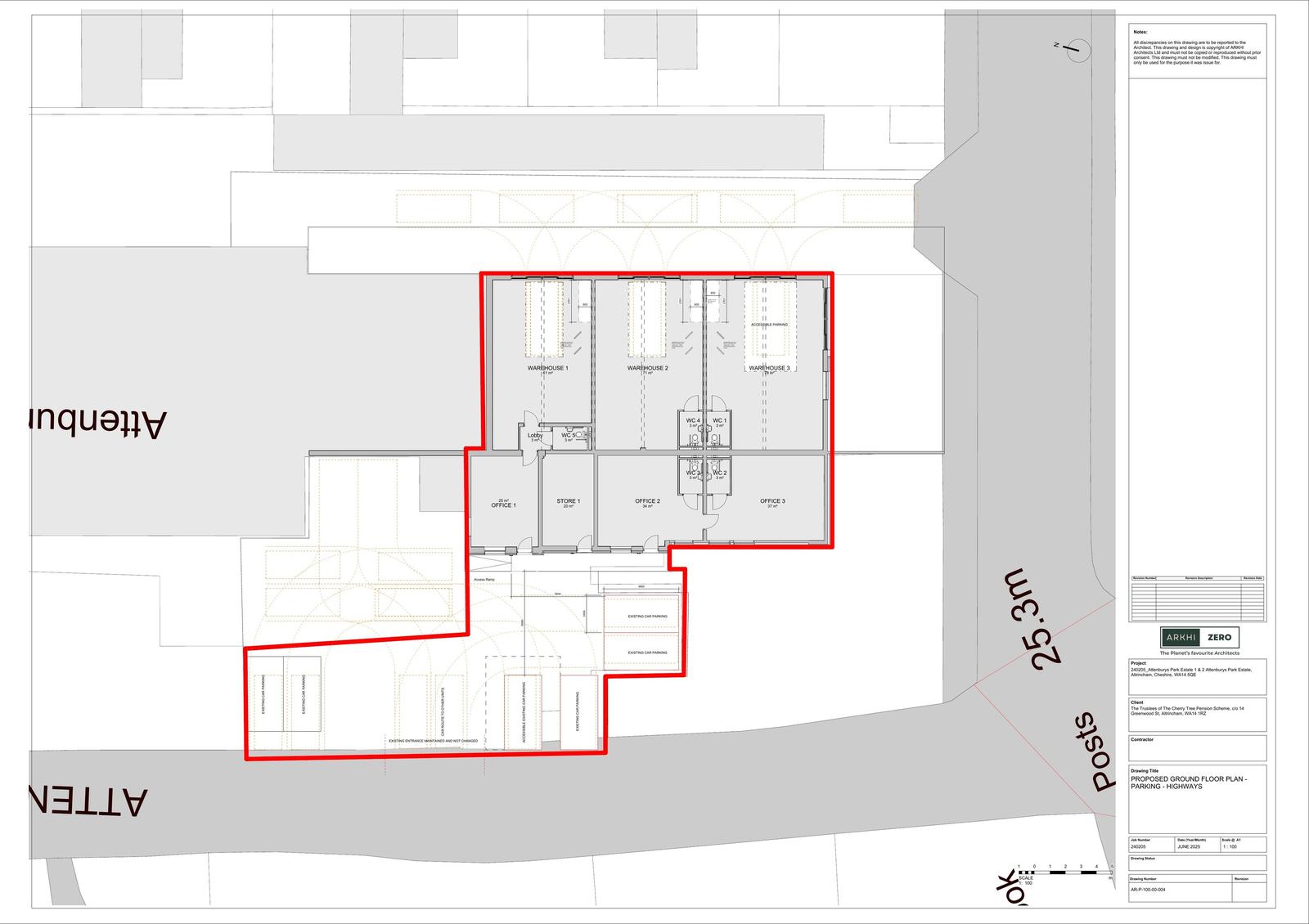
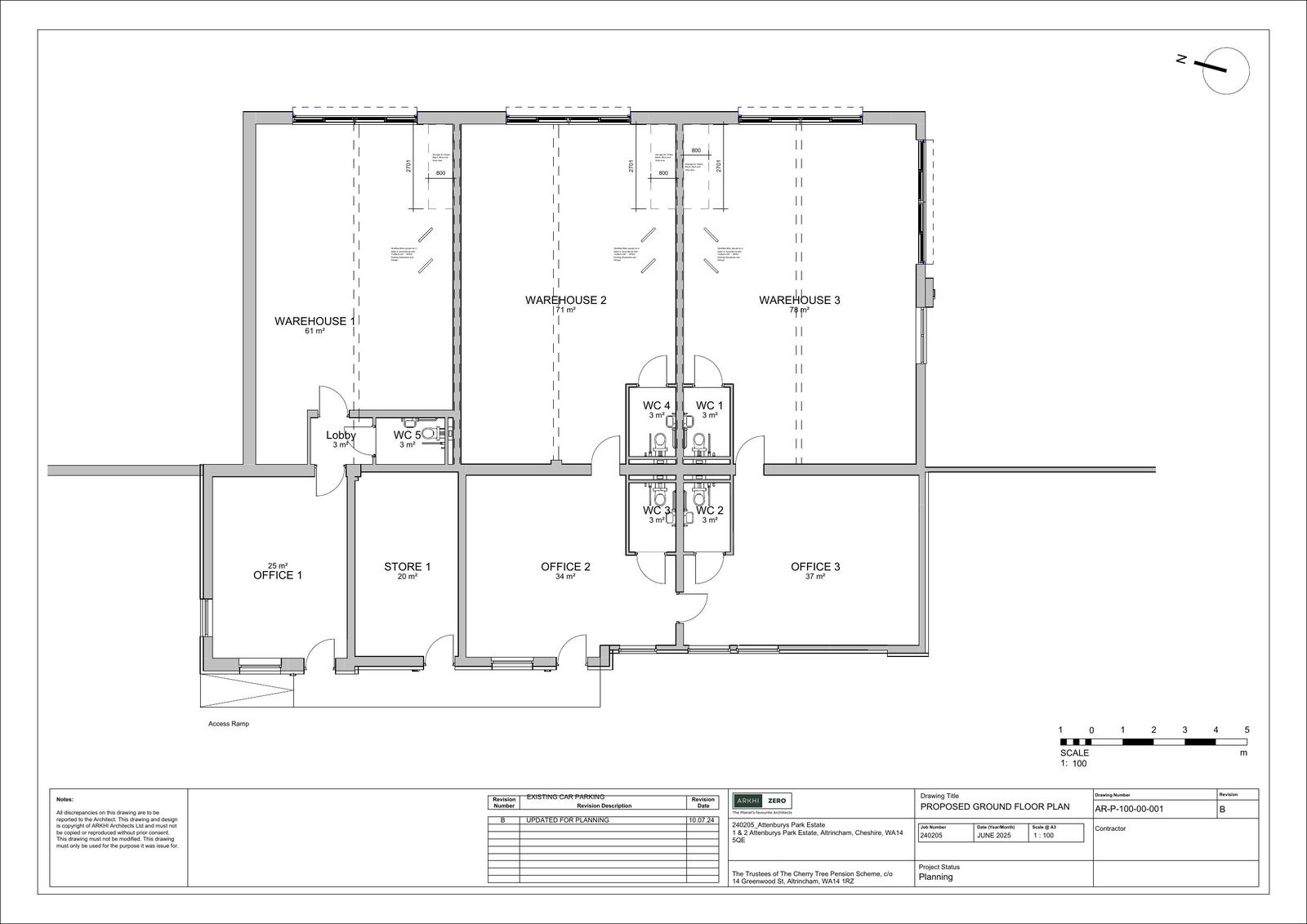
Recladding and alterations to elevations to existing building including removal of dormers and insertion of skylights and change of use from warehouse to 3 warehouse units, 3 offices and a store unit.

Documents

Application Form
Archived · Original link
Superseded Plans
Archived · Original link
Consultation
Archived · Original link
Consultation
Archived · Original link
Supporting Information
Archived · Original link
Superseded Plans
Archived · Original link
Superseded Plans
Archived · Original link
Amended Plans
Archived · Original link
Superseded Plans
Archived · Original link
Superseded Plans
Archived · Original link
Superseded Plans
Archived · Original link
Amended Plans
Archived · Original link
LHA
Consultation
Archived · Original link
Site Location
Archived · Original link
Superseded Plans
Archived · Original link
Amended Plans
Archived · Original link
Amended Plans
Archived · Original link
Amended Plans
Archived · Original link
Superseded Plans
Archived · Original link
Superseded Plans
Archived · Original link
Superseded Plans
Archived · Original link
Superseded Plans
Archived · Original link
Amended Plans
Archived · Original link
Superseded Plans
Archived · Original link
Superseded Plans
Archived · Original link
Superseded Plans
Archived · Original link
Superseded Plans
Archived · Original link
Superseded Plans
Archived · Original link
Representation
Archived · Original link
Representation
Archived · Original link
Representation
Archived · Original link
Representation
Archived · Original link
Representation
Archived · Original link
Representation
Archived · Original link
Representation
Archived · Original link
Representation
Archived · Original link
Representation
Archived · Original link
Representation
Archived · Original link
Representation
Archived · Original link
Representation
Archived · Original link
Representation
Archived · Original link
Representation
Archived · Original link
Representation
Archived · Original link
Representation
Archived · Original link
Representation
Archived · Original link
Representation
Archived · Original link
Representation
Archived · Original link
Representation
Archived · Original link
Representation
Archived · Original link
Representation
Archived · Original link
Representation
Archived · Original link
Representation
Archived · Original link
Representation
Archived · Original link
Representation
Archived · Original link
Representation
Archived · Original link
Representation
Archived · Original link
Representation
Archived · Original link
Representation
Archived · Original link
Representation
Archived · Original link
Representation
Archived · Original link
Representation
Archived · Original link
Representation
Archived · Original link
Representation
Archived · Original link
Representation
Archived · Original link
Superseded Plans
Archived · Original link
Weekly List
Archived · Original link

Have your say

Your comment matters. Councils must consider every representation that raises material planning considerations.

Write a comment