← Trafford Council

Status

Awaiting decision Change of use
Received
06 Jan 2025
New homes
-3

Full proposal

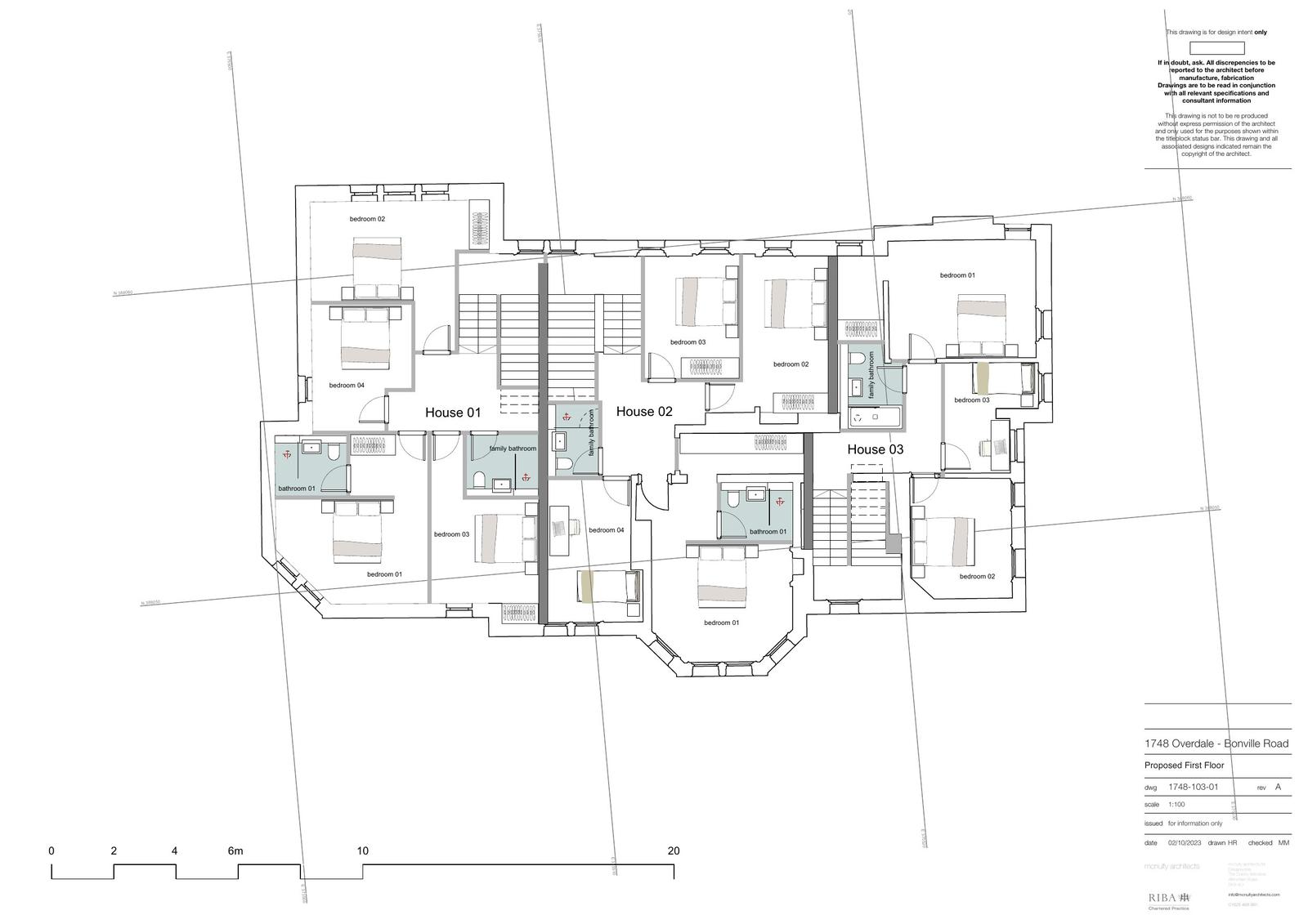
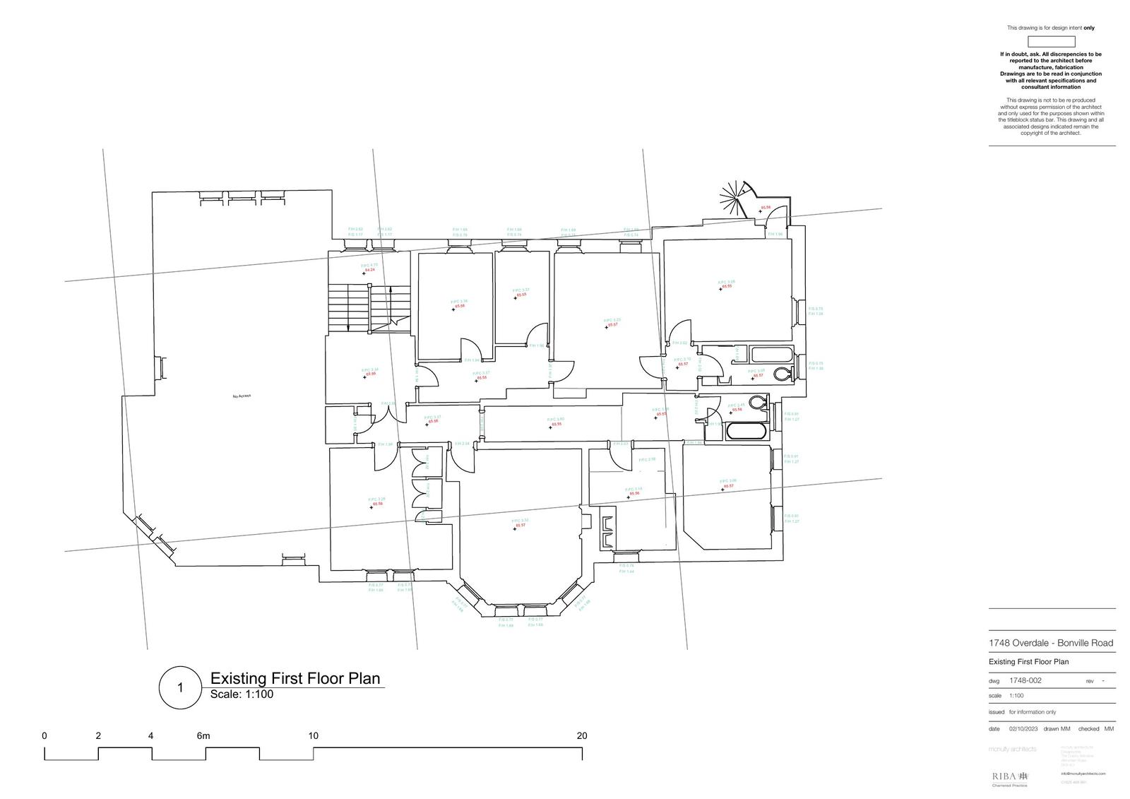
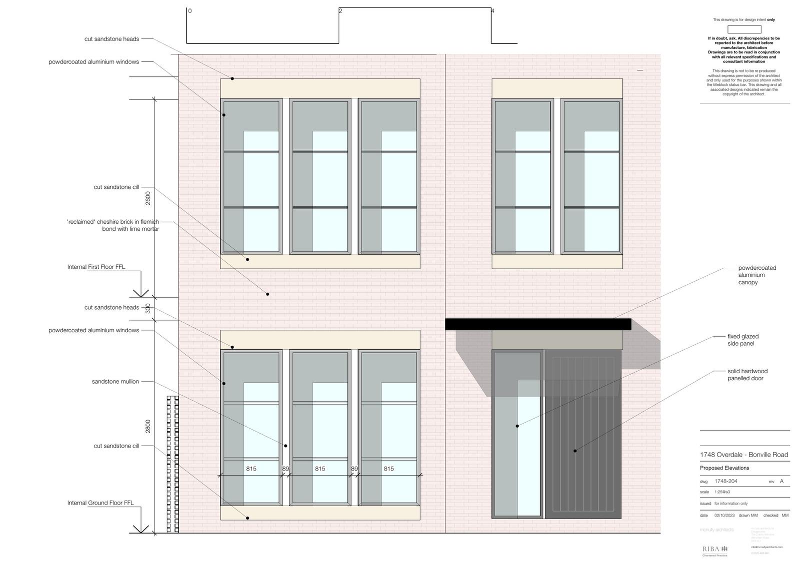
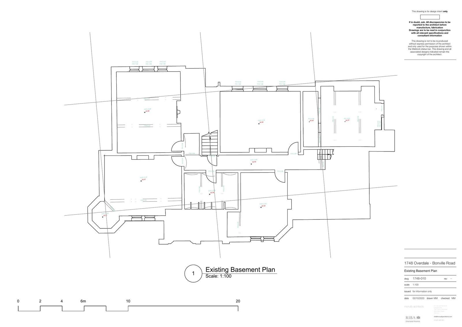
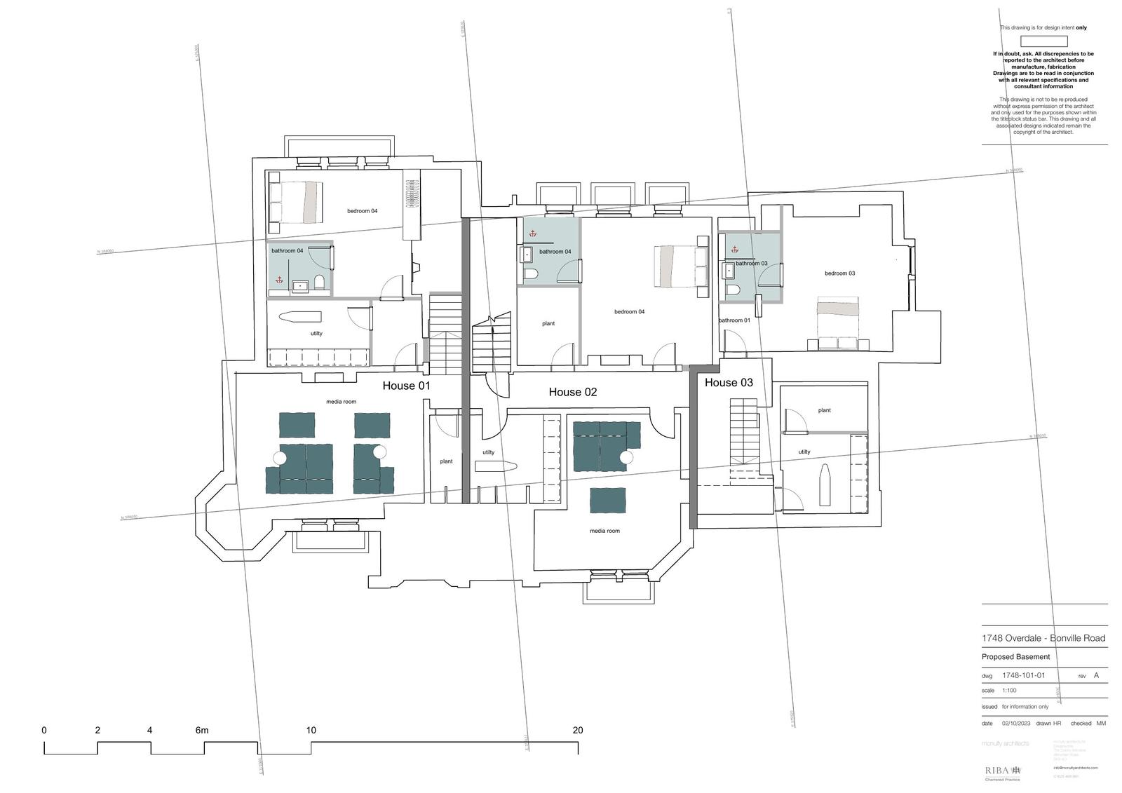
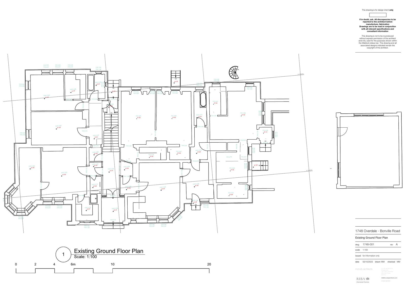
Conversion of existing 6no apartments into 3no dwellinghouses. External alterations to include removal of fire escape, new external doors, re-instate basement windows, addition of lightwells and access steps, amended parking and landscaping.

Documents

Accommodation Schedule
Archived · Original link
Application Form
Archived · Original link
BNG METRIC
Biodiversity Net Gain Assessment
Not yet archived · Original link
Biodiversity Net Gain Assessment
Archived · Original link
Supporting Information
Archived · Original link
Consultation
Archived · Original link
CONDITION ASSESSMENT SHEETS
Biodiversity Net Gain Assessment
Not yet archived · Original link
Design and Access Statement
Archived · Original link
Amended Plans
Archived · Original link
Amended Plans
Archived · Original link
Facade Design Analysis
Archived · Original link
Heritage Statement
Archived · Original link
Site Location
Archived · Original link
Environmental Statement
Archived · Original link
Plans
Archived · Original link
Amended Plans
Archived · Original link
Amended Plans
Archived · Original link
Amended Plans
Archived · Original link
Amended Plans
Archived · Original link
Amended Plans
Archived · Original link
Amended Plans
Archived · Original link
Amended Plans
Archived · Original link
Amended Plans
Archived · Original link
Amended Plans
Archived · Original link
Representation
Archived · Original link
Representation
Archived · Original link
Representation
Archived · Original link
Representation
Archived · Original link
Representation
Archived · Original link
REP - 3A DORSET ROAD
Representation
Not yet archived · Original link
Representation
Archived · Original link
Representation
Archived · Original link
Representation
Archived · Original link
Representation
Archived · Original link
Representation
Archived · Original link
Representation
Archived · Original link
Plans
Archived · Original link
Tree Survey
Archived · Original link
Weekly List
Archived · Original link

Have your say

Your comment matters. Councils must consider every representation that raises material planning considerations.

Write a comment