← Trafford Council

Status

Awaiting decision House extension
Received
03 Mar 2025
New homes
0

Full proposal

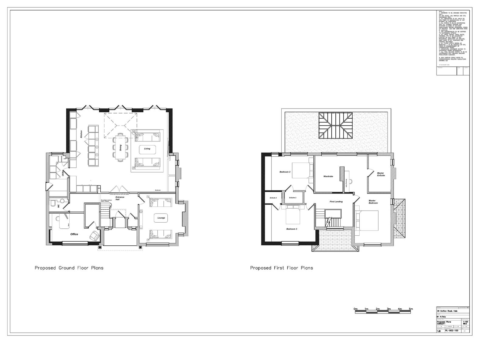
Alteration to front elevation, single storey rear extension, formation of front and rear dormers and front porch.

Documents

Application Form
Archived · Original link
Bat Survey
Archived · Original link
Plans
Archived · Original link
CIL Questions
Archived · Original link
Plans
Archived · Original link
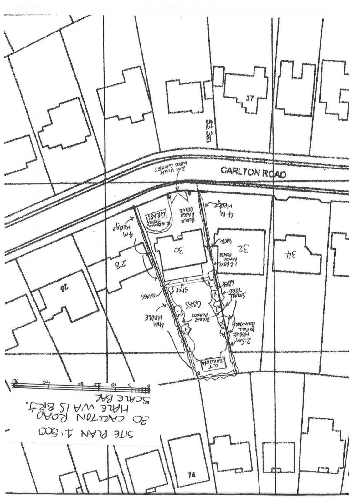
Site Location
Archived · Original link
Representation
Archived · Original link
Weekly List
Archived · Original link

Have your say

Your comment matters. Councils must consider every representation that raises material planning considerations.

Write a comment