← Trafford Council

Status

Awaiting decision Change of use
Received
04 Nov 2025
New homes
0

Full proposal

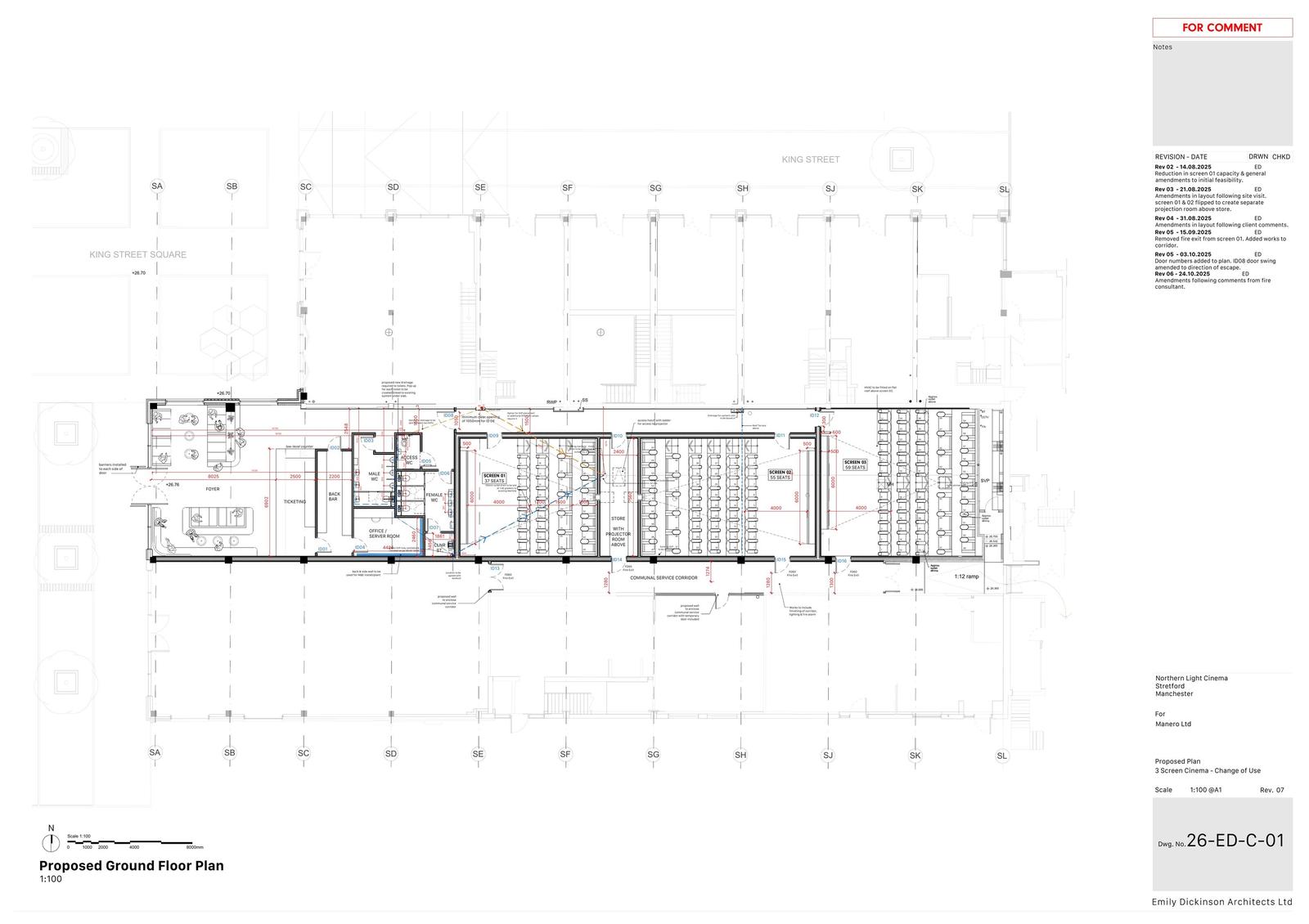
Change of use of the ground floor unit from Class E into a 3no screen cinema (Sui Generis), with associated ancillary facilities, erection of A/C units within the roof and the internal fit out.

Documents

Plans
Archived · Original link
Site Location
Archived · Original link
Planning Statement
Archived · Original link
Plans
Archived · Original link
Plans
Archived · Original link

Have your say

Your comment matters. Councils must consider every representation that raises material planning considerations.

Write a comment