← Trafford Council

Status

Awaiting decision House extension
Received
08 Dec 2025
New homes
0

Full proposal

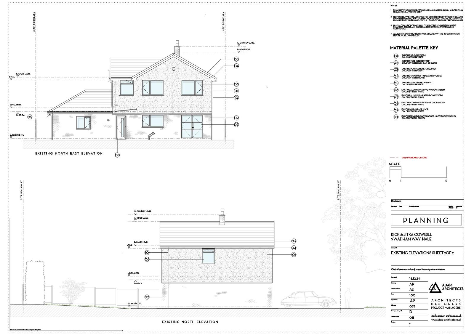
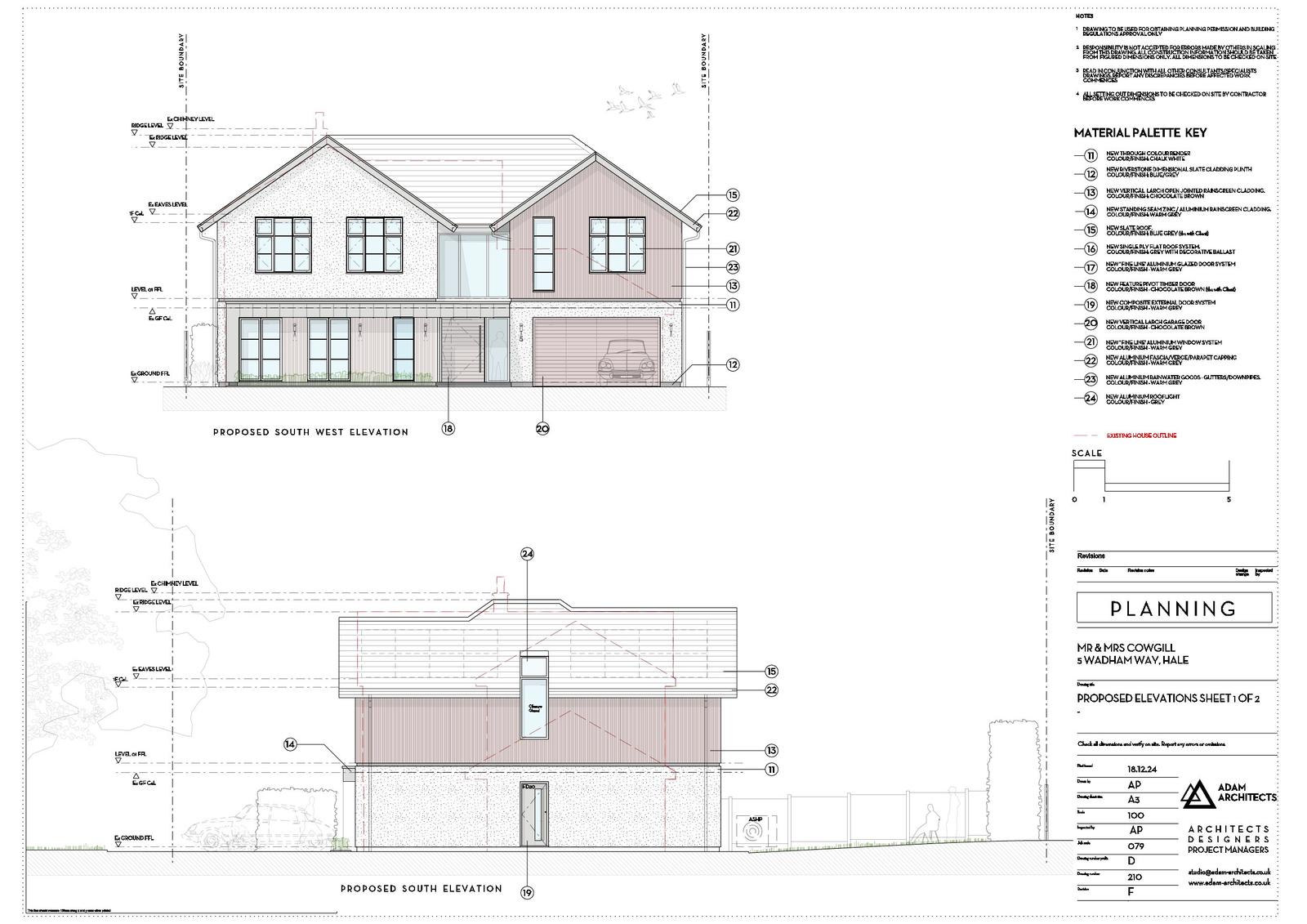
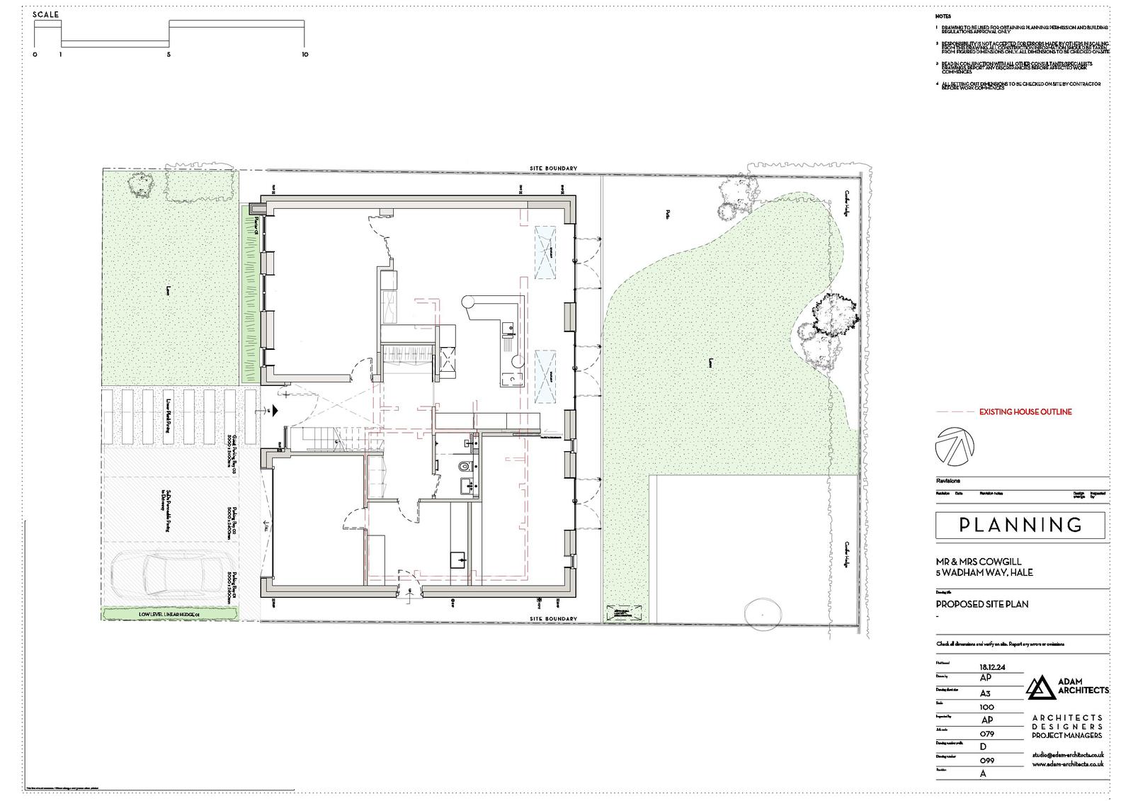
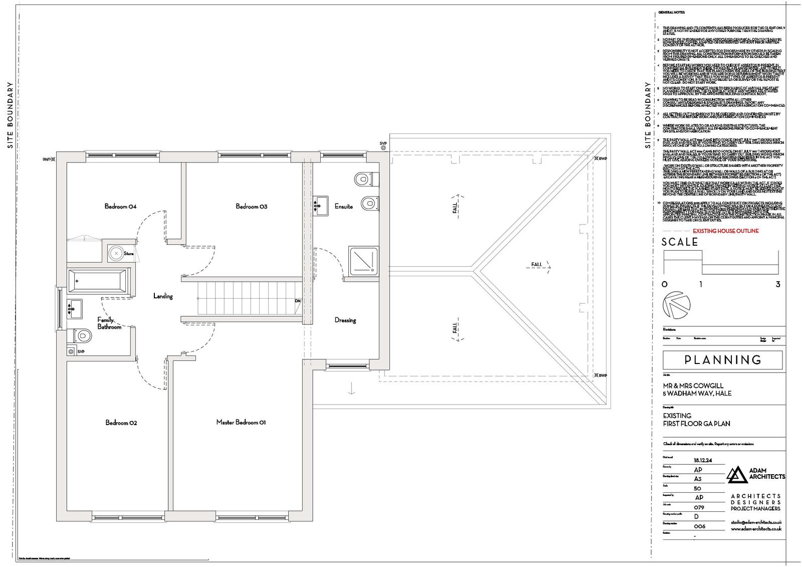
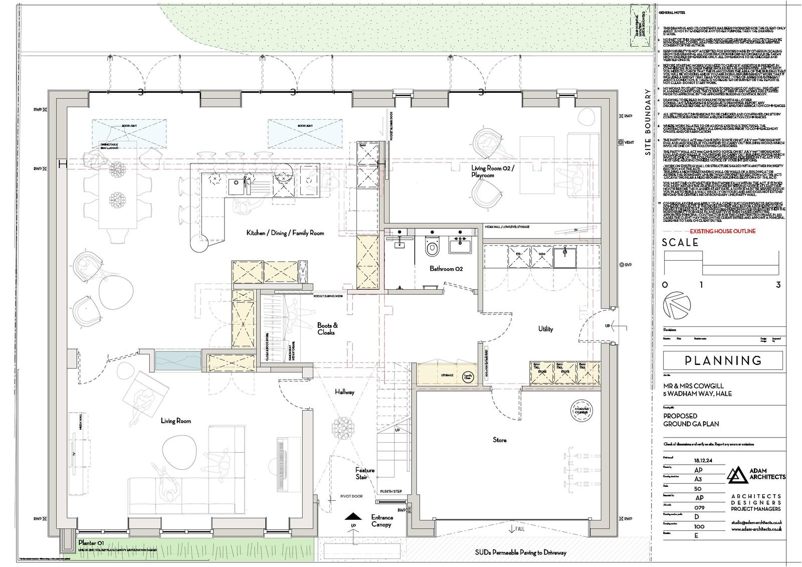
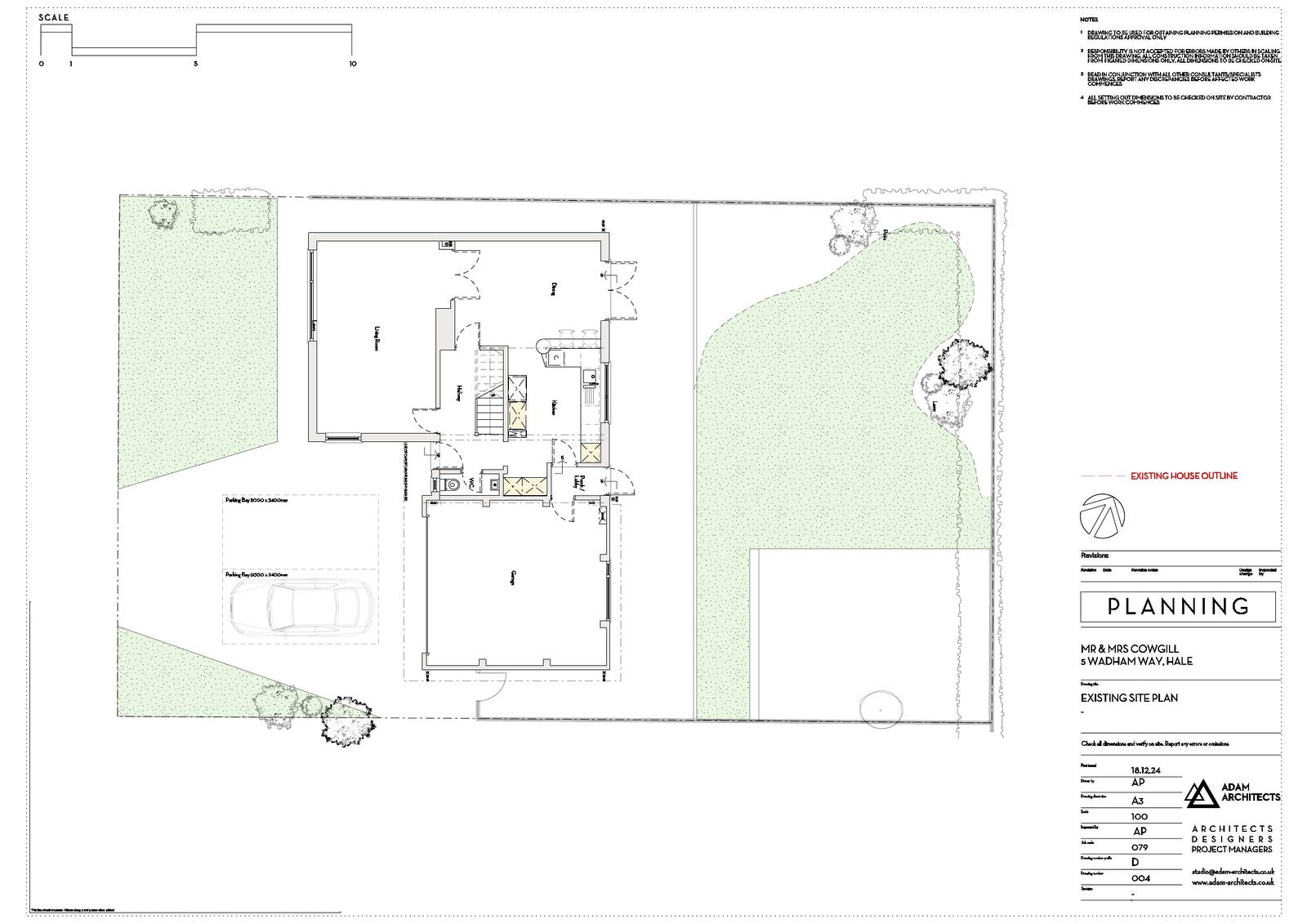
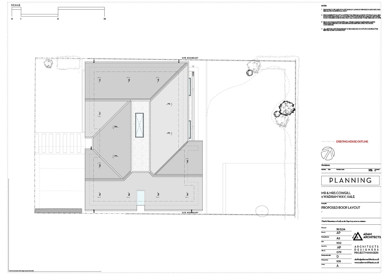
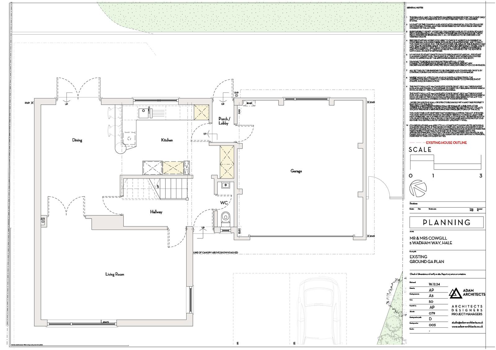
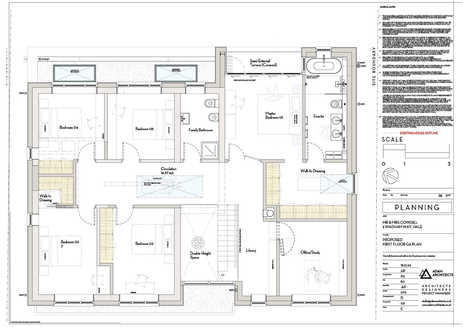
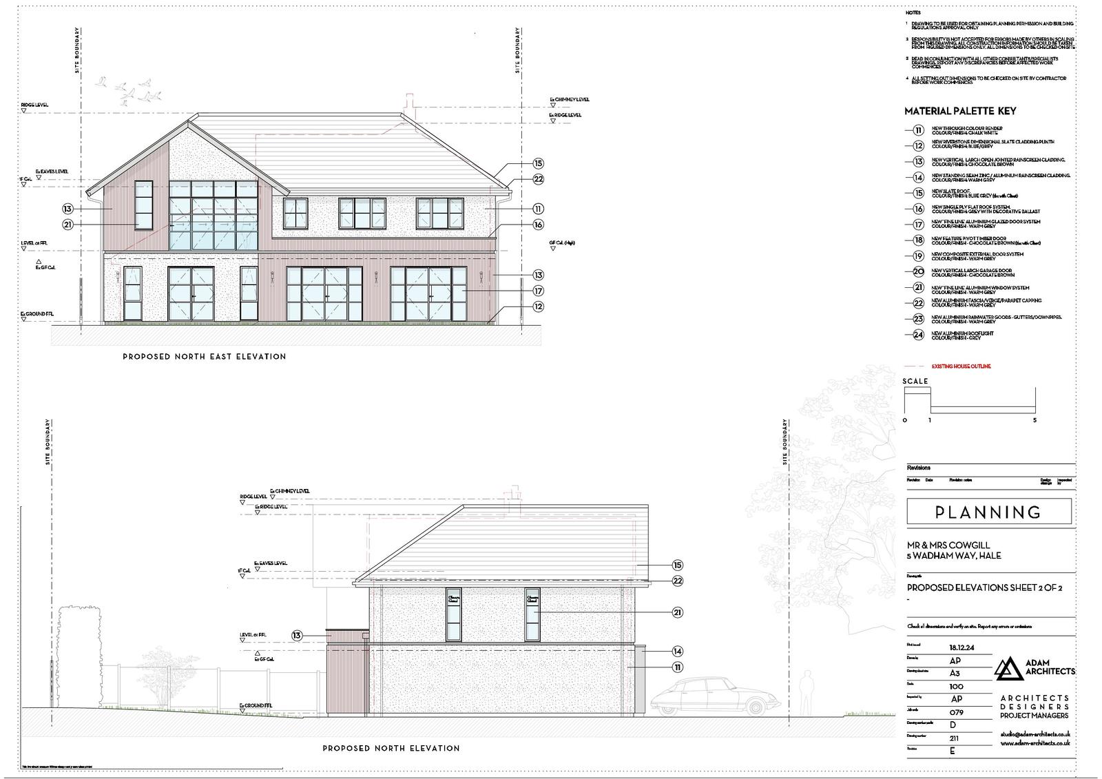
Demolition of existing garage. Erection of a two storey side extension with rear juliet balcony, single storey rear extension and raising of the ridge height. External alterations to include new render and cladding and alterations to windows and doors.

Have your say

Your comment matters. Councils must consider every representation that raises material planning considerations.

Write a comment