← Trafford Council

Status

Awaiting decision House extension
Received
12 Dec 2025
New homes
0

Full proposal

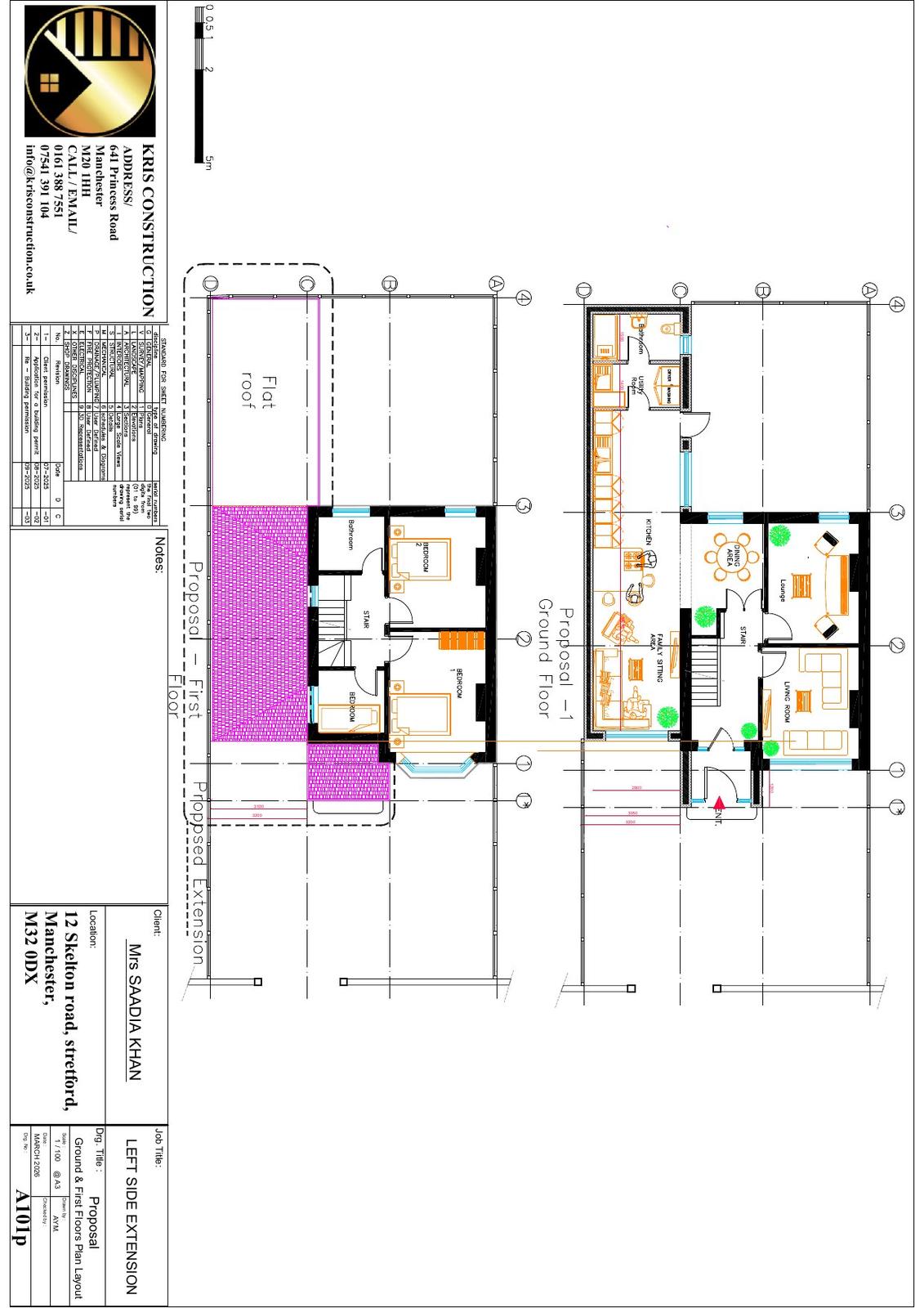
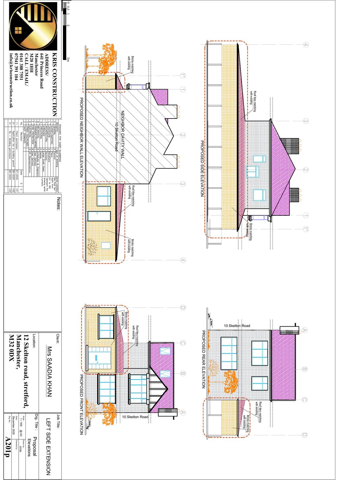
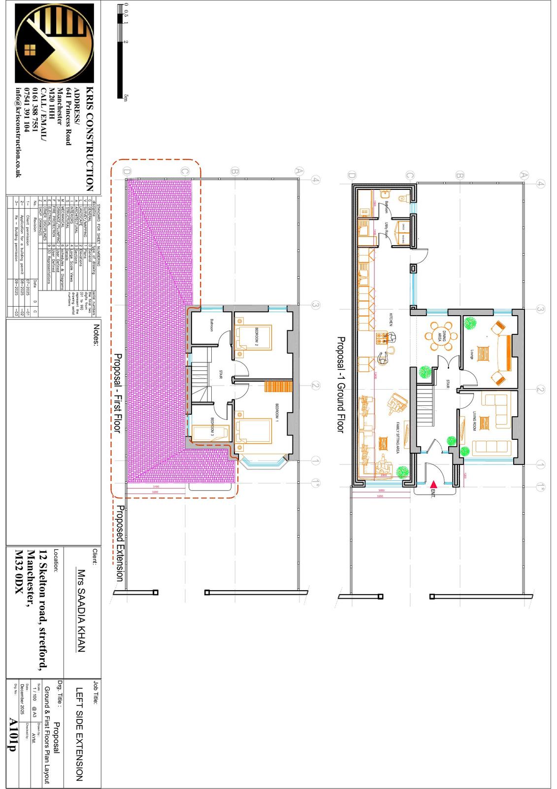
Erection of front and side extension and external alterations including rooflights to front elevation.

Documents

Amended Plans
Archived · Original link
Amended Plans
Archived · Original link
Amended Plans
Archived · Original link
Site Location
Archived · Original link
Plans
Archived · Original link

Have your say

Your comment matters. Councils must consider every representation that raises material planning considerations.

Write a comment