← Trafford Council

Status

Awaiting decision House extension
Received
16 Dec 2025
New homes
0

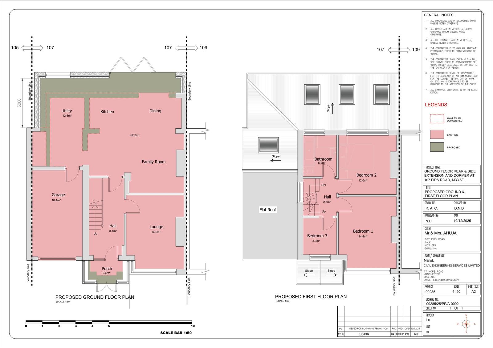
Full proposal

Erection of a single storey rear/side extension, front porch extension and a hipped to gabled loft conversion into habitable living accommodation with a rear dormer.

Have your say

Your comment matters. Councils must consider every representation that raises material planning considerations.

Write a comment